ARQ... LOFT INDUSTRIAL + ELEGANTE + VEGETAL



Retomamos las muestras de arquitectura y decoración de la buena.

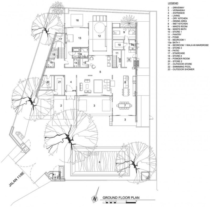
Esta casa está situada en Petaling Jaya, Selangor, Malasia.
Combina un aspecto industrial con elementos modernos, y utiliza una gran cantidad de vidrio para permitir puntos de vista de la vegetación circundante.

































Proyecto de: ArchiCentre 

Via.

Fuente: este post proviene de Blog de GOGO, donde puedes consultar el contenido original.
¿Vulnera este post tus derechos? Pincha aquí.
Creado:
¿Qué te ha parecido esta idea?

Esta idea proviene de:

Y estas son sus últimas ideas publicadas:

Impresionante ejemplo de arquitectura moderna la que he encontrado en el nº 15 de la Revista Formas de Proyectar: lo firma Fran Silvestre Arquitectos. El lugar es de quitar el hipo... Y esta foto (por ...

Recomendamos

Relacionado

general casas inspiración ...

Hola a tod@s, de nuevo viernes y espero que me acompañeís a visitar una nueva casa. En este caso es un maravilloso loft de 100 metros cuadrados con estilo industrial. Al entrar en la vivienda descubrimos un espacio abierto, amplio y muy bien iluminado por un gran ventanal. En primer lugar la cocina, más tarde el comedor y posteriormente la zona de estar. Desde una escalera accedemos al piso superi ...

general loft [interior] ...

Este loft industrial fue diseñado en 2014 por el Estudio Cloud y se ubica en una antigua fábrica cerca de Edgware Road, Londres. El apartamento, que se encuentra en un espacio industrial reconvertido, fue totalmente reconfigurado por Cloud para crear dos dormitorios y un gran espacio de estar de planta abierta. Los detalles arquitectónicos tienen un toque industrial (techos de hormigón, ventanales ...

general [industrial] [interior] ...

Después de varios años viviendo y trabajando en Londres, el arquitecto Dimitar Karanikolov y la diseñadora de interiores Veneta Nikolova regresaron a Sofía, donde encontraron un pequeño pero interesante ático lleno de posibilidades. La reforma del ático dió como resultado un espacio a modo de loft donde el estilo industrial, el diseño de muebles y la experimentación con detalles y acabados, son l ...