Casa de Campo Contemporánea: Residencia FG en Brazil por Reinach Mendonça Arquitectos Associados

El estudio brasileño Reinach Mendonça Arquictetos Associados, ha completado el proyecto Residencia FG comenzado en 2011 y terminado en 2012.

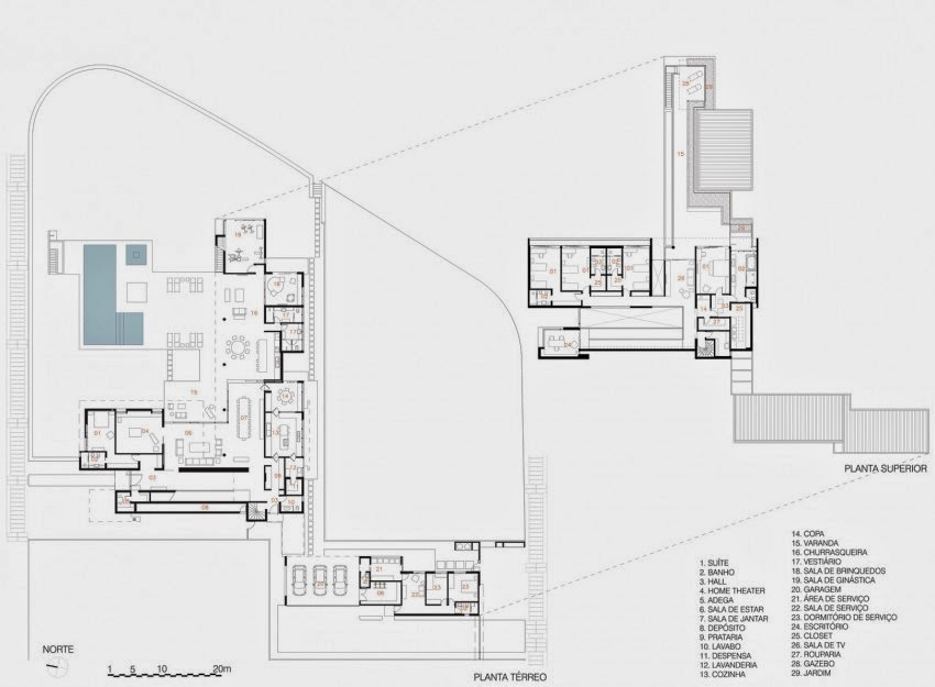
Esta casa contemporánea tiene 11.830 pies cuadrados (1.099 metros cuadrados) se encuentra en Araraquara, ciudad en el estado de São Paulo en Brazil.

Es una casa de campo en la ciudad. La residencia fue diseñada para una familia que pasa temporadas en su ciudad natal, en el interior de São Paulo.

Los amplios ambientes de vida son todos en la planta baja, organizada en una planta en "L" hacia el gran jardín y piscina.

Dos tramos de rampas conectan la planta baja con las zonas íntimas, haciendo que las circulaciones verticales se conviertan en un paseo muy agradable, a través de un hall de distribución con luz amplia, que conecta todos los espacios.

En la entrada principal de la casa, el volumen de las paredes metálicas de la oficina va como un columpio sobre el jardín, una composición sólida y atractiva de mostrar el gran portal de doble entrada.




















Fotos por: Nelson Kon

¿Qué le gusta del el diseño? ¿Qué partes desea modificar? ¿Tiene chispa el diseño en todas las ideas creativas? Por favor, deje un comentario y comparte tus pensamientos. Gracias.





Fuente: este post proviene de este blog, donde puedes consultar el contenido original.
¿Vulnera este post tus derechos? Pincha aquí.
Modificado:
¿Qué te ha parecido esta idea?

Esta idea proviene de:

Y estas son sus últimas ideas publicadas:

Hogares Frescos Sumérjase en la encantadora atmósfera de varias Casitas pequeñas con encanto! Son exquisitas y románticas. Nos invitan a soñar. Imperceptiblemente, mientras las miramos a ellas, nos va ...

Casa I es una residencia privada ubicada en Las Rozas, uno de los municipios más grandes de la comunidad autónoma de Madrid, España . Fue terminada en 2013 por Bojaus Arquitectura. Casa I está situado ...

La ciudad sueca de Gotemburgo es única en su capacidad de ofrecer la vida urbana sin dejar de sentirse como una pequeña ciudad. Por un lado, no hay escasez de restaurantes y salas de cine para disfrut ...

Recomendamos

Relacionado

general apartamento chimenea ...

La Residencia Lassus es una casa privada diseñada por Schlesinger Arquitectos Asociados. Se encuentra en Washington DC, EE.UU., y cubre un área de 2,000 pies cuadrados. Esta residencia de 2000 pies cuadrados, su actualización se centra en una nueva escalera compuesta de una serie de losas de mármol que son tanto escultura como la circulación. Una nueva claraboya sin marco se hace ec ...

general arquitectos arquitectura mmoderna ...

Esta es la Residencia Lomas II, es una casa privada su ubicación es en la Ciudad de México, México. Fue diseñada por Paola Calzada Arquitectos en 2013 Descripción del Proyecto: Es una vivienda unifamiliar con grandes beneficios de paisaje, espacio natural y ofrece una gran vista. La casa fue renovada con el fin de facilitar el flujo entre los diferentes espacios a través de pa ...

decoración arquitectura loft ...

En la ciudad de São Paulo, donde se producen los contrastes urbanos más extraordinarios se desarrolla la idea de una residencia primaria y en efecto "brutalista". La vivienda posee una geometría muy definida, opaca en su materia gris, clara en las superficies de vidrio y vibrante en el mural de acceso. Un diseño discordante en relación con las viviendas tradicionales del vecindario que e ...

general arquitectura moderna casa ...

Casa Kopche es una residencia privada diseñada por el Grupo ARQUIDECTURE. Está ubicada en Mérida, Yucatán, México, se terminó en 2012. Esta residencia es una casa contemporánea, con líneas puras, en cuyo diseño la integración de afuera hacia el interior ha sido el logro de prioridades, consiguiendo espacios amplios con varios puntos de vista, llena de luz y ventilación natural. E ...

general arquitectura proyectos ...

Hoy os quiero mostrar un proyecto al que tengo especial cariño, pues es el que realicé mientras estuve de intercambio con la universidad de Ljubljana. Tengo que reconocer que cuando pedí el destino, casi no sabía ni situar Eslovenia en el mapa! Me fuí en el año 2008 y todavía no se llevaba tanto lo de viajar a los balcanes. Cuando me enteré de que me habían concedido la beca me entraron un montón ...

general arquitectura proyectos ...

Hoy os quiero mostrar un proyecto al que tengo especial cariño, pues es el que realicé mientras estuve de intercambio con la universidad de Ljubljana. Tengo que reconocer que cuando pedí el destino, casi no sabía ni situar Eslovenia en el mapa! Me fuí en el año 2008 y todavía no se llevaba tanto lo de viajar a los balcanes. Cuando me enteré de que me habían concedido la beca me entraron un montón ...

- es + arquitectura interiores ...

Esta pequeña casa con su gran terraza es una residencia minimalista ubicada en Tokio, Japón, diseñada por el arquitecto japonés Takuro Yamamoto. Esta casa es un gran ejemplo que muestra que tener un amplio espacio exterior privado en una pequeña residencia urbana es posible (y más en el área metropolitana de Tokio). A través del proceso de diseño de esta casa, los arquitectos trataron de demostrar ...

- es + arquitectura interiores ...

Esta pequeña casa con su gran terraza es una residencia minimalista ubicada en Tokio, Japón, diseñada por el arquitecto japonés Takuro Yamamoto. Esta casa es un gran ejemplo que muestra que tener un amplio espacio exterior privado en una pequeña residencia urbana es posible (y más en el área metropolitana de Tokio). A través del proceso de diseño de esta casa, los arquitectos trataron de demostrar ...