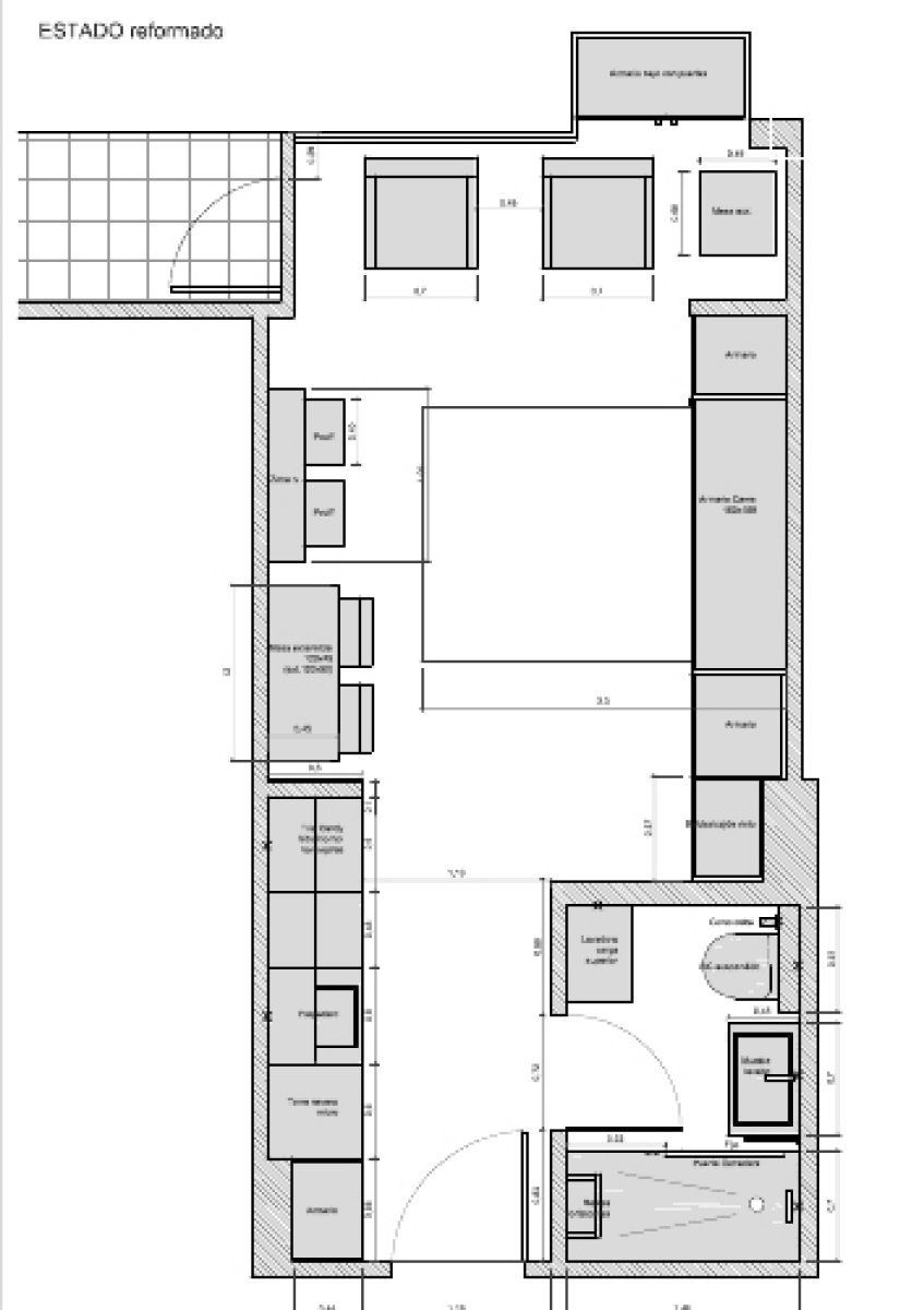
Reforma de un mini-piso de 24 m2 en Madrid.
Condicionantes:
-No se pueden desplazar las tomas del baño
-Las bajantes limitan la redistribución del baño
-Una de las paredes se haya ocupada por una cristalera con salida a terraza
-Cama de 160
-Butacas en vez de sofá y que su uso no se halle condicionado por la cama
-Cocina totalmente equipada, incluso con horno y lavavajillas.
-Posibilidad de usar una mesa para 4 personas mínimo.
Al artículo completo en: Blophome: Pequeños espacios
¿Vulnera este post tus derechos? Pincha aquí.
Creado:










