Estoy trabajando en un proyecto de decoración y ahora también reforma, donde el propietario es muy fan de las piezas de diseño, mientras su mujer necesita toques de muebles más cálidos y con cierta personalidad, que hagan de su casa un hogar. Como dice ella quiere escapar de esa sensación de hotel donde todo es muy bonito, pero casi parece que no se puede usar. Llegar a conseguir ese equilibrio es verdaderamente complicado, aunque creo que poco a poco lo vamos consiguiendo. Y cuando digo poco a poco, es a paso de tortuga, porque este trabajo se está alargando más de la cuenta, no por culpa de mis clientes y tampoco mía, pero a veces la burocracia lo retrasa todo, no nos queda otra que seguir planificando y tener paciencia.
Hoy os traigo una vivienda que es un ejemplo perfecto de este equilibrio del que os hablaba. Una fusión de lo nuevo con lo viejo, el diseño contemporáneo con piezas de anticuario o de estilo vintage, huellas del pasado con soluciones arquitectónicas actuales, un mix salvaje y perfectamente ejecutado por The Room Studio, con Meritxel Ribé y Josep Puigdomènech a la cabeza.
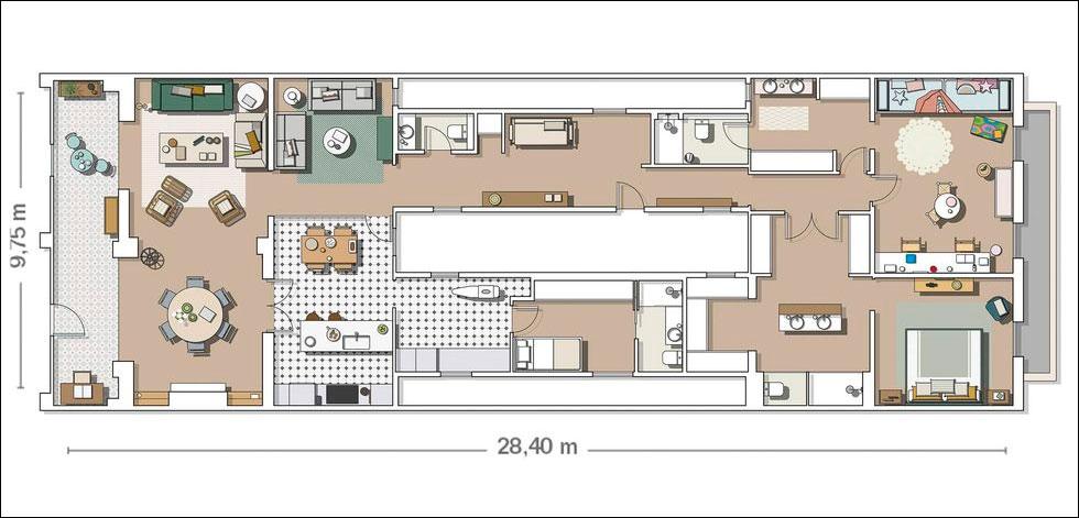
¿Quién se resiste a un bajo con jardín en pleno Eixample de Barcelona? A pesar de la antigüedad de la casa y de la intensa intervención que necesitaba, los propietarios supieron ver su potencial. La reforma consistió en abrir los espacios para que todo fluyera, dejando atrás la compartimentación existente, y creando dos zonas diferenciadas. Por un lado la de día, dedicada a la vida social y esparcimiento familiar y por otro la de noche, donde se encuentran las áreas privadas.
La parte de día consta de dos salones, uno más formal que alberga también el comedor y otro como sala de televisión y además, la cocina. Del salón comedor, se accede mediante dos grandes vanos a una amplia galería, que hace las veces de despacho. Todo está inundado de luz gracias a dos enormes ventanales. En la otra ala de la casa, se encuentran los dormitorios, el principal con baño y vestidor en colores neutros. Por otro lado un dormitorio infantil compartido, realizado de tal manera que en el futuro pudiera separarse pero que por el momento, invite a compartir juegos, estudio y noches de confidencias. El baño también es compartido, todo en tonos pastel, donde el protagonista absoluto es el aparador con motivos florales (del propio estudio) que hace las veces de mueble de baño y que contrasta con el resto de elementos de naturaleza más moderna.
Y por último, pero no menos importante, la joya de la corona. Ese patio que bajo una pérgola y a salvo de las miradas indiscretas de los vecinos, alberga toda una zona de estar y comedor, que apuesto hará las delicias de los propietarios durante casi todos los meses del año ya que Barcelona, posee un clima que incluso en los días soleados de invierno, invita a disfrutar de los exteriores.
Os dejo mis top 10 de esta casa, aunque es difícil elegir. Si queréis más información sobre alguno de los productos o piezas, sólo tenéis que pinchar en este link donde los tenéis casi todos:
En el salón, las butacas y reposapiés de ratán, se llaman Monet y son de la firma Sika-Design
El hidráulico de la galería, es de Demosaica.
Mesa y sillas de la galería en Fermob.
Mesa de comedor Circle, de Ethnicraft.
Lámparas cocina de Mullan Lighting.
Grifería monomando de la cocina de Franke.
Office cocina (mesa, sillas y lámpara) en The Room Studio.
Papel pintado y lámparas de la habitación infantil en Ferm Living.
Lámpara del dormitorio principal de Aromas del Campo.
Mueble del baño infantil en The Room Studio.
Sólo ver la terraza me ha entrado ansia viva de que empiece a hacer algo de calor para poder disfrutar de la mía. Espero que disfrutéis de esta maravilla.
Imágenes: Mi Casa Revista / The Room Studio
Sigue el blog por Email
Introduce tu dirección de correo electrónico para seguir este Blog y recibir las notificaciones de las nuevas publicaciones en tu buzón de correo electrónico.
Dirección de correo electrónico:
Seguir



























