Decora un MiniApartamento de 40m2.

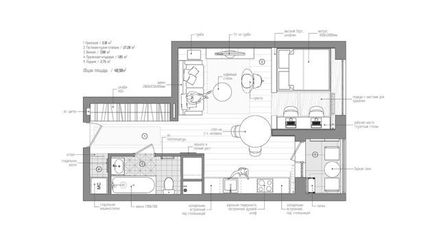
Un apartamento pensado a la manera de las famosas muñecas rusas..40 m2 situado en Moscú y diseñado por el estudio de arquitectura INT2architecture, creado por Alexander Malinin y Anastasia Shereleva, tiene las necesidades de la vida de una joven pareja con características ocultas en cada superficie.

Incluye un dormitorio, un espacio de trabajo, una sala de estar, una cocina, un bar en la terraza, armarios e incluso un pequeño lavadero…… todo el suelo de la elevada zona de dormir y de trabajo está lleno de espacios de almacenaje ocultos….incorporando una caja elevada para dividir el espacio en diferentes zonas…es preferible a usar tabiques, permite aprovechar mejor la luz y dar continuidad al espacio.

02


Para llenar esta ingeniosa caja, el catálogo de piezas es más que ecléctico. La mayoría de los muebles son de Ikea y de producción propia de los arquitectos…..pero siempre hay un hueco para las sillas de Los Eames o el banco azul del nórdico Hans Wegner. Todo un microcosmos dentro de otro, como una matrioska.

01


03


04


05


06


07


08


09


10


11


12


14


Fuente: este post proviene de InterioresChic, donde puedes consultar el contenido original.
¿Vulnera este post tus derechos? Pincha aquí.
Modificado:
¿Qué te ha parecido esta idea?

Esta idea proviene de:

Y estas son sus últimas ideas publicadas:

Recomendamos

Relacionado

general interiores miniespacios

Unificar todos los espacios con la misma gama cromática…gris, negro y como no, pinceladas de blanco. La solución con la que han unido la cocina y el salón…. una inmensa cristalera de marcos en negro, permite que pase la luz a el resto de la casa, incluidos al dormitorio… un apartamento de 45m2…no muy grande pero con grandes ideas de almacenaje. Tanto el mobiliario como el r ...

general interiores miniespacios

Un ático lleno de encanto…en el que, nos de la bienvenida una doble altura…permitiendo un acceso a la habitación. En su parte inferior,  un encanto especial que lo inunda,  gracias a los materiales empleados… vigas de madera, paredes en blanco roto,materiales nobles y rústico, creando un ámbiente de lo más acogedor.

general sin categoría

Buenas tardes! Hoy os presento un piso totalmente bien distribuido y realmente muy útil. El salón es un espacio diáfano que comunica la cocina, el comedor, la sala de estudio, el rincón musical, la librería de la casa...todo muy bien puesto en cada sitio y aprovechando el más mínimo espacio. Librería dando la vuelta a la pared, ideal para las grandes lectoras!, y las letras "Read me!" ...

general consejos colores ...

Última entrada en Virginia Esber: Ya estamos en primavera y con ella llegó el buen tiempo, la luz y las ganas de redecorar. En cada cambio estacional igual que renuevas tus armarios, también puedes hacer pequeños o grandes cambios en la decoración de tu casa o lugar de trabajo. No es necesario gastar grandes presupuestos, simplemente una buena limpieza, aplicar color a las paredes, cambiar los tej ...

deco proyecto deco

Buenos días, volvemos un poco a la normalidad en el blog, así que por fin hoy publico este post que tenía programado desde ayer y que por falta de internet no pude subirlo. Bien, el post de hoy es de esos post que te ilumina un poco a la hora de aprovechar muy bien una casa, y es que el apartamento que hoy os enseño de tan solo 40m2 ha sido aprovechado todo el espacio para crear un apartamento con ...

cristina pineda inspiración lavadero ...

Como me gusta este tipo de post. Donde podemos ver el antes y el después de un espacio transformado. El espacio de hoy es muy pequeño, un lavadero, y es de la mano de View Along The Way, si aún no conocéis este blog, os recomiendo que le echéis un vistazo, porque esta lleno de transformaciones increíbles con un bajo presupuesto. Es un lavadero pequeño, muy femenino, con espacio para almacenaje y ...

general baño cocina ...

Desde que he puesto mi letra E luminosa en el salón estoy muy crecidita con todo esto de la iluminación no estándar… cómo por ejemplo las luces de neón, concretamente los mensajes de neón. Ya se que no son de ahora pero como en Exterior con vistas no habíamos hablado…. saco ahora el tema. A mi estos mensajes de neón me parecen súper acogedores, me gustan más los que son de luz blanca o ...

general

Lo mejor de un sarao además de la compañía, es organizar algo tan bello como el Baby shower de hoy. Un día especial en el que no pueden faltar los dulces (ahora que ya hemos pasado la operación trikini....que mas da) unas composiciones vintage, y detalles y colores con proyectos Handmade. Si lo que no disponemos es de un jardín, una terraza o el espacio apropiado para hacerlo, la solución es ...

decoración hogar

No te puedes hacer una idea, la envidia sana que me da cada vez que veo por la red un lavadero bonito, o lo que es lo mismo un lavadero de ropa que me deje encandilada y es que eso es otro de mis temas pendientes, organizar mi lavadero y que salga algo más o menos aceptable de ese espacio. ¿Te vienes conmigo a ver los lavaderos de ropa que te traigo hoy? Lavaderos de ropa que enamoran Pues sí, m ...

cuarto de lavado diseño de interiores lavanderia ...

Con un poco de organización inteligente, es posible crear un cuarto de lavado espacioso y compacto. Ya sea que su servicio de lavado es sólo un pequeño armario o un sótano grande y espacioso, ideas de lavadero puede hacer que sea más eficiente y agradable. Si usted hace un esquema de trazado adecuado con el almacenamiento inteligente para su cuarto de lavado, se sorprendió al ver que el tiempo que ...