DECORACION ACOGEDORA Y MODERNA DE APARTAMENTO

Decoracion acogedora y moderna de apartamento en Kiev. Hemos querido mostraros este apartamento que con pocos metros, se le ha sacado muchísimo partido.

decoración acogedora y moderna de apartamento

Podemos decir que el éxito de este apartamento se debe a la perfecta combinación de materiales ecológicos, elementos decorativos, muebles de diseño, equipos sanitarios y los electrodomésticos. 

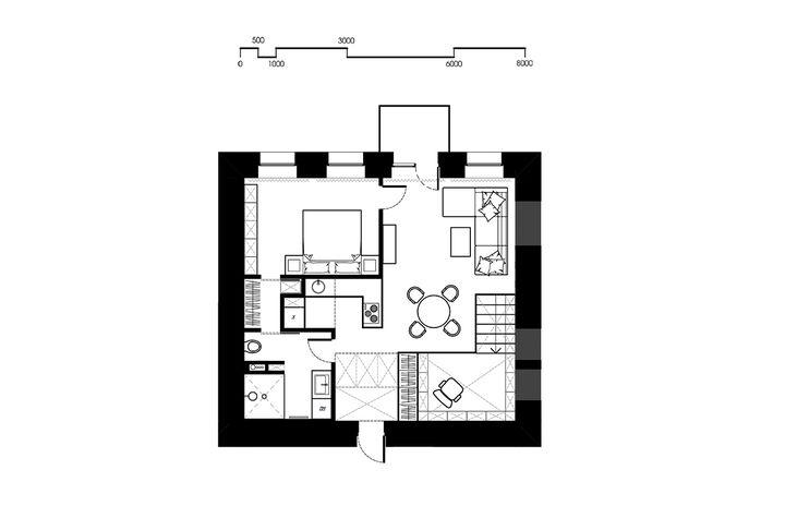
El concepto de movimiento aparece a través de las áreas de diseño espaciales , como el dormitorio, el salón , la biblioteca y el baño se encuentran en torno a la cocina , el símbolo histórico del ” corazón de la familia ” . Así que usted puede mover de una habitación a otra en un círculo ininterrumpido , ya que los espacios fluyen por su continuidad.

decoración acogedora y moderna de apartamento

El interior cuenta con una acogedora coloración cálida debido a las paredes de ladrillo pastel , la textura natural de la madera y el mueble blando.

La biblioteca  ocupa un lugar privilegiado en la vivienda, dándole un especial protagonismo por su singularidad y originalidad.

decoración acogedora y moderna de apartamento

decoracion apartamento 1 Virginia Esber


 decoración acogedora y moderna de apartamento

decoracion apartamento 2 Virginia Esber


 

decoracion apartamento 4 Virginia Esber


 decoración acogedora y moderna de apartamento

decoracion apartamento 5 Virginia Esber


 

decoracion apartamento 7 Virginia Esber


 decoración acogedora y moderna de apartamento

decoracion apartamento 8 Virginia Esber


 

decoracion apartamento 10 Virginia Esber


 

decoracion apartamento 11 Virginia Esber


 

decoracion apartamento 12 Virginia Esber


 

decoracion apartamento 13 Virginia Esber


 

decoracion apartamento 14 Virginia Esber


 

decoracion apartamento 15 Virginia Esber


 

decoracion apartamento 16 Virginia Esber


 

decoracion apartamento 17 Virginia Esber


 

decoracion apartamento 18 Virginia Esber


 

decoracion apartamento 19 Virginia Esber


 

Nos ha parecido interesante compartir contigo el post de este apartamento de www.architecturelover.com

La entrada DECORACION ACOGEDORA Y MODERNA DE APARTAMENTO aparece primero en Virginia Esber.

Fuente: este post proviene de Virginia Esber, donde puedes consultar el contenido original.
¿Vulnera este post tus derechos? Pincha aquí.
Modificado:
¿Qué te ha parecido esta idea?

Esta idea proviene de:

Y estas son sus últimas ideas publicadas:

Recomendamos

Relacionado

general

Cuenta la leyenda que en el norte de Londres existe un moderno apartamento victoriano. Que sus nuevos propietarios optaron por mantener la mayor parte de la arquitectura existente. Y que la decoración moderna fluye naturalmente por sus burguesas paredes, sin estridencias, sin vanidades, sin egos... Para resaltar, su acogedora & cottage cocina, el luminoso patio interior que comunica estancias y el ...

general

Es verdad, nunca pienso en Ellos, en los chicos, cuando escribo sobre la decoración, lo reconozco!! Que mal!! Hasta que un día me enteré de que Ellos, también leen mi blog e incluso algunos son seguidores fieles!. Y es verdad, creo que Ellos necesitan incluso más que nosotras ideas, consejos e inspiración para decorar sus espacios con aires masculinos.Esta va por vosotros chicos!! Feliz fin de se ...

general interiores decoración masculina

Hoy, día del padre, dedico la entrada a todos ellos, muchas felicidades a todos los papás y en especial al mío. Se que, aunque la mayoría de las visitas del blog, son femeninas, alguna masculina también recibe el blog . Un apartamento en el que predominan los tonos grises y neutros, textiles con cuadros, el hormigón, una madera más oscura, muebles de líneas depuradas… todo ello se encarga ...

estilos apartamentos clasico y moderno ...

Hoy nos adentramos en la década de los 50 con este apartamento con aire nórdico y pinceladas vintage. Un apartamento de 79m2 con una distribución muy diáfana. Dos dormitorio, uno de ellos para el peque de la casa donde los estampados están presentes en alfombras, ropa de cama e incluso paredes a igual que en el dormitorio de matrimonio, dormitorio donde los colores predominantes a igual que en el ...

Interiorismo apartamento casa ...

Última entrada en Virginia Esber: Apartamento pequeño de 26 m2 a todo color. Espero que os guste este apartamento tanto como a mí, ya que tan solo con 26 metros cuadrados ha sabido combinar a la perfección la decoración, combinación de estilos y el color. Los toques de azul serénity y rosa cuarzo que están marcando tendencia esta temporada se ven integrados en este apartamento.  Combina todos mis ...

general deco-inspiración

Estilo moderno y madera: Estilo y calidez unidos. Muchas veces vemos espacios modernos que nos encantan, pero que resultan fríos. Hoy en el Blog de decoración Boho Chic Style os enseño un apartamento con un estilo moderno muy marcado, sobre todo en el mobiliario, pero que al combinarlo con la madera, el resultado es una vivienda acogedora pero muy actual. Es un apartamento con un único espacio abi ...

Es hora de volver a inspirarse en el diseño escandinavo. Este apartamento ha salido a la venta en Alvhem y tiene un aspecto clásico de Scandinavio. Con espacios abiertos brillantes, y suelos de madera, todo ello coordinado en un esquema de color monocromático …así es como uno imagina un apartamento escandinavo. Sin embargo, el toque de este apartamento son las paredes de ladrillo visto. En e ...

general estilo ecléctico

Hoy viajamos hasta la ciudad argentina de Buenos Aires para visitar un apartamento de estilo ecléctico en el que piezas de diseño con otras vintage y el blanco y negro y el color conviven a la perfección. Me encantan estas viviendas, en las que, tras una puerta clásica y antigua, descubres un interior moderno y estudiado lleno de detalles que marcan la diferencia. imágenes via: Espacio Liv ...

general interiores mini apartamentos

Y despedimos la semana con un mini apartamento de unos 36 m2 ubicado en Nueva York. Ha sido diseñado por el estudio MKCA, dando lugar a un ingenioso espacio con los elementos funcionales y espaciales necesarios para vivir, trabajar, dormir, vestirse y entretenerse, un reducido apartamento con cocina, comedor, sala de estar y baño. Su decoración es moderna, sencilla y minimalista, evitando así sobr ...

decoracion eclecticismo victoriano ...

Cuenta la leyenda que en el norte de Londres existe un moderno apartamento victoriano. Que sus nuevos propietarios optaron por mantener la mayor parte de la arquitectura existente. Y que la decoración moderna fluye naturalmente por sus burguesas paredes, sin estridencias, sin vanidades, sin egos... Para resaltar, su acogedora & cottage cocina, el luminoso patio interior que comunica estancias y el ...