Glamour en 31 m2

Hoy en Minipisos y Espacios pequeños te mostramos la definición perfecta de glamour: metales con brillo, textiles, plantas, flores frescas, muebles con cristal y todo en un pequeño estudio de 31 m2.



Y es que este estudio no solo derrocha glamour, se crea un ambiente del estilo nórdico y el art decó creado con muebles que mezclan metal y cristal, mucha luz natural, flores y plantas frescas, textiles en cada rincón, mármol de Carrara en una preciosa cocina de muebles blancos característicos de este tipo de decoraciones.























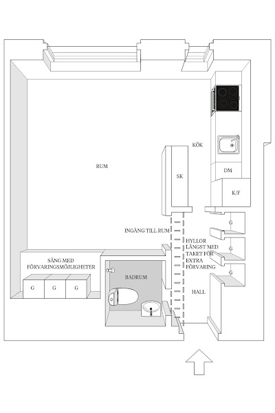
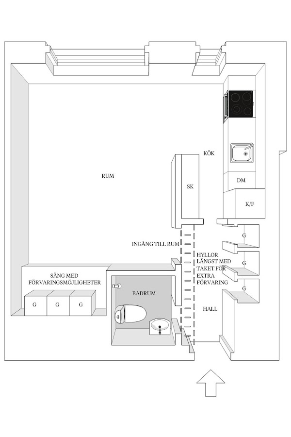
Si le echas un vistazo al plano podrás apreciar lo increíblemente bien aprovechada que está la planta, encontrarás todo lo necesario para una persona, incluso con espacio de almacenaje suficiente.



¿Y tú? ¿Te ves viviendo en este minipiso con tanto glamour?

En el próximo post... Una casa de 2,3 metros de ancho¡No te lo pierdas!

- Fuente -

Fuente: este post proviene de Minipisos, donde puedes consultar el contenido original.
¿Vulnera este post tus derechos? Pincha aquí.
Creado:
¿Qué te ha parecido esta idea?

Esta idea proviene de:

Y estas son sus últimas ideas publicadas:

Hoy en Minipisos y espacios pequeños hoy nos vamos a París, a un ático de lujo que enamora no solo por su interior y su decoración, sino también por su ubicación, en el centro de la capital francesa. ...

Hoy en Minipisos y espacios pequeños entramos en un edificio rehabilitado que no imaginas que utilidad tenía en tiempos anteriores... ¿Te imaginas vivir en una antigua cárcel? Tan solo tiene 35 m², p ...

Hoy en Minipisos y espacios pequeños visitamos un pequeño ático nórdico donde no hay ni un centímetro cuadrado que no esté aprovechado donde además te sorprenderá la sensación de amplitud. Entre su d ...

Hoy en Minipisos y espacios pequeños entramos en un espacio que es un auténtico oasis dentro de la ciudad. Y es que esta preciosa vivienda se encuentra en El Born de Barcelona... Situado en la plant ...

Etiquetas:

Recomendamos