Juego de volúmenes de hormigón en un loft rehabilitado



Un loft es un espacio ideal para crear una distribución y conceptos de espacios diferentes, una vivienda idónea para utilizar materiales industriales con los que crear juegos de volúmenes y sensaciones ópticas increíbles. 
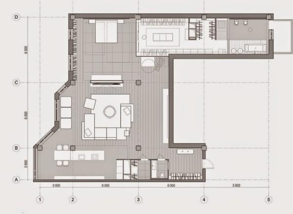
Este loft situado en Ucrania es el vivo ejemplo de las infinitas posibilidades, tanto decorativas como arquitectónicas, que te ofrece un loft de gran tamaño, eso si, con un presupuesto acorde con las dimensiones.
Las divisiones se realizan con paredes de hormigón a media altura y volúmenes o cubos superpuestos, como es el caso del vestidor. Se juega con las diferentes alturas de suelos y techos consiguiendo un gran espacio único repleto de dinamismo que acota las estancias solo visualmente.


Se utilizan revestimientos como parte esencial de la decoración y se mezclan sin miedo, hormigón, maderas nobles, ladrillo, piedra caliza, pintura y metal creando de nuevo dinamismo, pero esta vez en las paredes.
Os dejo las imágenes de este loft.....no os podéis perder ni un detalle de la impresionante cocina y especialmente del dormitorio, con ese increíble vestidor y el dibujo de los techos que baja hasta la pared del cabecero realizado con cables eléctricos pintados.


























Vía

¿Os ha dejado este loft tan impactados como a mi?

................si te ha gustado comparte!! 

Gracias por tu visita

Sígueme en * Twitter * y * Facebook *

Fuente: este post proviene de Blog de AYUDAADECORAR, donde puedes consultar el contenido original.
¿Vulnera este post tus derechos? Pincha aquí.
Creado:
¿Qué te ha parecido esta idea?

Esta idea proviene de:

Y estas son sus últimas ideas publicadas:

El calabacín verde es un ingrediente sano y fácil de incorporar a un gran número de platos deliciosos y muy saludables. Además es un producto que se puede consumir toda la temporada y es realmente eco ...

Etiquetas: generalloft

Recomendamos

Relacionado

Apartamentos Loft

Este mini loft de tan solo 37 metros cuadrados posee uno de los vestidores más alucinantes que he visto en los muchos años que gestiono este blog y buceo entre las joyas decorativas de Internet. Un sueño hecho realidad (Al menos el mío) un vestidor en mi hogar. "¡Cuantas veces habré deseado disponer de una estancia más en mi hogar para disponer de un vestidor! Este mini loft demuestra que no ...

Hormigón Loft Industrial ...

Espacioso y vibrante, este loft sería ¡mi casa perfecta!. Llena de luz, techos altos, materiales fabriles como el hormigón y el ladrillo, y mucho estilo industrial, este proyecto de loft parte de un espacio social completamente abierto y comunicado donde la cocina, el comedor, el salón comparten espacio. Como si de una nave se tratara, el techo a dos aguas se complementa con lucernarios que hacen ...

general casas todas

Estas imágenes pertenecen a un proyecto del estudio de arquitectura Sergey Makhno. Emerland Loft es un ejemplo perfecto de estilo industrial contemporáneo. Tiene todos los elementos que representan este estilo decorativo, techos altos,espacios abiertos, paredes de ladrillo combinadas con hormigón y madera, tuberías vistas y grandes ventanales. continue reading

general interiores loft ...

Hoy visitamos un loft en Terrassa, el cual ha sido diseñado por el estudio Egue y Seta. Un proyecto en el que la luz, la vegetación y el juego entre alturas y espacios son los protagonistas. El suelo de hormigón pulido en cocina y comedor y techos con vigas vistas, se mezclan con materiales más cálidos como la madera. En resumen, un loft de estilo escandinavo industrial en el que a pesar de tratar ...

general diseño escandinavo diseño industrial ...

Buenos y lluviosos días!! Hoy volvemos a la rutina después de unos días de "descanso", aunque no haya parado quieta, pero me han ido muy bien para recargar pilas!! Situado en Francia, concretamente a las afueras de Lille nos encontramos con este espectacular loft de estilo industrial de Pascal François (fotográfo). Se trata de una antigua fabrica, que a pesar de su estética industrial ...

general contemporáneo diseño ...

Cuando hablamos de un loft nos viene a la mente una vivienda de espacios abiertos, con carácter industrial ya que en muchas ocasiones suelen estar en edificos que anteriormente han sido fábricas y se rehabilitan para proporcionar viviendas. En otras ocasiones simplemente son nuevas construcciones pero en las que el concepto de espacio amplio y abierto es uno de sus rasgos fundamentales. Pues si, h ...

general casas inspiración ...

Hola a tod@s, hoy me gustaría invitaros a visitar este precioso loft en Terrasa diseñado por Egue y Seta. Se trata de un antiguo espacio comercial reconvertido en loft. El juego de espacios y alturas, las plantas y la luz juegan un papel protagonista en esta vivienda. El estilo en rasgos generales combina aire escandinavo con industrial. Me gustan mucho sus materiales, la calidez de la madera y e ...

General Interiorismo cocinas ...

El estilo industrial es uno de los que más me llaman la atención por la combinación de diferentes texturas y materiales: Ladrillos, pilares de hormigón, puertas, ventanas de acero, todo sobre una base en blanco. Este loft que os traemos hoy, nos muestra como el hormigón y el ladrillo cara vista puede combinar perfectamente dentro de nuestro hogar aportándole un toque muy personal a la decoración y ...

general

Una vivienda singular donde las haya; este antiguo local comercial, que fue una juguetería, pasó a convertirse en una casa ultramoderna con una distribución sorprendente. Dejaron las paredes imprescindibles, renovaron las instalaciones y combinaron materiales cálidos, como maderas de iroco y roble, con otros de estética loft, como hormigón, ladrillo visto o chapa galvanizada. Llama poderosame ...

Projects 3D Projects ...

Magnífico proyecto de loft  desarrollado en el corazón de Budapest, Hungría, en un edifico de 1928, antigua fábrica de ropa.  El área interior es de 150 m² y el diseño del proyecto, como se puede ver en los renders, propone dejar desnudo el ladrillo y el hormigón, dejando un estilo y carácter industrial a todo el interior. Para ciertas zonas se utilizan paneles decorativos y yeso en paredes que da ...