Mini pisos de revista (8)

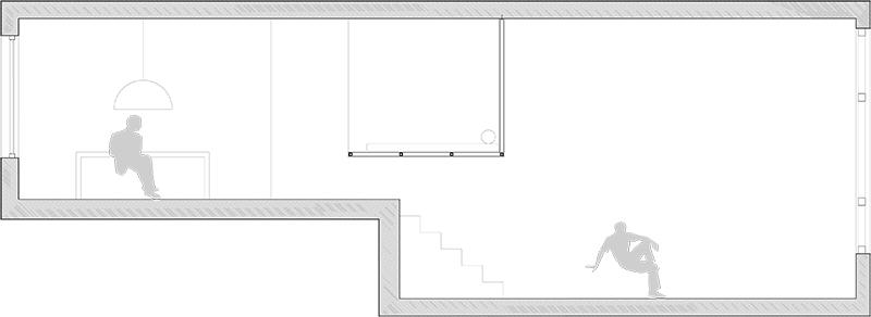
Esta vez os traigo un mini piso de 50m2 con una particularidad! Y es que además de estar distribuido en dos alturas tiene un dormitorio colgante para aprovechar el espacio al máximo!

fv-photos-publi-valentin-8


Y es que últimamente los mini pisos son el recurso más recurrente para la gente joven, poder alquilar un sitio donde vivir sin que nos salga por un dineral es sinónimo de mini piso! Y las cifras aumentan estrepitosamente su hablamos de ciudades grandes como Barcelona o Madrid.

La propuesta que os traemos pertenece al despacho de arquitectos parisinos ecdm. Han conseguido una solución vistosa y original para integrar el dormitorio en unas dimensiones reducidas.

08-valentin-vue-cube-4


La doble altura ya existente en el piso permitió que el dormitorio pudiera volar por encima de la zona del salón y así aprovechar al máximo la altura disponible.

detail Model (1)


detail Model (1)


04-vue-haut-valentin


06-valentin-vue-cube-2


07-valentin-vue-cube-3


CML0032
fuente ecdm

Que os ha parecido la propuesta de este lunes? Interesante la solución que han propuesto verdad?

Nos vemos en el próximo post!

Un saludo!

Fuente: este post proviene de arquiDESIgn, donde puedes consultar el contenido original.
¿Vulnera este post tus derechos? Pincha aquí.
Creado:
¿Qué te ha parecido esta idea?

Esta idea proviene de:

Y estas son sus últimas ideas publicadas:

No os parece que últimamente cuesta tener cosas originales en casa? Y es que cada vez más compramos todos en los mismos sitios. Así que hoy os traigo una propuesta para hacer que las tan conocidas vel ...

Empezamos la semana retomando los mini pisos. En esta ocasión nos encontramos con 30m2 donde el estilo nórdico y el color blanco se llevan todo el protagonismo. Gracias al dominio del blanco han conse ...

La temporada de bodas ya esta aquí de nuevo y nosotros volvemos a la carga con los wedding place!!! Si estás buscando un sitio para tu celebración no te pierdas esta sección! Hoy nos desplazamos al pa ...

Etiquetas: Sin categoría

Recomendamos