Planos de casas: ejemplo de nuestros proyectos

Cuando empezamos cualquier proyecto de diseño de interiores, y antes de tomar ninguna decisión sobre la distribución, es bueno hacer un layout o un plano colocando los muebles que queremos comprar (con sus respectivas medidas) Esto nos hace tener ver los espacios de una forma mucho más real. 

“Si estás pensando redistribuir o comprar muebles nuevos, estos planos de distribución son perfectos para no cometer ningún error”

interiorismo
Pinterest


En nuestros paquetes integramos la opción de estos planos de casas, justo antes de mandar el 3D, para tener muy claro la disposición de cada elemento. 

Y no sirve únicamente para los muebles y la decoración…Si tienes una duda sobre la distribución de las habitaciones o las paredes, estos planos también te ayudan a ver las diferencias y a tenerlo todo mucho más claro.

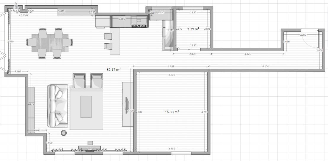
Ejemplos de planos para casas

¿Podría poner una cama de 1,35 metros en la habitación? ¿Cómo quedaría el espacio?

Esta fue una de las preguntas que recibimos en nuestro correo. Puede resultar complicado saber como va a quedar un mueble, aunque midas la habitación. Para estos momentos creamos Luciana Sanchez, para poder resolver dudas como esta sin que tengas que contratar a un diseñador de interiores muy caro. 

En el plano podemos ver las medidas totales del cuarto y los objetos con las proporciones exactas que tendrán en la vida real. 

distribución habitación
Pinterest


¿Dónde debo poner la cocina en mi nuevo piso?

Esta puede ser otras de las dudas que se presenten. Al empezar una reforma siempre le damos mil vueltas a la localización de las habitaciones…Es muy fácil aclararte si sigues nuestros consejos.

Podemos mandarte los planos que quieras hasta que estés convencido de la ubicación de todos tus muebles o habitaciones. Piensa que una vez tengas los muebles será muy difícil reemplazarlos, lo mejor es estar seguro de que lo que compras tengas las medidas correctas.

decoración
Pinterest


Si tienes dudas sobre la distribución de los muebles de tu casa, o sobre la colocación de las paredes/habitaciones, estamos seguros que estos planos de casas te serán de mucha utilidad y te sacará de todas las dudas. ¡Luciana Sanchez se ofrece a ayudarte en todo lo que podamos! Deja que nuestros layout te resuelvan todos los problemas.

Recuerda que nuestro diseño de interiores online es muy asequible, y la primera consulta es gratuita. ¿A qué estás esperando?

Facebook Instagram Pinterest Twitter

Diseño de interiores online desde 35 €

Consulta gratis

Fuente: este post proviene de Luciana Sanchez Blog, donde puedes consultar el contenido original.
¿Vulnera este post tus derechos? Pincha aquí.
Creado:
¿Qué te ha parecido esta idea?

Esta idea proviene de:

Y estas son sus últimas ideas publicadas:

Tiendas online con encanto Por Luciana Sanchez Hoy en día cada vez más tiendas están disponibles online. Esto tiene sus ventajas, porque podemos encontrar casi todo lo que necesitamos y que nos lo tr ...

Cómo reformar tu baño en 5 pasos Por Luciana Sanchez Hoy os enseñamos cómo reformamos nuestro baño con un bajo presupuesto en 5 pasos. Te dejamos nuestro video de Youtube explicándotelo. Y por si er ...

Etiquetas: Trucos

Recomendamos

Relacionado

planos para casas diseño de departamentos con tres habitaciones diseños de departamento pequeño con dos habitaciones ...

Para todas aquellas personas que tienen en mente construir un pequeño departamento, el tema de hoy les viene como anillo al dedo. Vamos a analizar algunos de los mejores planos de departamentos pequeños, que tienen todo lo necesario para nuestro hogar. Veremos: Planos para departamentos de una habitación, Diseños de departamento pequeño con dos habitaciones, Distribución ideal para un departamento ...

arquitectura planos para casas diferentes planos con medidas ...

En esta ocasión como podrás ver en el titulo del post, vamos a compartirte en Ingeniería Civil Y arquitectura diferentes ideas y diseños de Planos para construir casas, Planos para casas de dos pisos, Diseños de planos para casas grandes, Planos para casas pequeñas, Diferentes planos con medidas, Diseños de planos para la distribución de casas de un piso, entre muchos ejemplos y variaciones más qu ...

Planos para casas Diseño de cocheras para casas de tres plantas Diseño de interiores de casas de 3 plantas ...

En esta ocasión queremos compartirte las mejores ideas y diseños de planos de casas de 3 pisos, ya que anteriormente o normalmente compartimos planos e ideas de casas de una planta o de dos máximo. Hoy por hoy las casas de 3 pisos se han popularizado mucho, te aseguro que más de uno de los diseños te va a sorprender y sin duda te gustara intentarlas… Veremos: Fachadas de casas de 3 pisos, Pl ...

Planos para casas Colores para el diseño de casas rectangulares Diseño de interiores para casas rectangulares ...

Para todas aquellas personas que están buscando diseños de casas de lo más simples y básicas. Traemos para ti estas opciones de planos de casas rectangulares de una planta. En las que además de conseguir un diseño básico, podemos darnos el lujo de mejorar increíblemente la distribución del terreno, para aprovecharlo al máximo. Así que si esta es la forma del terreno del que dispones, te invitamos ...

planos para casas planos de casas grandes modernas

En esta ocasión como podrás ver en el titulo del post, te vamos a compartir en Ingeniería Civil y Arquitectura diferentes ejemplos de planos de casas grandes modernas. En las que como podrás ver te podrás apoyar para elegir el plano y la distribución ideal para tu casa. El estilo moderno es sin duda hoy en día de uno de los estilos de decoración y de construcción más buscados en todos lados. Así q ...

planos para casas casas modernas con cochera diseños de casas pequeñas modernas ...

Explora una colección exclusiva de planos de casas con fachadas modernas que combinan funcionalidad y diseño vanguardista. Estas propuestas no solo optimizan el uso del espacio, sino que también destacan por su estética contemporánea, líneas limpias y materiales innovadores. Si estás buscando inspiración para tu próximo proyecto residencial, estos planos te ofrecerán una visión clara de cómo logra ...

Planos para casas Diseños de casas de dos pisos Ideas de planos para casas de dos habitaciones ...

En esta ocasión como podrás ver en el titulo del post, te queremos compartir en Ingeniería civil y arquitectura, diferentes ejemplos e ideas de planos para casas sencillas que te van a ayudar a construir la casa de tus sueños. Desde siempre te hemos compartido todo tipo de ideas y de consejos para que las uses como inspiración con tu casa ideal. Así que veremos diferentes ejemplos de planos que te ...

Blog Una Planta descargar pdf ...

Los planos de una casa para construir de una planta son los planos más demandados debido a que una segunda planta además de incrementar en sobre volumen el precio (hace aumentar la media del precio por metro cuadrado construido) requiere que en la zona se pueda construir dos plantas, que por lo general en zonas de campo no estar permitido. 1º Plano gratis para construir El primer plano que vamos a ...

planos para casas planos de casas grandes de dos pisos

El día de hoy Como podrás ver en el titulo del post, vamos a compartirte en Ingeniería civil y arquitectura, diferentes ejemplos y diseños de planos de casas grandes de dos pisos que puedan inspirarte y aportar todo tipo de ideas para que construyas la casa de tus sueños. Y es que muchas personas soñamos con una casa amplia de dos niveles, pero muy pocas sabemos como sacarle el máximo provecho a u ...

Otras Pequeña Sencillas ...

En el artículo que publicamos hoy vamos a centrarnos en diseños y planos de casas que son pequeñas y a la vez tienen tienen su encanto. Todos estos planos están diseñados para ser construidos en terrenos reducidos ya sea por metros cuadrados limitados para construir debido a la normativa o bien porque se decide vivir una vida minimalista y con lo necesario. Todos los planos aquí mostrados son dist ...