*Before & After* De trastero a estudio / From storage room to a studio

Como ya sabéis soy fan de los proyectos *Before and After* y por ello quiero que le echéis un vistazo a este del antes y después de un trastero convertido en estudio en Estocolmo. El resultado no puede ser mejor, ya que con una no muy enrevesada ni complicada reforma, la arquitecta Karin Matz ha creado un estudio original a la par que práctico y con mucho carácter.

As you know I’m a huge fan of *Before and After* projects and that’s why I want you to take a look at this one of a storage room converted into a studio in Stockholm. The result can’t be better because with a not very convoluted neither complicated reform, the architect Karin Matz has created an original and practical studio with a lot of character. 

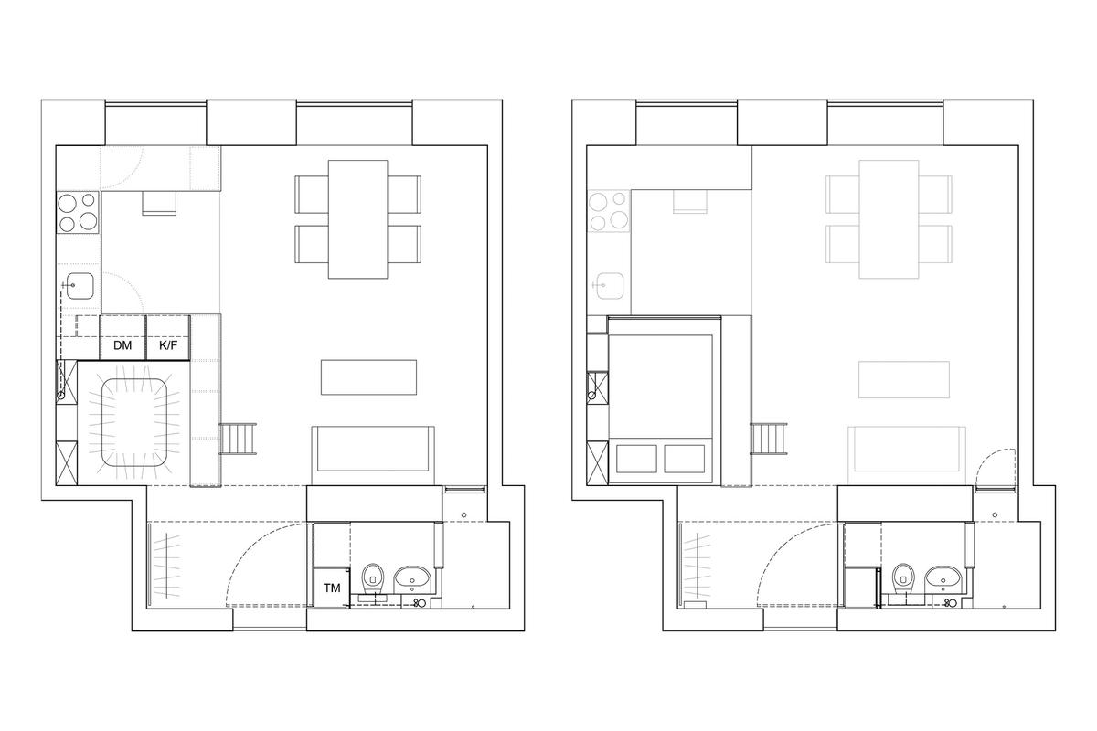
La reforma ya había sido empezada por su antiguo inquilino y por ello la arquitecta decidió dejar algunos elementos tal y como los encontró, el papel pintado a medio quitar, los azulejos verdes en el baño, etc? En tan solo 36 metros cuadrados, este estudio cuenta con todas las comodidades de una casa; cocina, baño, salón-comedor, dormitorio y ¡hasta vestidor!, ¿entramos?

The reform had already been started by its former tenant and so the architect decided to leave some elements as she found them, the only half-removed wallpaper, green tiles in the bathroom, etc… In just 36 square meters, this studio has all the comforts of a house; kitchen, bathroom, living room, bedroom and even a dresser!, shall we enter?

*Before & After* De trastero a estudio - From storage room to a studio_18
*Before & After* De trastero a estudio - From storage room to a studio_16
*Before & After* De trastero a estudio - From storage room to a studio_10
*Before & After* De trastero a estudio - From storage room to a studio_12
*Before & After* De trastero a estudio - From storage room to a studio_15
*Before & After* De trastero a estudio - From storage room to a studio_09
*Before & After* De trastero a estudio - From storage room to a studio_04
*Before & After* De trastero a estudio - From storage room to a studio_14
*Before & After* De trastero a estudio - From storage room to a studio_05
*Before & After* De trastero a estudio - From storage room to a studio_13
*Before & After* De trastero a estudio - From storage room to a studio_06
*Before & After* De trastero a estudio - From storage room to a studio_07
*Before & After* De trastero a estudio - From storage room to a studio_08
*Before & After* De trastero a estudio - From storage room to a studio_01


Via: Architectural Digest

¿Os ha gustado el resultado?
¿Qué os parecería vivir en 36 metros cuadrados?

Did you like the result?
What do you think about living in 36 square meters?

Que tengáis un buen viernes y un estupendo fin de semana, ¡nos vemos la semana que viene!

Have a nice Friday and a great weekend, see you next week!!

*Ana*

La entrada *Before & After* De trastero a estudio / From storage room to a studio aparece primero en Decoraddiction.

Fuente: este post proviene de Decoraddiction, donde puedes consultar el contenido original.
¿Vulnera este post tus derechos? Pincha aquí.
Modificado:
¿Qué te ha parecido esta idea?

Esta idea proviene de:

Y estas son sus últimas ideas publicadas:

Recomendamos

Relacionado

general *before & after* before & afer ...

¡¡Holaaa a todos!! Vamos a empezar la semana viajando a Francia! Os quiero mostrar la asombrosa transformación de un apartamento en París. Antes era anticuado, sobrio, poco práctico y con una decoración muy aburrida. El objetivo de esta transformación era el de convertir esta vivienda en un espacio acogedor y con encanto. ¡Vamos a ver el origen! Hiii everybody!! We’ll start the week travelin ...

general *before & after* before & afer ...

¡¡Hola decoraddicters!! ¿Como estáis? Seguramente ya os hayáis dado cuenta de lo mucho que me gustan los proyectos de “Antes y Después”, y la razón es que me encanta ver como un mismo espacio puede convertirse en otro tan diferente. Los consejos para realizar una transformación existosa pueden ser infinitos, pero creo sobre todo la ilusión por crear un nuevo espacio y el deseo de verlo ...

general before & afer espacios pequeños ...

¡¡Hola a todos!! ¿Qué tal lleváis la semana? Ya hace tiempo que no os enseño un proyecto de “Antes y Después” por lo que he decidido que el post de hoy será sobre eso. El proyecto que os quiero mostrar es la renovación completa de una vieja cocina. Primero os enseñaré algunas imágenes de cómo era antes, con unos armarios muy viejos y rotos y un mal aprovechamiento del limitado espacio ...

general antes y despues (before and after)

Before and after... from avocado green to bright and airy Una vez más podemos ver en este proyecto la magia de la pintura y como puede impactar en un espacio. A mi me encanta la sensacione de luminosidad y frescura que da la pintura blanca así que me encanto esta transformación. Espero que tengan una muy buena semana! Once again we can see in this project the magic of paint and how can it trans ...

Antes y despues (before and after) Inspiración

Before and after of an incredible kitchen Ustedes saben que me encanta un buen antes y después y esta cocina es exactamente eso! disfruta de esta asombrosa transformación del blog adventures in cooking en donde puedes encontrar toda la información del proceso. You know I love a good before and after and this kitcen is exactly that! enjoy this amazing transformation from adventures in cooking ...

general antes y despues (before and after)

Before and after.......The house of the collectionsSiempre me emociono mucho cuando veo fotos de antes y después y la transformación de esta casa de chango.co me impresiono mucho. Una de las cosas que más me gusto fueron las colecciones por toda la casa como los espejos de madera en el baño, o los moldes de zapatos en la pared de la escalera y muchas más que notarás. Disfruta este antes y después ...

general antes y despues (before and after) inspiración

Before and after....a complete transformation! No te querrás perder la renovacion de este departamento de dos cuartos! La dueña de este lugar, Elizabeth, originalmente solo planeaba remodelar el baño cuando compro este departamento, pero su contratista le ayudo y ver mas allá y con algunos simples cambios y el mismo presupuesto con el que contaba pudo tener un completamente renovado departamento! ...

general *my new home* before & afer ...

¡¡Hola a todos!! ¿Qué tal va vuestra semana? La mía genial, en parte gracias al clima primaveral que estamos teniendo en Madrid! En el post de hoy os quiero enseñar una gran renovación de un salón. Veréis como simplemente cambiando algunos muebles, añadiendo nuevos textiles y reorganizando el espacio y los objetos, se puede transformar […] La entrada Antes y después de un salón // Before and ...

general mis proyectos (my diy) mi casa (my house) ...

DIY wood stools transformation (before and after)Tenemos una isla en nuestra cocina y necesitaba unos bancos, no estaba segura de lo que realmente quería así que me fui de compras con la esperanza de encontrar unos bancos que me robaran el ? (así es como me siento cuando encuentro algo de decoración que me gusta mucho mucho) Fui a diferentes lugares y me empecé a sentir algo triste o desanimada po ...

Mi casa (my house)

My boys bedroom reveal Hola hola, hay otro proyecto más en nuestra nueva casas que esta terminado y es la recámara de mis niños, Esta es una recámara que comparten mis 2 hijos menores y quería que fuera divertida y que ambos la disfrutaran y a ellos les encanto! asi que yo estoy feliz :) Hello hello, theres another project in our new house that its done and that is our boys bedroom, this is a be ...