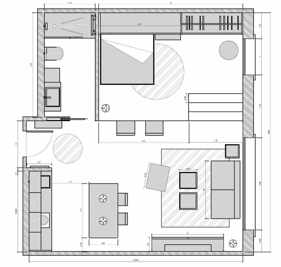
Llevaba un montón de tiempo sin hacer mini-pisos y de golpe me han caído tres encargos. Aquí va el primero:
-Planta cuadrada de 5,9 x6.40
-Altura total 3.40 m. en el punto más alto y 2.2 en el más bajo
-Techos abuhardillados con vigas y un pilar central
-Necesidades: cama 1.50, espacio de trabajo, tv grande, baño completo con ducha amplia e inodoro suspendido, zona de estar con cama supletoria. Espacio de almacenaje. Sencillez y pocos muebles.
He creado una zona de dormitorio en altura, que utiliza la zona interior como armario oculto al que se accede por una puerta escamoteable situada bajo la mesa de estudio. Esta a su vez, es una prolongación del suelo del dormitorio… creando un juego de volúmenes y formas, que a mí al menos, me gusta mucho. Sin tabiques ni divisiones, espacios diáfanos y sencillos que dan sensación de amplitud y luminosidad.










