Diseños de Planos de Casas de Dos Pisos

En este artículo vamos a ver diferentes modelos de planos de casas de dos pisos en los cuales adjuntaremos también su fachada para tomar como referencia para nuestras ideas. Estos planos son ideales para utilizarlos para la reforma de nuestra vivienda o para construir una nueva.

Veamos los mejores planos de casas bonitas de dos pisos que han elegido nuestros arquitectos para este gran artículo:

1. Casa bonita de dos pisos con porche exterior

casa bonita con porche exterior
Esta bonita casa de 2 pisos tiene 4 dormitorios, todos en la segunda planta. Esta vivienda tiene un amplio garaje con espacio para dos vehículos, su planta baja esta destinada al ocio donde se encuentra la cocina, comedor y salón sin divisiones. También encontramos en la planta inferior una salita destinada a oficina.

Total habitable: 153 metros cuadrados.

Tamaño de parcela: 492 metros cuadrados (debido al porche exterior).
Aquí vemos el frente de la casa que tiene el acceso directo al garaje y la otra parte de la fachada es la parte trasera de la vivienda, la cual han decidido dejar el porche exterior descubierto pero con la posibilidad de colocar un techo.

2. Diseño sencillo de casa de dos pisos

plano con medidas de casa de dos pisos
Este diseño de plano esta muy bien optimizado aprovechando al máximo todos los espacios. Tiene garaje cerrado, en la planta baja se encuentra la zona de vida y comedor para 5-6 personas.

Total habitable: 83 metros cuadrados.

Tamaño de parcela: 320 metros cuadrados.
La planta superior tiene 3 dormitorios, y el dormitorio de matrimonio incluye un vestidor y balcon privado. Los dormitorios individuales tiene un balcon muy amplio compartido.

3. Plano de casa de dos pisos en México

plano de casa de mexico
Este plano ha sido construido por un cliente nuestro en México, buscaba una casa con 4 dormitorios, estando el de matrimonio en la planta baja y los tres restante en el nivel superior

Total habitable: 118,24 metros cuadrados.

Tamaño de parcela: 308 metros cuadrados.
Esta casa tiene dispuesta la cocina, comedor y salon de forma lineal sin división porque son partidarios de los espacios abiertos.

4. Casa de dos niveles de dos recamaras

plano de casa con dos recamaras


Esta casa es una de las que optimizan de forma muy eficaz el espacio, aqui vemos un ejemplo de un hogar de 2 pisos para casas pequeñas.

Total habitable: 50,50 metros cuadrados.

Tamaño de parcela: 195 metros cuadrados.
En la planta inferior se encuentra todo lo necesario para hacer vida, estando en el centro de la casa la chimenea, y en la planta superior se disponen los dos dormitorios.

fachada de una casa sencilla de dos pisos

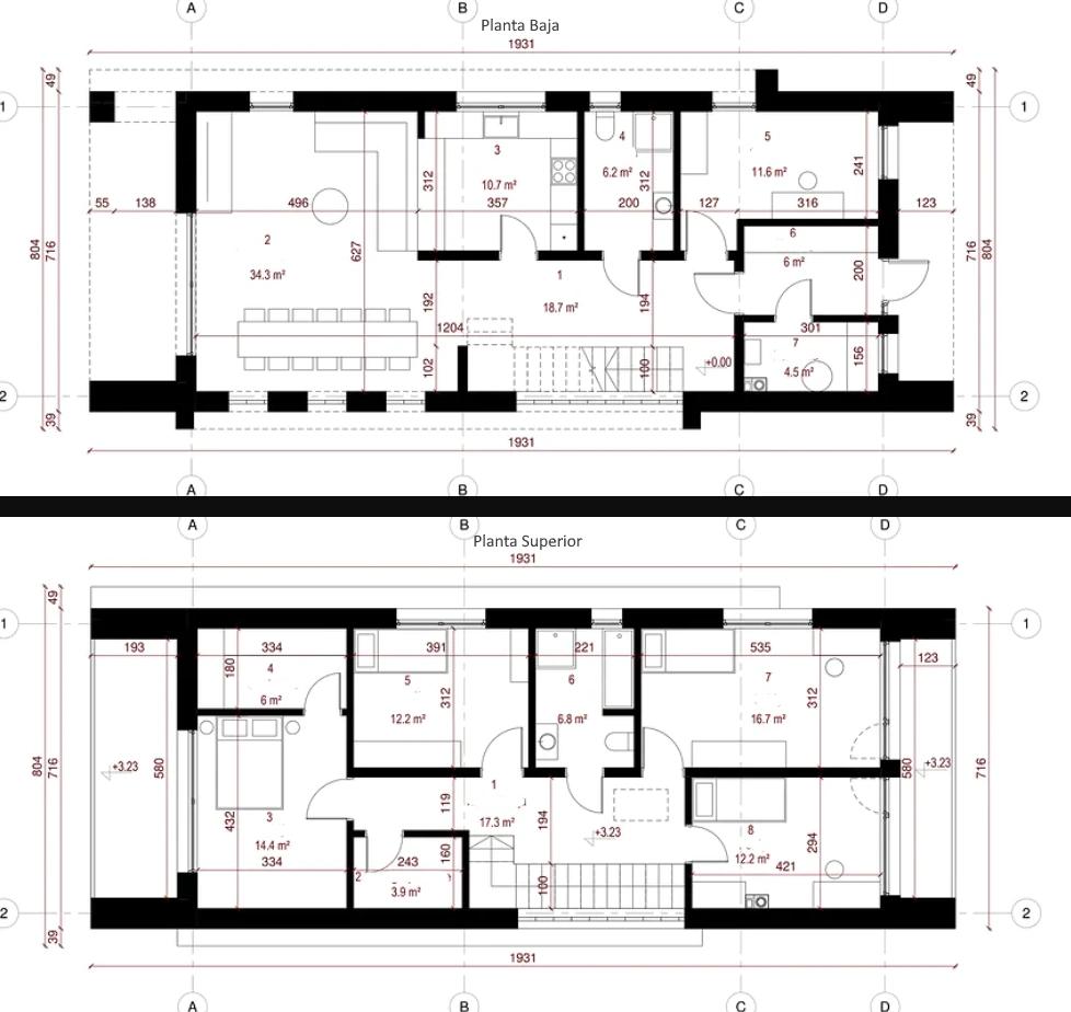
5. Plano de casa grande con 5 dormitorios

fachada de casa moderna de 5 dormitorios


Distribución del Plano piso inferior:

1. salón: 18,70 m²

2. Salón + comedor: 34,30 m²

3. Cocina: 10,70 m²

4. Baño: 6,20 m²

5. Dormitorio: 11,60 m²

6. Pasillo Balcon: 6 m²

7. Sala de calderas: 4,50 m²
Distribución del Plano planta superior:

1. Corredor: 17,30 m²

2. Almacenaje: 3,90 m²

3. Dormitorio: 14,40 m²

4. Vestidor: 6 m²

5. Dormitorio: 12,20 m²

6. Baño: 6,80 m²

7. Dormitorios: 16,70 m²

8. Dormitorios: 12,20 m²
plano completo de las dos plantas


6. Plano de casa sencilla

fachada de casa tradicional de dos pisos y con garaje


Este plano representa una casa sencilla, incluso viendo su fachada vemos que es más tradicional, sin embargo por ello no pierde ningún detalle, puesto que tiene cochera cubierta para hasta 2 vehículos.

medidas y plano de la planta baja


La planta superior alberga los tres dormitorios que tiene esta casa de dos plantas, con una distribución lógica, dormitorio de matrimonio separado de los dos dormitorios individuales.

plano con medidas de la planta superior


Fuente: este post proviene de Planos de casas gratis, donde puedes consultar el contenido original.
¿Vulnera este post tus derechos? Pincha aquí.
Creado:
¿Qué te ha parecido esta idea?

Esta idea proviene de:

Y estas son sus últimas ideas publicadas:

Recomendamos

Relacionado

Blog casa unifamiliar casas chicas pero bonitas ...

Este artículo lo comenzamos con planos de casas 2 pisos, son un tipo de plano muy demandado ya que maximiza el espacio para poder construir encimad de la primera planta. Dos pisos suele ser la opción más popup¡lar, porque cumple con las leyes de urbanismo, así como la relación espacio-precio es más asequible para el usuario. Planos de Casas 2 Pisos 1. Plano de Casa de Dos Pisos con cochera 2. Pl ...

Sencillas 148m2 4 dormitorios ...

Este diseño de casa permite aparcar dos coches bajo una cubierta creada por la propia casa sin estropear el diseño de la fachada. La casa consta de dos plantas y su diseño exterior es moderno. La superficie útil total es de 147 metros cuadrados, construidos en un terreno 8×10. Plano con todas las medidas En la planta baja de esta casa se encuentra la zona de vida, ya que esta la cocina, come ...

Planos para casas Diseño de cocheras para casas de tres plantas Diseño de interiores de casas de 3 plantas ...

En esta ocasión queremos compartirte las mejores ideas y diseños de planos de casas de 3 pisos, ya que anteriormente o normalmente compartimos planos e ideas de casas de una planta o de dos máximo. Hoy por hoy las casas de 3 pisos se han popularizado mucho, te aseguro que más de uno de los diseños te va a sorprender y sin duda te gustara intentarlas… Veremos: Fachadas de casas de 3 pisos, Pl ...

Otras Pequeña Sencillas ...

En el artículo que publicamos hoy vamos a centrarnos en diseños y planos de casas que son pequeñas y a la vez tienen tienen su encanto. Todos estos planos están diseñados para ser construidos en terrenos reducidos ya sea por metros cuadrados limitados para construir debido a la normativa o bien porque se decide vivir una vida minimalista y con lo necesario. Todos los planos aquí mostrados son dist ...

Fachadas de casas Casas de dos pisos modernas Casas de dos pisos modernas pequeñas ...

El día de hoy queremos compartir con todos los lectores, diferentes de los mejores diseños de fachadas de casas dos pisos en los que sin problema te puedes inspirar si tienes en mente remodelar tu casa o construir una desde cero. Sobre todo si tienes considerada la opción de construir una casa de dos plantas. Así que toma nota de todos los aspectos que te vamos a mencionar. ¡Espero te sean de ayud ...

arquitectura planos para casas diferentes planos con medidas ...

En esta ocasión como podrás ver en el titulo del post, vamos a compartirte en Ingeniería Civil Y arquitectura diferentes ideas y diseños de Planos para construir casas, Planos para casas de dos pisos, Diseños de planos para casas grandes, Planos para casas pequeñas, Diferentes planos con medidas, Diseños de planos para la distribución de casas de un piso, entre muchos ejemplos y variaciones más qu ...

planos para casas casas pequeñas con cochera diseños modernos grandes ...

El día de hoy como podrás ver en el titulo del post, te queremos compartir en Ingeniería Civil y Arquitectura algunos de los mejores planos de casas modernas con cochera. Que sabemos que es una de las características y cualidades que al menos son de las más buscadas por diferentes tipos de personas. Así que si tu también estás pensando en añadir este detalle al diseño de tu casa, sin duda puedes i ...

Planos para casas Diseños de casas de dos pisos Ideas de planos para casas de dos habitaciones ...

En esta ocasión como podrás ver en el titulo del post, te queremos compartir en Ingeniería civil y arquitectura, diferentes ejemplos e ideas de planos para casas sencillas que te van a ayudar a construir la casa de tus sueños. Desde siempre te hemos compartido todo tipo de ideas y de consejos para que las uses como inspiración con tu casa ideal. Así que veremos diferentes ejemplos de planos que te ...

casas de campo casas de campo de dos pisos con techo de teja casas de campo de dos pisos estilo rústico ...

Como podrás ver en el titulo del post, en esta ocasión queremos compartirte en Ingeniería Civil Y Arquitectura diferentes ejemplos de diseños de casas de campo de dos pisos en los que te podrás inspirar para conseguir la casa de tus sueños. Y es que sin duda, una casa de dos pisos puede traerle muchos más beneficios a nuestra vivienda, sobre todo si sabemos aprovechar cada uno de los espacios en e ...

planos para casas planos de casas grandes de dos pisos

El día de hoy Como podrás ver en el titulo del post, vamos a compartirte en Ingeniería civil y arquitectura, diferentes ejemplos y diseños de planos de casas grandes de dos pisos que puedan inspirarte y aportar todo tipo de ideas para que construyas la casa de tus sueños. Y es que muchas personas soñamos con una casa amplia de dos niveles, pero muy pocas sabemos como sacarle el máximo provecho a u ...