Plano de Casa de 4 Dormitorios, Elegante y Moderna 332m2

El plano está diseñado para aprovechar la luz natural con ventanas estratégicamente ubicadas, El acceso al porche trasero brinda opciones para actividades al aire libre. Esta casa cuenta con 332 metros cuadrados, incluyendo el garaje y las dos plantas de la vivienda.

fachada de casa moderna y elegante


Esta casa de diseño contemporáneo destaca por su estilo minimalista y elegante, con líneas rectas y formas geométricas bien definidas. La combinación de tonos claros en las paredes con detalles en madera y grandes ventanales crea una apariencia luminosa y sofisticada, mientras que el uso estratégico de vidrio permite una excelente entrada de luz natural. La puerta principal, ubicada bajo un techo con acabado de madera, actúa como un punto focal que aporta calidez al diseño.

El garaje lateral se integra perfectamente al conjunto, manteniendo la armonía de la fachada. En el segundo nivel, una terraza con barandales modernos extiende los espacios al aire libre. Además, el pequeño jardín frontal con plantas bajas añade un toque natural que equilibra la estética moderna.

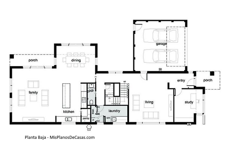
Planta baja del plano

La planta baja de esta casa combina funcionalidad y estilo con una distribución bien pensada, cuenta con una distribución en concepto semi-abierto que conecta las áreas sociales pero mantiene cierta separación entre los espacios más formales e informales.

plano distribuido
Esta planta tiene 172 m2.


A continuación, detallo los espacios principales:

Entrada y estudio:
Al entrar por el área designada como “entry”, se encuentra un pequeño porch que da la bienvenida a la casa. A la derecha de la entrada se encuentra un espacio destinado a study (estudio), ideal como oficina o sala de lectura, con buena iluminación natural.

Sala de estar formal:
Junto al estudio está la living room, una sala de estar formal que ofrece un espacio cómodo y separado del resto de las áreas sociales de la casa.

Cocina y comedor:
La cocina (kitchen) está situada en el centro del plano, equipada con una amplia isla y una despensa (pantry) contigua. La cocina se conecta directamente con el área de dining (comedor), que tiene acceso al porch trasero, perfecto para cenas al aire libre.

Sala familiar:
Hacia la izquierda, se encuentra el family room, un espacio abierto y amplio, ideal para reuniones informales y relajación en familia.

Lavandería y servicios:
Cerca de la cocina se encuentra el área de laundry (lavandería) equipada con un lavadero y espacio para lavadora/secadora. También hay un baño pequeño (pdr, o medio baño) y un acceso al garaje.

Garaje:
El garaje tiene espacio para dos vehículos (garage), con entrada directa a la casa, proporcionando comodidad y seguridad.

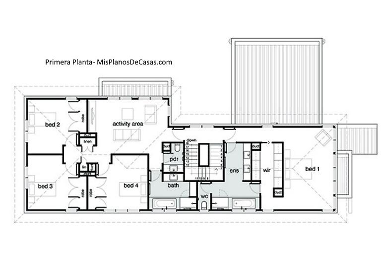
Primera planta del plano

La primera planta de esta vivienda se centra en el descanso y la privacidad de sus ocupantes, ofreciendo una excelente distribución de habitaciones y áreas comunes.

plano arquitectonico


A continuación, se describen sus principales espacios:

Habitaciones secundarias:
En el lado izquierdo del plano se encuentran tres habitaciones secundarias (bed 2, bed 3 y bed 4).
Las habitaciones bed 2 y bed 3 comparten un baño completo en el centro y cuentan con armarios empotrados.

La habitación bed 4 está ubicada cerca de un baño adicional y es una excelente opción para huéspedes o un miembro de la familia que requiera más privacidad.

Área de actividades:
En el corazón de la planta se encuentra el espacio designado como activity area, un área abierta que puede utilizarse como sala de juegos, zona de estudio o sala familiar adicional.

Habitación principal:
La bed 1, o suite principal, ocupa el lado derecho del plano, ofreciendo máxima privacidad.
Incluye un baño en suite (ens) con doble lavabo, ducha y WC privado.

Cuenta con un amplio vestidor (WIR) y acceso a un balcón o terraza exterior, lo que añade un toque de lujo.

Baños:
Además del baño en suite de la habitación principal, hay un baño completo adicional (bath) y un medio baño (pdr) en esta planta para uso general. Descargar Plano en PDF

Fuente: este post proviene de Planos de casas gratis, donde puedes consultar el contenido original.
¿Vulnera este post tus derechos? Pincha aquí.
Creado:
¿Qué te ha parecido esta idea?

Esta idea proviene de:

Y estas son sus últimas ideas publicadas:

Recomendamos

Relacionado

Dos Plantas Modernas Sencillas ...

Hoy os presentamos de forma gratuita el plano de esta casa de recién publicación, la casa tiene 211 metros construidos, y son 154 metros habitables. La fachada de la casa es atrevida ya que no se suele combinar piedra con madera y colores claros, pero el resultado final es sorprendente. A simple vista parece una casa mucho más lujosa de lo que es, y sin embargo, los materiales empleados no son los ...

Cuatro Dormitorios Cuatro Habitaciones dos Plantas ...

En esta ocasión hemos traído un plano de casa que ya ha sido llevado a la realidad y construido. Este plano consta de 176 metros cuadrados, repartidos en 4 dormitorios, 2 cuartos de baños completo y un wc, cocina, comedor, salón y garaje. La planta primera tiene 128 metros cuadrados y la segunda planta tiene 48 metros cuadrados. Resumen del hogar: Dormitorios: 4 Baños: 3 Plazas de Garaje: 2 Plant ...

Dos Habitaciones Modernas Una Planta ...

Este plano de casa muestra un diseño compacto y eficiente, ideal para un hogar pequeño. La vivienda está alineada con un diseño moderno y compacto. A continuación se presenta una descripción detallada de las diferentes áreas del plano. Distribución de la vivienda 1. Dormitorios Dormitorio 1 (Bed 1) Dimensiones: 4.0 x 3.0 metros. Ubicación: En la parte superior izquierda del plano. Característ ...

Cuatro Habitaciones dos Plantas Dos Plantas ...

Este plano esta diseñado para ser construido en terrenos estrechos, y aprovechar al máximo la altura disponible. La construcción de casas de más de un piso incrementa el valor de la construcción pero facilita el espacio habitable. Resumen del hogar: Dormitorios: 4 Baños: 4 Plazas de Garaje: 1-2 Plantas: 2 La vivienda cuenta con un garaje abierto techado, con capacidad para dos coches medianos o u ...

Cuatro Habitaciones dos Plantas Dos Plantas ...

En esta ocasión vemos una casa de tres plantas reales, pero dos disponible para la vida y la tercera y opcional es para ser utilizada como terraza. El espacio habitable de la vivienda es de 161 metros cuadrados. El estilo de la fachada es novedoso y además le da un aire muy fresco por la utilización de plantas y pequeños arbustos, totalmente compatible para ser utilizados en la ciudad. Plano con ...

cuatro dormitorios cuatro habitaciones de madera ...

Esta magnifica casa a sido construida en una parcela de 700 m2, la superficie útil de la vivienda son de 176 metros cuadrados que se encuentra dividida en 4 dormitorios. La casa tiene aspecto de cabaña moderna, ya que se ha conservado la parte superior de la casa en maderas vista, y la parte inferior ha sido levantada sobre bloques. El techo de la vivienda es a dos aguas, con un ángulo de 30º ...

Cuatro Habitaciones dos Plantas Dos Plantas ...

Esta mansión tipo cubo tiene un precio más alto de las vivienda habitual de su tamaño, ya que esta considera como una casa de un plano de lujo por los materiales empleados para su construcción. Parte trasera del hogar donde hay espacio para una piscina. Resumen del hogar: Dormitorios: 4 Baños: 2.5 Plazas de Garaje: 0 Plantas: 2 El acceso a la casa se realiza desde el lado lateral, tal y como se mu ...

Dos Plantas Modernas Tres Habitaciones ...

Esta casa de techo inclinado a un agua de estilo moderno, luce una preciosa fachada de dos materiales (totalmente modificable), hormigón visto y madera exterior. El plano de esta casa puede ser descargado gratis, la casa consta de 130 metros cuadrados. Resumen del hogar: Dormitorios: 3 Baños: 2.5 Plazas de Garaje: 2 Plantas: 1 La cocina no tiene un gran espacio pero suficiente para hacer todo lo ...

Dos Habitaciones Dos Plantas Modernas ...

Este plano de casa es un típico diseño de plano oriental. Debido al espacio de construcción tan reducido que existen en los países asiáticos, intenta realizar plantas de dos casas con una distribución para obtener la mayor utilidad posible. Resumen del hogar: Dormitorios: 2 Baños: 2 Plazas de Garaje: 0 Plantas: 2 Cuando se entra en la casa nos encontramos en el salón abierto con el comedor, que o ...

Dos Plantas Modernas Tres Habitaciones ...

Esta casa tiene un estilo muy innovador y moderno, con construcciones elevada y con un comedor acristalado. Puedes descargar el plano de esta casa desde este artículo, la casa consta de 128 metros cuadrados. Resumen del hogar: Dormitorios: 3 Baños: 2 Plazas de Garaje: 0 Plantas: 2 Esta casa tiene construida la segunda planta sobre la piscina, algo bastante novedoso. En la primera planta se encuen ...