Libro Gratis con 200 Planos de Casas con Medidas

Este libro se publico hace ya 2 años, pero sigue siendo muy popular, por la red se sigue compartiendo con la publicidad de que son 700 planos de casas, pero realmente son 200 planos que uní en un solo libro para poder divulgarlo entre la comunidad para que tomen ideas a la hora de construir su casa.

catalogo con planos de casas


Todos los planos son de libre distribución por lo que su descarga es gratuita, siempre podrás realizar la descarga desde nuestro servidor sin necesidad de registro. Se agradece que se comparta el artículo si ha gustado.

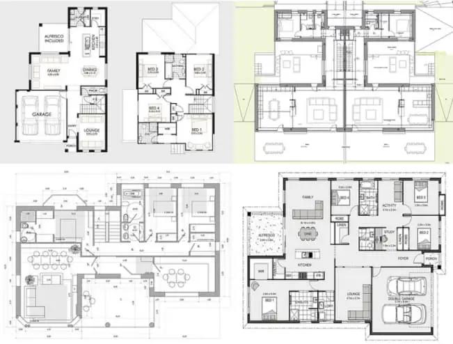
Plano de una casa con medidas

Estos planos cuenta con sus medidas, aunque en algunos casos las medidas se han dejado de forma ambigua ya que, por ejemplo las posición de algunas ventanas son de libre elección, no obstante es importante las siguiente consideraciones:

Escala: Verifica la escala del plano, que indica la relación entre las dimensiones reales de la casa y las representadas en el plano. Por ejemplo, si la escala es 1:100, cada unidad en el plano representa 100 unidades reales. Esto te ayudará a interpretar correctamente las medidas.

Dimensiones exteriores: Identifica las dimensiones exteriores de la casa, que generalmente se encuentran en la parte inferior del plano. Estas dimensiones te darán una idea de la forma y el tamaño general de la estructura.

Medidas de las habitaciones: Presta atención a las medidas de las habitaciones individuales, como dormitorios, sala de estar, cocina, baños, etc. Estas medidas te permitirán determinar el tamaño y la distribución de los espacios internos.

Alturas: Observa las alturas indicadas en el plano, especialmente en áreas como techos y escaleras. Esto te ayudará a comprender la altura del techo en diferentes partes de la casa, así como la ubicación y la inclinación de las escaleras.

Puertas y ventanas: Fíjate en las medidas de las puertas y ventanas en el plano. Esto te permitirá evaluar su tamaño y posición en relación con las habitaciones y las paredes circundantes.

Distancias y relaciones espaciales: Examina las distancias entre las diferentes áreas y los elementos importantes, como pasillos, escaleras, entradas, etc. Esto te ayudará a entender cómo se relacionan las diferentes partes de la casa.

Dimensiones del terreno: Si el plano incluye un dibujo del terreno, presta atención a las dimensiones del mismo, incluyendo el ancho y largo del terreno, así como la ubicación de elementos externos como jardines, patios o garajes.
planos de casas


Recuerda que es esencial entender y familiarizarte con las convenciones y símbolos utilizados en los planos de la casa para interpretar correctamente la información. Si tienes alguna pregunta específica sobre un plano en particular, no dudes en consultarlo con un profesional en arquitectura o construcción.

Diseño del hogar para su construcción

Esta etapa es la más emocionante de todo el proceso de construcción. Es el momento en el que debes compartir todas tus ideas con el arquitecto o ingeniero con quien trabajarás. El mejor consejo en esta fase es mantener una comunicación abierta con este profesional para lograr un diseño que cumpla todos tus sueños.

Es importante tener en cuenta que los proyectos arquitectónicos deben cumplir con ciertas regulaciones de construcción. El arquitecto considerará los estudios técnicos obligatorios para la construcción de viviendas y te ofrecerá asesoramiento sobre tus opciones. Durante esta etapa, puedes dejar volar tu imaginación, pero también debes tener en cuenta tus limitaciones.
Hay que tener en consideración las recomendaciones del arquitecto, ya que en ocasiones habrá diseños que no son los idóneos por problemas estructurales o ineficiencia.

No obstante, es posible crear un diseño que pueda ser completado gradualmente. Si en este momento no cuentas con el presupuesto para contratar una empresa de construcción, no te preocupes. Comunícale a tu arquitecto o ingeniero civil cuál es tu deseo, y podrán reservar suficiente espacio para su instalación en el futuro.

Descarga gratuita del libro con los planos de casa

¡Descarga gratis nuestro exclusivo libro con 200 planos de casa! Esta invaluable guía te brindará inspiración y orientación en cada etapa de la construcción de tu hogar. Explora una amplia variedad de diseños y estilos arquitectónicos, desde casas pequeñas y acogedoras hasta residencias espaciosas y modernas. ¡No pierdas la oportunidad de materializar tus sueños! Descarga ahora mismo este libro de planos de casa de forma gratuita y comienza a construir la casa de tus sueños. Aprovecha esta oferta única y descubre cómo hacer realidad tu proyecto arquitectónico.

Descargar Libro 200 Planos

Fuente: este post proviene de Planos de casas gratis, donde puedes consultar el contenido original.
¿Vulnera este post tus derechos? Pincha aquí.
Creado:
¿Qué te ha parecido esta idea?

Esta idea proviene de:

Y estas son sus últimas ideas publicadas:

Recomendamos