Mucha luz desde Londres



Muchas veces la mayoría de las personas, piensa que contratar un arquitecto es caro. Pero no se dan cuenta, que sacan espacios donde otras personas no lo ven, dan soluciones innovadoras, y las obras supervisadas por un arquitecto van sobre ruedas siempre, y dan mucha tranquilidad a los propietarios.

Este piso en Londres, es un ejemplo de lo que decimos. Como el antes y el después de las imágenes, nos muestran como se puede modernizar un piso antiguo o mejor dicho, mal resuelto .

Obra del estudio Amos Goldreich Arquitectura, han transformado un piso fuera del siglo XXI, en uno moderno, con mucha luz natural, con predominio de blanco, y con soluciones concretas para cada espacio, en Primrose Hill de Londres. 60m2 que parecen el doble o más, porque el espacio está potenciado al máximo.

Veamos el antes y después para hacernos una idea del trabajo, y ver como se actualiza un espacio con buenas soluciones.

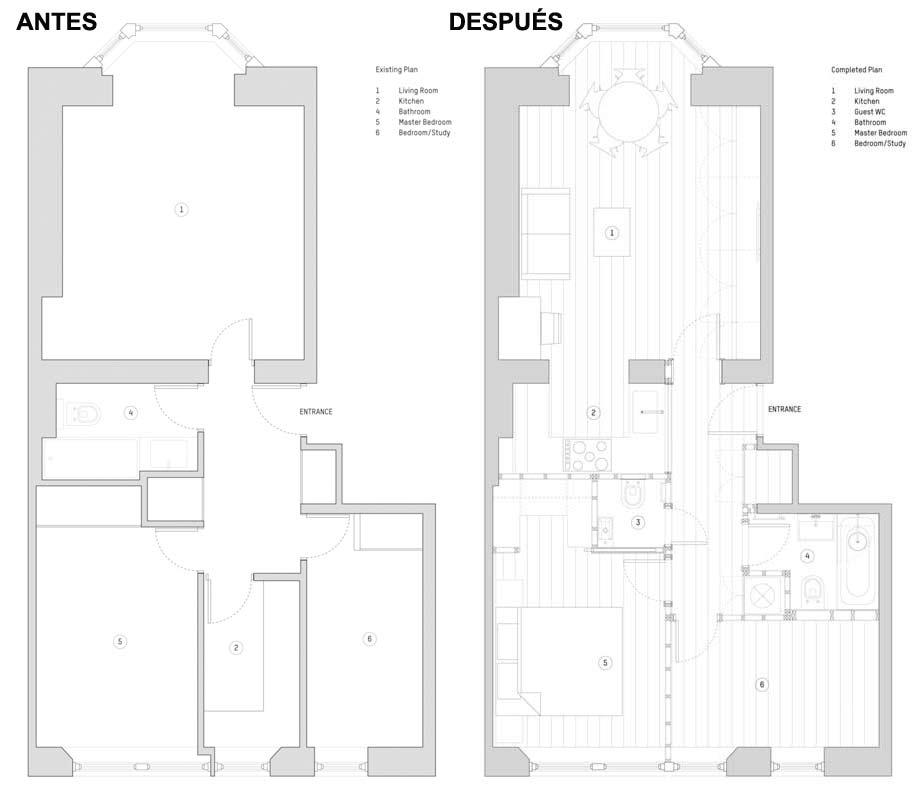
plano-antes

En el plano se ven los cambios que se han realizado para ampliar los espacios.

antes-desp1

El antes y después del salón y como abriendo una sección del muro se integra todo.

antes-desp2

La cocina se cambio de posición, y como no tenia luz natural, se puso un vidrio fijo al pasillo y se abrió al salón.

antes-desp3

El antes y después del baño, evidentemente se ve el cambio radical de estilo.

antes-desp4

En el dormitorio se amplio la superficie del armario al doble. Un excelente trabajo de aprovechamiento del espacio, y al ser todo blanco, se potencia la luz natural.

Veamos un popurrí de imágenes para ver los detalles de como quedo todo, como fuente de inspiración.

Y te parece caro el trabajo de un arquitecto? donde esta lo caro si logras conseguir espacios así. Ya sabes nuestro lema “reforma tu espacio y con ello tu vida”. Anímate.

Fuente: este post proviene de Coach Decò Style, donde puedes consultar el contenido original.
¿Vulnera este post tus derechos? Pincha aquí.
Modificado:
¿Qué te ha parecido esta idea?

Esta idea proviene de:

Y estas son sus últimas ideas publicadas:

Cuando tenemos un nuevo integrante en la familia, todos les decoramos sus espacios. Es importante los colores, los detalles, los muebles. Hablaremos de todos los temas, pero hoy empecemos por las pare ...

Siempre que hablamos de decorar una habitación hablamos de los muebles, pero y las paredes, que? No solo se decoran con un empapelado, vinilo o color de la pintura. Se pueden decorar con fotos. Amplia ...

Nadie niega que la decoración de estilo nórdico están de moda. y ¿en que consiste este estilo? Se podría definir como “espacios que destacan usando materiales naturales, como la madera, combinan ...

Recomendamos

Relacionado

arquitectura Home tour casa de arquitecto ...

El arquitecto McLaren.Excell, desde su estudio de arquitectura, ha realizado una reforma en una casa histórica de Londres en Westminster, la Marilebone House. Siempre es difícil modernizar y actualizar una casa histórica y sobre todo protegida. Aunar modernidad, tecnología, diseño siglo XXI con lo histórico es un reto para cualquier arquitecto. En este trabajo, la mezcla de diseño, buenas ideas, m ...

general casas que inspiran todas ...

Un escenógrafo de teatro es el anfitrión de este loft de estilo industrial Del sosiego de la “masseria” en el sur de Italia que te mostraba el otro día hoy nos vamos al polo opuesto y viajamos hasta la cosmopolita ciudad de Londres para ver un piso singular. Se encuentra a pocos pasos del teatro “The Globe”, una reproducción del teatro en el que Shakespeare interpretó sus o ...

ideas para decorar reformas deco reformas ...

¿Quién en algún momento no ha soñado en dar un nuevo aspecto a su hogar? ¿Hacer pequeñas o grandes reformas para así poderla adaptar a sus necesidades y gustos actuales?. Hoy quiero enseñarte la sorprendente reforma de una vivienda. Partiendo con una casa que tiene muchas posibilidades, ya que permite muchos juegos decorativos. Solo han necesitado unas pequeñas reformas, un lavado de cara en pintu ...

casas con vida cocina dormitorios ...

Hace tiempo envié una foto del que iba a ser nuestro piso: una columna muy difícil. Han pasado unos meses, y ya está el piso para poder disfrutarlo. Ese fue el antes, y afortunadamente, este otro: el después. Pero bueno, ..... empezaré por la entrada, no? Los muebles de la entrada son de ikea y las alfombras también.El paraguero no se ve bien, es de "casa". Y de la entrada, pasamos a la ...

COCINAS DECORACIÓN NÓRDICA decoracion chic ...

Estes Mini piso estaba obligado si o si a tener que sacarle el mayor partido posible: Un piso de 60m2 con una planta rectangular  en el que han conseguido un espacio amplio y ordenado.  Un piso pequeño con un montón de posibilidades. El piso inicialmente se encontraba en muy mal estado pero en cuanto luz se trataba, tenía una luz infinita, lo que ya es un punto a su favor. Se centraron en abrir lo ...

Home tour Inspiración diseño mini pisos ...

Nos encanta mostrar buenas soluciones para poco espacio. Existe una premisa, que dice, “a poco espacio, mucho diseño”. Y esto es lo que ha desarrollado el estudio japones Kitoco Studio en París. Un mini piso, pero aprovechado hasta el milímetro con buen diseño y hacer.  Es increíble lo que ha desarrollado en un mini espacio, de solo 8 m2,  que se podría decir es solo una habitación. C ...

arquitectura Home tour casa de arquitecto ...

Esta casa de arquitecto, simple, moderna y sobre todo despejada, nos ha gustado mucho. Diseñada por el exterior, como las típicas casas de techos de dos aguas de ladrillo y de la zona. Pero su interior, lleno de luz y tipo loft. Trabajo de la arquitecta Alexandra Bub. Lo que más nos gustó: -Linea moderna de los muebles y su paleta de colores claros que potencian la luz -Los suelos de tablones de ...

antes y después estilo nórdico inspiración espacios pequeños ...

Ya tocaba sacar este antes y después de una de nuestras últimas reformas integrales, que estaba esperando su turno hace ya unos meses. ¡Ay, que se nos acumulan los post pendientes de trabajos realizados! Además, nos hace especial ilusión porque el resultado es diferente a los otros trabajos que os hemos ido enseñando, ya que se trataba de reformar un piso muy antiguo en pleno centro de Valencia (e ...

Proyectos

Reforma cocina y baño TyJ Barberá del Vallés En esta reforma se rediseñaron la cocina y el baño, la primera porque los años habían pasado factura al revestimiento cerámico y aprovechamos para darle una nueva distribución a favor de los clientes. Y el baño porque era necesario adaptar algunas cosas para que fuese más funcional de cara un futuro próximo, aprovechando que se iba a reformar ...

antes y después cambio de look cocinasrio ...

Cada vez más nos piden proyectos de cocinas integradas en el salón, y nosotras encantadas porque consideramos que es una opción muy buena que, en muchas ocasiones, mejora cien por cien el espacio y la distribución. Hay que perder el miedo y ponernos al nivel de muchos otros países donde son muy frecuentes este tipo de espacios y no se ven como algo extraño. El antes y después de hoy (de nuestros a ...