Pequeño apartamento de 45m²

¡Hola!
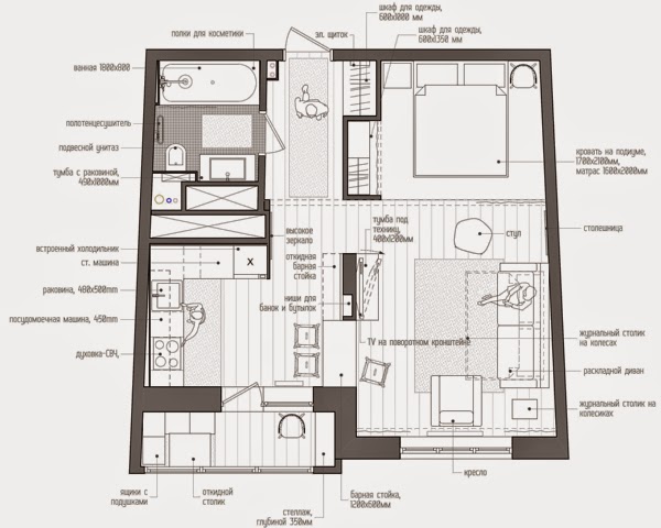
¿Quién dice que no puedes tener un piso precioso de solo 45m² ? Así que hoy os enseño un apartamento muy muy pequeño creado por INT2 Architecture y en el que han sido capaces de crear un sitio tan acogedor como funcional, y no siempre es fácil con esas dimensiones. Los colores pastel utilizados y las formas en que se divide el espacio están totalmente integradas con el diseño.
















via

¿Os ha gustado? Yo quiero esa pared de la bañera en mi casa!!

Fuente: este post proviene de Deco & Home , donde puedes consultar el contenido original.
¿Vulnera este post tus derechos? Pincha aquí.
Modificado:
¿Qué te ha parecido esta idea?

Esta idea proviene de:

Y estas son sus últimas ideas publicadas:

¡Hola! Empiezan los posts navideños, con ideas de decoración, DIY, y mucho más! Aunque esta Navidad será rara en mi casa, ya que en un mes ya estaremos en nuestro nuevo hogar y seguramente la pasaremo ...

¡Hola! Cuándo escuchamos que algo lleva la palabra rústico, nos trasladamos automáticamente al campo, pero hoy no hará falta que nos movamos de la ciudad para encontrar un pequeño apartamento de tan s ...

¡Hola! ¡Cuántos días sin pasar por aquí! Eso no está nada bien, lo se, pero es que mi vida ha estado un poco revuelta este mes de noviembre (en mi otro blog os conté todo con detalle). Así que hoy ven ...

Recomendamos

Relacionado

general ideas decoración ...

Small&LowCost es un proyecto colaborativo donde varios bloggers compartirán contenido sobre casas pequeñas y decoración Low Cost dos veces al mes. La iniciativa es del Canal de decoración de Facilisimo y ahí que me he apuntado yo... este primer reto consiste en la decoración de casas o apartamentos pequeños y he elegido un apartamento que seguro os encantará... porque aunque es pequeño tiene solu ...

decoración estilo escandinavo hogar ...

Hoy os quería enseñar este pequeño y coqueto apartamento en tonos pastel de estilo nórdico. En sus escasos 45m² podemos encontrar muchas soluciones ingeniosas ante la falta de espacio, podemos experimentar positividad y alegría. Vamos que no os lo podéis perder. La mezcla de blanco con los colores en tonos pastel creo que le confiere a todo el apartamento una sensación de alegría como ya he m ...

cuartos de baño decoración estilo escandinavo ...

Hoy os quería enseñar este pequeño y coqueto apartamento en tonos pastel de estilo nórdico. En sus escasos 45m² podemos encontrar muchas soluciones ingeniosas ante la falta de espacio, podemos experimentar positividad y alegría. Vamos que no os lo podéis perder. La mezcla de blanco con los colores en tonos pastel creo que le confiere a todo el apartamento una sensación de alegría como ya he mencio ...

general inicio interiorismo ...

Última entrada en Virginia Esber: Nos ha parecido muy interesante el apartamento que te mostramos a continuación publicado en http://decoarq.com/ , con múltiples soluciones para el aprovechamiento del espacio,  y con un estilo fresco y luminoso. pequeño apartamento decorad0 y funcional Cuando nos referimos a arquitectura y decoración, el tamaño no siempre está reñido con la funcionalidad. Puedes ...

general decoración ideas ...

Small&LowCost es un proyecto colaborativo donde varios bloggers compartirán contenido sobre casas pequeñas y decoración Low Cost dos veces al mes. La iniciativa es del Canal de decoración de Facilisimo y ahí que me he apuntado yo... este primer reto consiste en la decoración de casas o apartamentos pequeños y he elegido un apartamento que seguro os encantará... porque aunque es pequeño tiene solu ...

general casa nÓrdico deco

¡Hola! ¿Quién dice que un espacio pequeño no puede ser bonito, luminoso y amplio? Aquí tenéis la prueba. Este apartamento de unos 50 m² y de una habitación a mi me tiene fascinada, ojalá tuviera yo esas grandes ventanas en mi casa y ese cuarto de baño, con la escalera-estantería. La verdad es que me gusta todo y lo destacaría todo!.Además este estilo nórdico pero a la vez muy acogedor, lo hace ide ...

mini apartamento 3d virtual ...

La vivienda de hoy es un mini apartamento, adorable, luminosa y llena de acentos de color. En 45 m², este apartamento diseñado por INT2 la arquitectura resulta una verdadera joya. No siempre es fácil de utilizar un espacio de un mini apartamento y crear zonas funcionales dentro de un marco de estilo particular, y que sea a la vez práctico y muy visual. Me encantan los tonos pastel en piezas d ...

general 3d [design] ...

En el Proyecto de esta semana os muestro un mini apartamento de apenas 40 m² diseñado por INT2 Architecture para una pareja joven que busca un espacio de paso en alquiler para unos cuantos años y que resulte confortable y asequible. El principio básico de este proyecto es el crear una zonificación racional del espacio a través del cual se generen las principales áreas funcionales: el estar salón c ...

general casa deco ...

¡Hola! Hoy nos trasladamos hasta Kiev, la capital de Ucrania para ver este precioso apartamento muy luminoso y con unos toques de elegancia que le aportan los colores marrones y los muebles de madera. Para que veáis que tener un piso pequeño no significa que no pueda ser bonito y acogedor, y que podamos estar a gusto. via

general consejos inicio ...

Última entrada en Virginia Esber: Cada vez son más las mujeres que deciden independizarse y comienzan desde cero con la entretenida pero trabajosa tarea de decorar su nuevo hogar. No siempre se cuentan con todos los metros deseados, muchas heredan muebles los padres y abuelos, y la tendencia de diseño que impera es la de transformar lo viejo en algo nuevo: Vintage. En este pequeño apartamento de e ...