Plano de Casa Moderna construida en Madera de 198m2

Esta maravillosa casa de 198 metros cuadrados esta construida en madera pero con toques modernos. Se estructura en dos plantas, divididas en 3 dormitorios .

Su arquitectura de madera hace que pueda encajar en cualquier entorno y aunque desde fuera pueda parecer pequeña, una vez dentro es enorme.

arquitectura de madera con techo inclinado
Fachada de la casa de madera con porche exterior / Arquitecto: Kontio


Resumen del hogar:

Dormitorios: 3

Baños: 2

Plazas de Garaje: 2

Plantas: 2
Esta casa esta diseñada para utilizar únicamente energía renovable y por eso veremos dos cuartos destinado a ello (uno con baterías y otro mecánico).

plano de casa moderna
Plano y distribución de la casa, primera planta.


Para el tamaño de la vivienda la cocina nos parece que tiene un tamaño reducido pero aún así es más grande que la de la mayoria de las casas.

En esta planta baja también se encuentra un cuarto de baño sin ducha y las habitaciones destinada a lavandería, baterías de placas solares y un cuarto pegado al garaje utilizado como despensa.

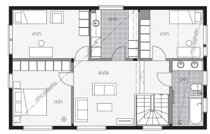
En la segunda planta, se encuentran los 3 dormitorios, además de una salita para lectura o incluso para colocar un ordenador compartido.

Segunda Planta.
En esta segunda planta, nos encontramos la peculiaridad de que tiene un cuarto destinado a ser una especie de cocina, que en nuestra opinión es totalmente sustituible por un dormitorio más.

También en esta planta se encuentra un cuarto de baño completo con dos lavabos.

Diseño de la casa

Diseño de la cocina: http://fergusonshowrooms.com/


Descargar el plano

El nombre de esta casa es Kontio Harunire y sus planos son compartidos públicamente y podéis descargarlo sin problemas.

Fuente: este post proviene de Planos de casas gratis, donde puedes consultar el contenido original.
¿Vulnera este post tus derechos? Pincha aquí.
Creado:
¿Qué te ha parecido esta idea?

Esta idea proviene de:

Y estas son sus últimas ideas publicadas:

Recomendamos

Relacionado

Dos Plantas Sencillas Tres Habitaciones ...

El estilo de esta casa tan colorido llama mucho la atención a pesar de ser una casa sencilla y tradicional. Esta casa cuenta con dos plantas como se puede observar y con un precioso porche delantero. Para los interesados esta vivienda tiene todos los dormitorios en la planta superior y la planta inferior esta destinada para hacer vida social. Resumen del hogar: Dormitorios: 4 Baños: 3.5 Plazas de ...

Dos Plantas Modernas Tres Habitaciones ...

Esta casa de techo inclinado a un agua de estilo moderno, luce una preciosa fachada de dos materiales (totalmente modificable), hormigón visto y madera exterior. El plano de esta casa puede ser descargado gratis, la casa consta de 130 metros cuadrados. Resumen del hogar: Dormitorios: 3 Baños: 2.5 Plazas de Garaje: 2 Plantas: 1 La cocina no tiene un gran espacio pero suficiente para hacer todo lo ...

Cuatro Dormitorios Cuatro Habitaciones dos Plantas ...

En esta ocasión hemos traído un plano de casa que ya ha sido llevado a la realidad y construido. Este plano consta de 176 metros cuadrados, repartidos en 4 dormitorios, 2 cuartos de baños completo y un wc, cocina, comedor, salón y garaje. La planta primera tiene 128 metros cuadrados y la segunda planta tiene 48 metros cuadrados. Resumen del hogar: Dormitorios: 4 Baños: 3 Plazas de Garaje: 2 Plant ...

Dos Plantas Modernas Tres Habitaciones ...

Esta casa tiene un estilo muy innovador y moderno, con construcciones elevada y con un comedor acristalado. Puedes descargar el plano de esta casa desde este artículo, la casa consta de 128 metros cuadrados. Resumen del hogar: Dormitorios: 3 Baños: 2 Plazas de Garaje: 0 Plantas: 2 Esta casa tiene construida la segunda planta sobre la piscina, algo bastante novedoso. En la primera planta se encuen ...

Cuatro Habitaciones dos Plantas Dos Plantas ...

Este plano esta diseñado para ser construido en terrenos estrechos, y aprovechar al máximo la altura disponible. La construcción de casas de más de un piso incrementa el valor de la construcción pero facilita el espacio habitable. Resumen del hogar: Dormitorios: 4 Baños: 4 Plazas de Garaje: 1-2 Plantas: 2 La vivienda cuenta con un garaje abierto techado, con capacidad para dos coches medianos o u ...

de Madera Dos Plantas Sencillas ...

Los planos de casas de 2 pisos y de 3 dormitorios suelen ser de los más populares y más aun si son económicas, y por eso en este caso hemos decidido publicar una casa de esas características y con todas sus medidas. Fachada de casa de Madera/ Arquitectos: Casasdemaderadaype Resumen del hogar: Dormitorios: 3 Baños: 2 Plazas de Garaje: 0 Plantas: 2 Este hogar de madera tiene un porche o terraza bast ...

Cuatro Dormitorios Cuatro Habitaciones dos Plantas ...

Esta casa tiene un precioso color blanco en su exterior e interior, con ladrillos blancos y madera pintado también en blanco, haciendo un perfecto contraste con sus tejas oscuras. Su interior ofrece sensación de fresco y muy luminoso, gracias a sus grandes ventanales, como se pueden observar en las imágenes. Fachada de vivienda estilo americano. Resumen del hogar: Dormitorios: 4 Baños: 3.5 Plazas ...

de Madera Dos Plantas Rústicas ...

Este hogar presenta una fachada con maderas cálidas y con trabajos en piedra. Todos los materiales empleados para la construcción de la misma son naturales, cuenta con 185 metros cuadrados. Las vigas del porche delantero cubierto son de madera vistas, y este porche permite tener unas buenas vistas, o un buen lugar donde sentarse y leer. Fachada de materiales naturales con vigas de madera. Resumen ...

de Madera Minimalista Pequeña ...

Esta casa de madera esta englobada dentro de las casas prefabricadas que pueden ser comprada directamente por piezas pero es un diseño sencillo de construir por su reducido espacio y sencillez. Esta construida con madera de abeto natural sin tratar, pero lo mejor es tratarla según el entorno. Casa Padova / Arquitectos: Group Station Spain Resumen del hogar: Dormitorios: 1 Baños: 1 Plazas de Garaje ...

Dos Habitaciones Dos Plantas Modernas ...

Este plano de casa es un típico diseño de plano oriental. Debido al espacio de construcción tan reducido que existen en los países asiáticos, intenta realizar plantas de dos casas con una distribución para obtener la mayor utilidad posible. Resumen del hogar: Dormitorios: 2 Baños: 2 Plazas de Garaje: 0 Plantas: 2 Cuando se entra en la casa nos encontramos en el salón abierto con el comedor, que o ...