Ribbon by Komada Architects

Ribbon es una casa familiar en la ciudad de Niigata, diseñada por el estudio japonés Komada Architects. Estos arquitectos son conocidos por sus opciones de diseño innovadoras y bastante singulares a la hora de aplicarlas en arquitectura (pronto veremos más ejemplos en el blog).

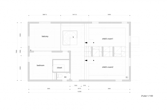
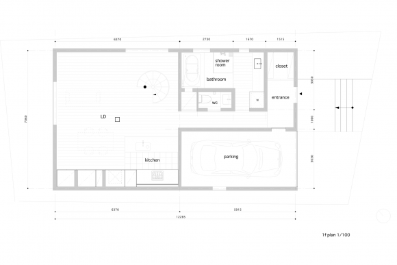
En esta ciudad japonesa, situada a 300 kms al norte de Tokio, tienen pocas horas de sol por lo que la utilización de la luz natural como fuente principal de iluminación fue uno de los condicionantes clave del proyecto. Una ventana larga y delgada da la vuelta por completo alrededor de toda la casa, como si de una cinta (ribbon) se tratase, y se convierte en la principal entrada de luz de la casa.

Esta "cinta" envuelve la casa a modo de lazo y la divide en dos mitades, la inferior en negro y la superior en blanco. La distribución interior de la casa aprovecha esta ventana corrida de distintas maneras: en la planta baja (comedor, cocina y estar) la alumbra desde arriba, y en la planta superior (dormitorios) se convierte en una ventana a ras de suelo. Otros huecos de ventana se abren en la fachada de la planta superior y en la cubierta para permitir más entrada de luz.

Los materiales adoptados para el interior de la vivienda, como son la madera de pino y el revestimiento blanco, se han elegido para resaltar la luminosidad de la casa.





































* vía

 

Fuente: este post proviene de Blog de inmylovelyhome, donde puedes consultar el contenido original.
¿Vulnera este post tus derechos? Pincha aquí.
Creado:
¿Qué te ha parecido esta idea?

Esta idea proviene de:

Y estas son sus últimas ideas publicadas:

¡Buenos días! Ya ha llegado el viernes y con él nuestro post “Deco”. Si te gustó el apartamento que veíamos el miércoles, y sobre todo, la alfombra protagonista de su salón, estás de suerte, porque ho ...

¡Buenos días! Ya tenemos más o menos el planning organizado y a partir de esta semana vamos a trabajar para poder publicar tres días a la semana. Ya que el blog se divide en tres grandes categorías, a ...

¡Hola a todos! Hoy volvemos a la carga con el blog y lo hacemos con un post muy especial 3 El viernes pasado os comentaba que ya podíais visitar la nueva web de LOVHOM. Ese mismo día nos ibamos a Parí ...

Recomendamos

Relacionado

diseño de interiores fachadas de casas casas de dos pisos blancas ...

Cómo puedes ver en el titulo del post, el día de hoy te quiero compartir diferentes modelos de casas de dos pisos por dentro y por fuera. Con las que podrás tomar más que inspiración para la construcción y diseño de tu casa ideal, si es que estas pensando en construir una casa que sea de dos pisos. Así que mira con atención todos los hermosos ejemplos que encontramos, esperando que te puedan ayuda ...

casitas de pájaros jardín general
Decora con casitas de pajaritos , dentro y fuera de casa

Ya se acerca la primavera y los que tenemos jardines cerca o simplemente paseando por la ciudad podemos observar como los pajaritos están mas alterados . El otro día pasando vi una casita para pájaros muy bonita , la cual me ha inspirado para hacer este post. Os quiero enseñar unas cuantas casitas de pájaros que he encontrado para que las podáis poner en el jardín o porque no, en la terraza . Sab ...

general diy ecochic ...

Nuestro aparador Laia es uno de esos muebles especiales que ya sabemos va a estar siempre ligado a nosotros, por lo que ha significado hacerlo y por la historia que descubrimos detrás de él... En primer lugar, es el primer mueble que hemos creado para el espacio-taller que compartiremos con otros artistas, que te explicamos ayer aquí. Y su historia la conocimos gracias a un montón de cartas y feli ...

Apartamento Baño Cocina ...

Hoy os traigo otra maravilla diseñada por el estudio shoko design, esta vez la vivienda se encuentra en Polonia y pertenece a la blogger @lovingit. Se trata de un dúplex muy acogedor, en el que se han intentado evitar las particiones dejándolo completamente abierto para el disfrute de la familia. Se trata de un hogar muy acogedor que os va a encantar visitar completo ¿Vienes? La planta baja ...

general casa decoración ...

Hace un tiempo que ya os hice un post dedicado a como decorar con jaulas, pero resulta que todavía es una decoración que está muy de moda, yo creo que pasará a ser un clásico ya que aporta muchísimo estilo a cualquier decoración donde las utilicéis , por este motivo el post de hoy vuelve a estar dedicado a este tema... He encontrado nuevas fotos para que os inspiréis y podáis decorar un rincó ...

general estilo nórdico tours ...

Ubicado en un edificio construido en el año 1914 y completamente reformado en 2008/09, este loft de 59 m2 destaca por su insólita planta y la notable altura de sus techos que le permiten crear una habitación adicional de 6m2 en el piso superior con entrada de grandes cantidades de luz natural a través de un amplio tragaluz. Un espacio que es ideal para usarse como oficina, cuarto de invitados o co ...

Casas Chalets y Casas de Campo Interiores

Son alemanes, pero tuvieron que trasladarse a vivir a San Francisco. Ella, Birgit, tiene una maravillosa tienda de ropa infantil, Over the Ocean, desde la que vende marcas europeas con un aire contemporáneo, sencillo y auténtico. Dice que cuando se trasladó a vivir a Estados Unidos en 2013 le sorprendió la amabilidad y la generosidad de la gente que allí encontró. Esta es la bonita y luminosa casa ...

Casas Estilo mediterraneo

Hoy nos acercamos a Sotogrande, en la provincia de Cádiz. Una casa de estilo mediterráneo, minimalista y elegante. Una auténtica maravilla repleta de serenidad y luz. “Sotogrande pertenece al municipio de San Roque (Cádiz), se encuentra en la Costa de la Luz frente al estrecho de Gibraltar y a menos de 20 minutos de la Costa del Sol. Recomendado VILLA MANDARINA Esta preciosa villa minima ...

Baños Clasico y moderno escaleras ...

Hoy visitamos Estocolmo, en concreto un bonito piso a tres alturas como pocas veces hemos visto antes. Normalmente estos pisos se componen de tres plantas con unas escaleras para subir o bajar de una planta a otra, pero este hogar tienen una peculiaridad, desde los dormitorios de cada extremo de la casa, los de la planta superior, podemos ver el salón desde uno de ellos, y el comedor junto a la co ...