Sacar rendimiento máximo al espacio

sacar rendimiento al espacio


A veces cuando llega al estudio un proyecto que conlleva reforma de arquitectura y decoracion, una de las primeras premisas con las que trato de establecer las tablas del proyecto, es la de en aquellas casas que seguiran siendo vivienda habitual, es decirle a los clientes, la conciencia del cambio de usos, de habitos o rutinas que si buscas un cambio debes tener.

Y es que cuando toca sacar el máximo rendimiento al espacio por lo pronto un cambio radical de arquitectura, puede ser la clave para potenciar y conseguir un espacio completamente único y diferente.

Hoy por ejemplo, vemos un 3D fantástico diseñado por Andrew y Alain Timonina que nos integra en pocos metros, casi con forma de suite una vivienda cómoda, acogedora y única.

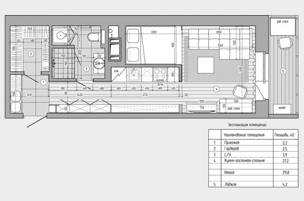
Un espacio en el que conviven de forma diferente salón y dormitorio, o en el que la cocina, se convierte en un espacio de paso, sacado de los metros de un pasillo que ademas sirve de almacenaje. Quizás no sean las formas mas convencionales pero sin duda, el resultado es increíble.

Sacar el máximo rendimiento a 29 m2 y disponer de almacenaje, es un claro ejercicio de diseño y creatividad. Solo hay que renunciar a ciertos hábitos y poner orden en las rutinas… cuanto menos un propósito de formas y acabados.

En un interior en el que ademas de su planta de distribución, la luz y la elección de estos hacen que se disfrute un espacio calmado, delicado y muy creativo.

integrar dormitorio en el salon
lamparas de techo pegadas a la pared
focos de pared
sofa modular
3D small home
cocina en pasillo
mini casa pasillo
baño vintage
diseño baño 3D


compact-apartment-layout-floor-plan-600x398


via

.

Fuente: este post proviene de Blog de ComodoosInt, donde puedes consultar el contenido original.
¿Vulnera este post tus derechos? Pincha aquí.
Creado:
¿Qué te ha parecido esta idea?

Esta idea proviene de:

Y estas son sus últimas ideas publicadas:

Recomendamos