Sorte Hus by Sigurd Larsen

Sorte Hus es una innovadora y asequible residencia unifamiliar en Copenhague, que combina el uso inteligente de los materiales prefabricados para minimizar los costes con la utilización de una composición sencilla para maximizar los espacios. Su rapidez de ejecución y su bajo coste proporciona una respuesta a la creciente demanda de viviendas familiares en el denso paisaje urbano de la capital danesa.

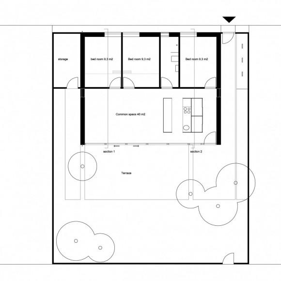
Esta pequeña casa familiar low cost de 80 m2, Sorte Hus (Casa Negra) es obra del arquitecto y diseñador danés Sigurd Larsen. Su composición espacial es sencilla a más no poder, eliminando cualquier tipo de pasillo y haciendo que cada zona de paso o de distribución forme también parte de la estancia, aprovechando sus metros al 100%.

La vivienda dispone de una sola planta, con la base de hormigón (con calefacción y refrigeración pasivas), cerramientos prefabricados de madera pintada de negro, ventanas de doble acristalamiento y cubierta a dos aguas. La pared orientada al sur se ha acristalado para maximizar la luz del sol en la casa, pudiendo en verano abrir toda la fachada y disfrutar de la terraza y del jardín como una extensión de la vivienda. En las fachadas este y oeste se añadieron pequeñas ventanas para coger la primera luz del alba y los últimos rayos de sol del atardecer. Por ello, aunque el exterior sea negro y oscuro, el interior es muy luminoso, con superficies pintadas de blanco y madera contrachapada.

El edificio ocupa el área máxima permitida por la normativa local. Una partición divide el espacio en dos mitades, un amplio espacio abierto con la sala de estar y la cocina en la parte delantera y los tres dormitorios privados y el baño en la parte posterior. Una isla independiente separa esta zona del acceso y organiza el fregadero, la zona de cocción, la nevera y el almacenamiento, ocultando también así tuberías y otros elementos.





















 

* vía

Fuente: este post proviene de Blog de inmylovelyhome, donde puedes consultar el contenido original.
¿Vulnera este post tus derechos? Pincha aquí.
Creado:
¿Qué te ha parecido esta idea?

Esta idea proviene de:

Y estas son sus últimas ideas publicadas:

¡Buenos días! Ya ha llegado el viernes y con él nuestro post “Deco”. Si te gustó el apartamento que veíamos el miércoles, y sobre todo, la alfombra protagonista de su salón, estás de suerte, porque ho ...

¡Buenos días! Ya tenemos más o menos el planning organizado y a partir de esta semana vamos a trabajar para poder publicar tres días a la semana. Ya que el blog se divide en tres grandes categorías, a ...

¡Hola a todos! Hoy volvemos a la carga con el blog y lo hacemos con un post muy especial 3 El viernes pasado os comentaba que ya podíais visitar la nueva web de LOVHOM. Ese mismo día nos ibamos a Parí ...

Recomendamos

Relacionado

general alquiler habitaciones ...

Ya te he comentado en varias ocasiones que una de las cosas que más me gusta en una habitación es poner el cabecero y el mobiliario diferente, es decir, que no todo tenga que ir a conjunto, es más, prefiero no tener cabecero a tenerlo igual. Por ello, ya te enseñé varias ideas económicas para decorar como en la entrada diseña tu cabecero y hoy, me gustaría enseñarte otra idea que me ha encantado, ...

general decor-art decopedia ...

    ¡Hola Artistartes! ¿Preparados para irnos de fiesta en belenmartin.com? ?Lo sabía, Os apuntáis a todas. Así que vamos a compartir unos días muy divertidos en #decopedia2. La segunda edición de esta genial idea surgida de las cabecitas creativas del grupo Petitcandela.    Pinterest El tema de este mes es la Decoración low cost y estas son las propuestas que os traigo para decorar lo ...

general deco low cost decopedia

Aquí estamos en la segunda fiesta de la DECOPEDIA con un tema de mucha actualidad "decoración low cost". Creo que es una de las palabras más usadas en estos últimos años, "low cost" "a bajo coste" "barato" "económico", palabras usadas en muchos ámbitos y esferas de nuestra vida: decoración, moda, negocios.... Más que nunca necesitamos "expri ...

estilos clasico y moderno general ...

A puntito de acabar el año y con  la Navidad recientemente disfrutada en familia, hoy nos permitimos hablar de otro hogar decorado con motivos navideños. La casa que os mostramos hoy me ha gustado mucho por su simplicidad a la hora de decorar, y es que no siempre nos podemos permitir grandes ostentosidades en estas fechas. Con pequeñas pinceladas podemos aportar grandes cambios, como las mantitas ...

interioristas apartamento decoración ...

Buen lunes! A dos días de que empiece oficialmente el cole para mi peque (que ya va siendo hora, que así no hay quien retome el ritmo normal de publicación del blog!) la semana comienza cargada de trabajo extra. Por un lado, toca planificar los post y adelantar trabajo; por otro, el miércoles llega WeDeco, que retoma su ritmo de publicación normal (post en curso, con un poco de pánico, porque aún ...

general baños mi casa

¡Buenos días! Últimamente recibo muchas peticiones de como decorar el baño, sobretodo como tengo mi baño de alquiler, el cual me limita mucho su forma y funcionalidad. Quiero cambiarlo un poco, pero os enseño como esta ahora. Para mi los baños tienen que transmitir paz y orden, ser un ambiente relajado, sencillo y práctico, por lo que mis imprescindibles a la hora de decorar los son: Añadir un to ...

Mar
decoracion de interiores decoracion para pisos de alquiler decoración low cost ...

Quería partipar en la fiesta de enlaces #diariodeco de marzo, cuyo tema es ?rincones con encanto?, y se me ocurrió que era la oportunidad perfecta para mostraros mi casa, o por lo menos mis rincones preferidos... Como ya os he contado otras veces, mi novio y yo vivimos de alquiler, en un piso bastante pequeño. También os he contado sobre el talento de mi media naranja para encontrar verdaderas jo ...

general decopedia

Hoy, nuevo post de la #decopedia organizada por el blog petit candela, cuya temática es decoración low cost para nuestras casa. En mi caso he seleccionado la pared del pasillo que da a mi dormitorio y que tengo decorada de una manera bastante low cost. Una composición de cuadros con láminas impresas y las iniciales hechas con lana.Pocos y baratos materiales y un resultado curioso. Este post partic ...

general

Ya solo nos queda el sprint final de estas fiestas llenas de decoraciones, regalos, luces, comilonas, lloros, abrazos, y gastos, muuuuchos gastos!! Así que si tu también te niegas a gastar más como yo, te traigo una idea para decorar la mesa el día de reyes aprovechando cosas que tengas por casa. Seguro que podemos reutilizar algo para conseguir una mesa con el toque festivo que buscamos sin gast ...

general

Si sueñas con un vestidor pero no te quieres gastar mucho dinero, hoy es tu día de suerte!! Esto de entrar en una habitación llena de ropa, zapatos y bolsos creo que nos gustaría a tod@s. Pues no es tan difícil ni tan caro, siiiii!!!!! ??.. he pensado en una opción ?Low Cost? con algún que otro toque personal y que por supuesto eso va en los gustos de cada un@. Si tienes una habitación que no sabe ...