Casa de Campo Grande 198 m2 + 5 Dormitorios HD

Esta magnifica casa ha sido un proyecto elaborado para una familia que se va a ir a vivir a una zona rural, por lo que el diseño de esta casa de campo tiene todo lo necesario para vivir en el campo. La casa a pesar de ser una casa de campo ha guardado en la fachada toques de una casa moderna como las barandillas del balcon en aluminio.

fachada sencilla casa de campo


Datos de la casa

Área utilizable:198,95 m²
Habitaciones (sin salón):5
Plazas de garaje:2
Baños + aseos:3
Ancho y largo mínimo de la parcela:20,65 x 22,94 m
Pendiente del tejado:25°
fachada con balcon de campo


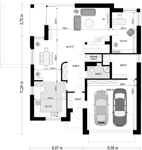
Planta baja

Teniendo de referencia el plano siguiente, vamos ha hacer un recorrido por la vivienda. En la planta baja se encuentra el garaje el cual tiene capacidad para dos coches y desde el propio garaje se puede acceder a la vivenda.

En esta planta se encuentra la cocina, estilo europeo, se encuentra separada del comedor, pero esta junto a este. El salon y el comedor se encuentran unidos y conforman un gran espacio abierto con unas cristaleras que dan al porche trasero.

En esta misma planta se encuentra una oficina, que puede ser destinado también a un dormitorio de invitados.

1. Vestíbulo: 3,60 m²

2. Salón: 12,86 m²

3. Cocina: 15,17 m²

4. Salón + comedor: 46,17 m²

5. Oficina: 13,37 m²

6. Almacenaje: 2,29 m²

7. Baño: 3,95 m²

8. Sala de calderas: 8,90 m²

9. Garaje doble: 32,95 m²

Plano total: 139,26 m²
plano con medidas casa de campo


Primera planta

Y esta planta se encuentran 4 dormitorios, de los cuales, uno ha sido elegido por la familia como biblioteca, ya que al propietario le gusta mucho leer y tiene una amplia gama de libros.

idea de fachada


El dormitorio principal, tiene un balcón privado que da a la entrada, también tiene su propio cuarto de baño. Los dos dormitorios que se encuentran en la parte superior del plano, comparten balcón.

1. Salón: 7,99 m²

2. Dormitorio: 15,29 m²

3. Dormitorio: 15,36 m²

4. Dormitorio: 7,28 m²

5. Armario6,48 m²

6. Dormitorio: 17,99 m²

7. Baño: 5,20 m²

8. Baño: 7,15 m²

9. Lavanderia: 2,91 m²

Plano total de 1º piso: 85,65 m²
croquis con medidas de hogar


Para descargar el plano en PDF puedes hacerlo desde el siguiente botón de descarga gratuito. Recuerda que si quieres recibir nuevos planos publicado puedes suscribirte con tu email.

Descargar Plano en PDF

Fuente: este post proviene de Planos de casas gratis, donde puedes consultar el contenido original.
¿Vulnera este post tus derechos? Pincha aquí.
Creado:
¿Qué te ha parecido esta idea?

Esta idea proviene de:

Y estas son sus últimas ideas publicadas:

Recomendamos

Relacionado

de Campo Minimalista Sencillas ...

Esta vivienda de 81 metros cuadrados es ideal para aquellas familias que buscan algo económico pero con espacio suficiente para 4 miembros. La fachada de la casa es sencillo, sin elementos arquitectónicos complejos lo que reduce su precio. Fachada principal de la vivienda. Esta vivienda tiene la opción de sustituir un dormitorio para convertirlo en garaje, algo que no se recomienda si se tiene esp ...

de Campo de Madera Rústicas ...

Esta es una casa de campo estilo tradicional, construida en madera, y el exterior de la fachada incluye elementos arquitectónicos típico de este tipo de casas como revestimiento inferior en piedra y vigas vistas de madera. Esta idea de casa de campo consta de 129 metros cuadrados útiles, muy bien organizados y repartidos. Fachada de casa de campo tradicional. Resumen del hogar: Dormitorios: 3 Baño ...

Dos Habitaciones Rústicas

La fachada de esta casa esta marcada por un estilo rústico adaptado a este hogar tipo cabaña. El carácter rústico lo recibe esta casa por los troncos de madera vistos en su exterior. La casa tiene 126 metros cuadrados habitables. Resumen del hogar: Dormitorios: 2 – 3 Baños: 2 Plazas de Garaje: 0 Plantas: 1 El plano de esta casa rústico tiene un diseño muy moderno, lo que hace que la convivi ...

cuatro dormitorios cuatro habitaciones de madera ...

Esta magnifica casa a sido construida en una parcela de 700 m2, la superficie útil de la vivienda son de 176 metros cuadrados que se encuentra dividida en 4 dormitorios. La casa tiene aspecto de cabaña moderna, ya que se ha conservado la parte superior de la casa en maderas vista, y la parte inferior ha sido levantada sobre bloques. El techo de la vivienda es a dos aguas, con un ángulo de 30º ...

Cuatro Habitaciones dos Plantas Dos Plantas ...

En esta ocasión vemos una casa de tres plantas reales, pero dos disponible para la vida y la tercera y opcional es para ser utilizada como terraza. El espacio habitable de la vivienda es de 161 metros cuadrados. El estilo de la fachada es novedoso y además le da un aire muy fresco por la utilización de plantas y pequeños arbustos, totalmente compatible para ser utilizados en la ciudad. Plano con ...

Cuatro Dormitorios Cuatro Habitaciones dos Plantas ...

Esta casa tiene un precioso color blanco en su exterior e interior, con ladrillos blancos y madera pintado también en blanco, haciendo un perfecto contraste con sus tejas oscuras. Su interior ofrece sensación de fresco y muy luminoso, gracias a sus grandes ventanales, como se pueden observar en las imágenes. Fachada de vivienda estilo americano. Resumen del hogar: Dormitorios: 4 Baños: 3.5 Plazas ...

de Campo Sencillas Tres Habitaciones ...

Esta casa colonial de un nivel cuenta con 160 metros cuadrados habitables. Además, esta casa tiene un desván para almacenaje ya que en la parte superior solo hay un pequeño espacio que no esta disponible para vivir. Este tipo de fachada de casa colonial es uno de los más básicos, por eso la hemos incluido en casa colonial sencilla, cuenta con una pequeña escalera de acceso al porche, esta constru ...

Cuatro Dormitorios Cuatro Habitaciones dos Plantas ...

En esta ocasión hemos traído un plano de casa que ya ha sido llevado a la realidad y construido. Este plano consta de 176 metros cuadrados, repartidos en 4 dormitorios, 2 cuartos de baños completo y un wc, cocina, comedor, salón y garaje. La planta primera tiene 128 metros cuadrados y la segunda planta tiene 48 metros cuadrados. Resumen del hogar: Dormitorios: 4 Baños: 3 Plazas de Garaje: 2 Plant ...

Dos Plantas Modernas Tres Habitaciones ...

Este es un plano de una casa de baja estilo moderna, con una preciosa fachada, y deseada por muchos, las dimensiones del plano son 13 x 6 metros (realmente 13,6m). Esta casa es ideal para aquellos que dispongan de un terreno alargado con una fachada o ancho más recogido. Esta casa consta de entrada con posibilidad a un garaje para dos coches, salon-comedor, 2 cocina (+ terraza), tres dormitorios ...

de Madera Dos Habitaciones Dos Plantas ...

Este hogar esta caracterizado por su espacio reducido, aunque existe dos variantes del plano, una de 68 metros cuadrados con dos dormitorios, y otra con 59 metros cuadrados y un dormitorio y con posibilidad de convertir el salón en segundo dormitorio. Vista de la fachada de la casa cuando nieva. Resumen del hogar: Dormitorios: 2 Baños: 2 Plazas de Garaje: 0 Plantas: 2 Fachada de la casa La casa pr ...