Casa Fusionando Espacios perfectamente conectados con amor por el arte

El ultimo proyecto de Alexander Brenner Arquitectos, nos lleva a un viaje de vida moderna en una residencia imaginada para ser el lugar donde los amantes del arte y su familia se sentirán felices en casa. Situada en el borde de un bosque en la zona sur de Stuttgart, esta casa llamada la Casa SU es la última adición a la cartera de los arquitectos, la más detallada y elaborada hasta ahora. Con una superficie de 640 metros cuadrados en una parcela de 2.125 metros cuadrados, la villa moderna suscita sentimientos de asombro, con su perfecta conexión con el exterior.



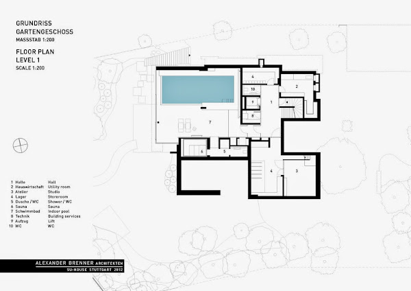
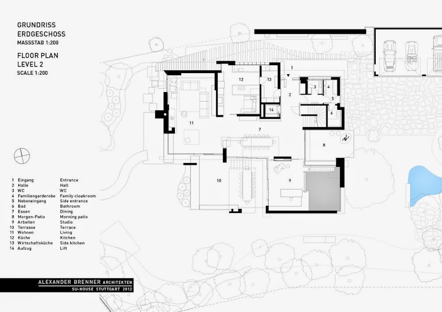
El Fotógrafo con sede en Stuttgart, Zooey Braun nos muestra una vez más la maravillosa obra de Alexander Brenner Arquitectos. Comenzando desde el garaje plateado justo al lado de la plaza de entrada al norte y que culminó en una perspectiva más amplia de la arquitectura volumétrica. Los arquitectos describen su trabajo con una pasión viva: "A raíz de la entrada de la gran mesa de comedor se sitúa por debajo de un vacío de dos pisos e iluminado por una claraboya. El acristalamiento extraíble desde el piso hasta el techo se abre en un ángulo recto a la terraza, por lo que el interior se funde con el techado al aire libre en los meses de verano. "Con una cocina-comedor que ofrece dos posibilidades diferentes de la cena - ya sea en interiores o al aire libre - y una gran chimenea para calentar la sala de estar, la Casa SU ofrece un piso de planta abierta, donde el entretenimiento y el día a día  de la vida parece formar parte de unas vacaciones que nunca termina.



Con el uso de la luz natural, el equipo de arquitectos ha creado un espacio de arte contemporáneo de la colección del propietario: "Una claraboya de ancho completo en la parte trasera envía haces de luz en la pared con pinturas y esculturas. Desde la oficina y espacio de trabajo una escalera escultórica estrecha conduce al estudio. Esta zona alta de dos plantas, casi sacra sirve para presentar las obras de arte - una pasión del cliente. Justo al lado del estudio se adjunta un almacén de obras de arte. "Arriba, dormitorios y baños interconectados aprovechan al máximo los espacios privados, ofreciendo esos momentos mágicos de descanso y recarga. La planta baja está ocupada en su mayoría por la piscina y la zona de spa escondido muy bien en un ambiente más cálido, mientras que la piscina de interior puede ser abierta o cerrada dependiendo de la temporada.





































¿Dónde preferiría pasar su tiempo si usted viviera aquí?
Fuente: este post proviene de este blog, donde puedes consultar el contenido original.
¿Vulnera este post tus derechos? Pincha aquí.
Modificado:
¿Qué te ha parecido esta idea?

Esta idea proviene de:

Y estas son sus últimas ideas publicadas:

Hogares Frescos Sumérjase en la encantadora atmósfera de varias Casitas pequeñas con encanto! Son exquisitas y románticas. Nos invitan a soñar. Imperceptiblemente, mientras las miramos a ellas, nos va ...

Casa I es una residencia privada ubicada en Las Rozas, uno de los municipios más grandes de la comunidad autónoma de Madrid, España . Fue terminada en 2013 por Bojaus Arquitectura. Casa I está situado ...

La ciudad sueca de Gotemburgo es única en su capacidad de ofrecer la vida urbana sin dejar de sentirse como una pequeña ciudad. Por un lado, no hay escasez de restaurantes y salas de cine para disfrut ...

Recomendamos

Relacionado

general arquitectura moderna casa ...

Brighton Casas de pueblo es un proyecto terminado por Martin Friedrich Arquitectos. Situado en Brighton, Australia , el proyecto consta de dos residencias privadas con impresionantes interiores luminosos. En el mundo de hoy, mientras que muchos requieren que sus áreas interiores les proporcionen un estilo de vida confortable y tal vez de lujo, muchas personas ya no quieren o necesitan el mantenimi ...

general

Esta original casa parisina, una antigua fábrica del siglo XVIII, es un derroche de personalidad. Con una reforma sorprendente, la casa de estos arquitectos está llena de detalles de sus viajes, piezas de arte, muebles de diseño y objetos vintage. Desde su entrada se reafirma un proyecto de diseño de interiores que no deja indiferente: fuertes contrastes, guiños a los volúmenes ochenteros y un mob ...

general arquitectura moderna casas contemporáneas ...

Cada casa tiene su propia belleza. Hoy podemos ver un gran número casas increíbles con incluso sorprendente diseño de interiores. Hicimos una maravillosa colección de las mejores casas contemporáneas para esta temporada. Todas ellas son únicas y magnífica en una manera especial. Cada lugar tiene diverso encanto y belleza y por lo tanto representan un lugar acogedor y elegante para la vida. Echa un ...

general barcelona dreamingmonday ...

Si hay algo que me enamoro de la ciudad condal cuando fui a visitarla hace poco mas de año y medio, no era solo, su grandiosidad, el mar, o lo multicultural que es...si no su maravillosa arquitectura. Sus interiores renovados, al mas puro estilo art deco, mantenían y respetaban molduras, vidrieras, cristaleras y patios interiores. Una mezcla perfecta entre lo clásico y lo renovado, entre el antes ...

general arquitectura y diseño arquitetcura ...

Alta y Poderosa Casa de Playa de Richard Meier La historia de cómo Richard Meier, uno de los arquitectos más famosos del mundo, llegó a diseñar una pequeña casa de un dormitorio en una isla probablemente destinada a la extinción se remonta a casi medio siglo. Era 1969, y Phil y Lucy Suárez eran recién casados. El Sr. Suárez, de 27 años, se convertiría en el socio de negocios de la aclamada Chef ...

general casa con suelo de nogal casa contemporanea ...

Vance Lane Residence en West Austin, Texas, es el resultado de una colaboración entre Chioco Design y Miars Construction, Según los arquitectos, su diseño consta de enclavamientos lineales con formas rectangulares, utilizando piedra caliza gris, blanco integral, acero y vidrio. La composición, en relación con el sitio de poca profundidad, crea oportunidades para experimentar espacios al aire libre ...

diseÑo hÁgalo usted mismo general

Si te interesa lo relacionado a la decoración de interiores y tienes pensando cambiar algún ambiente de tu casa hay algunas ideas que te pueden resultar interesantes de conocer para lograr esa modificación. Por eso crea espacios para relajarte en tu casa. Bancos hechos con troncos de un árbol Puedes encontrar o escoger algún estilo en particular, o por que no mezclar más de uno incluyendo cierto ...

general apartamento moderno cocina isla ...

El Studio Gao Arquitectos, diseño el interior de este apartamento - sobre la base de una historia, basada en una forma de vivir la vida urbana, dinámica y creativa en el centro de la ciudad. Lo asociamos a la letras urbanas, el colorido y la vivacidad de los trenes que pasan por una especie de diseño tosco de ciertos lofts, que puede imitar la forma moderna de vivir con su fusión de diferentes ele ...

tiwi madrid 2019 michael kors ...

Aparte de visitar Arco, como ya os mostré en los anteriores post, y las ferias de arte paralelas como Art Madrid y JustMad, también nos pasamos por Casa Decor que nos presenta las últimas tendencias en interiorismo, arquitectura, diseño y arte. En esta cita afronta su 54ª edición y como cada año cuenta con espacios reales, proporcionados y bien iluminados. El edificio donde este año esta ubicado, ...

general interiores estilo griego ...

¡Buenos días! Hoy vamos a darnos el lujo de soñar un poquito y nos vamos de vacaciones a Firostefani, un pequeño pueblo enclavado en lo alto de una colina muy cerca de Fira, capital de Santorini. En este lugar tan paradisíaco nos encontramos el “San Nicholas Cave House”  un idílico y peculiar hotel formado por una serie de villas situadas, como su nombre indica, en el interior de unas ...