DECORANDO ON-LINE CON ALICIA


Alicia contactó conmigo para terminar de decorar su salón. No es la primera clienta, ni la última que después de comprar los muebles necesita ayuda en la decoración y con los detalles para conseguir un salón acogedor y con estilo.
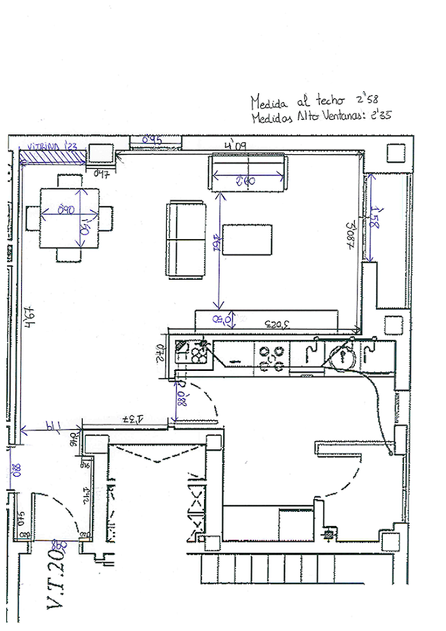
Me envió las fotos de su salón y un plano para que yo pudiera trabajar y pensar en las mejoras.
Enseguida capté el gusto de Alicia y me puse con la búsqueda de todos los detalles necesarios para decorar su salón. Lámparas, cortinas, alfombra, cojines, espejos,....... la lista de la compra la teníamos preparada en seguida y todo plasmado en el diseño 3D para visualizarlo antes de comprar.
La verdad es que Alicia se tomó la decoración en serio y rápidamente se puso a trabajar conmigo.
Poco a poco ha estado haciendo las compras mientras yo me encargaba de las cortinas y la alfombra.
Llevamos tres meses trabajando pero esto va viento en popa!! El salón ya esta pintado!! e incluso algunas compras ya lucen en el salón. Qué ganas tengo de verlo todo puesto y colocado!!

PLANO SALÓN

MI DISEÑO EN 3D


1.Espejos, 2.Lámpara techo, 3. Jarrón, 4. Cuadro, 5. Mesita auxiliar, 6.Alfombra efecto seda, 7. Caja decorativa, 8.Taburete cerámica, 9. Cojines, 10. Bola cristal, 11.Lámpara mesa cerámica.
PROGRESANDO





¿Vulnera este post tus derechos? Pincha aquí.
Creado:
¿Qué te ha parecido esta idea?

Recomendamos

Relacionado

ANTES Y DESPUÉS

Terminamos de decorar el salón de Alicia el año pasado ( aquí el artículo anterior ), pero hasta ahora no he podido pasarme por su casa para hacer algunas fotos. Bueno, en realidad he aprovechado uno de los viajes a su casa porque ya estamos amueblando y decorando otras estancias de su piso. En todo este tiempo nos hemos conocido mejor, hemos hablado de cómo empezó a amueblar su casa y de los erro ...

Vivoguía

¿Tedio, apatía, abatimiento?. Con la llegada del otoño te proponemos darle a tu hogar un aire más cálido y acogedor que canalice tu energía y active tus ganas de trabajar o estudiar. Sin gastar demasiado sigue nuestros pasos y adecúa tu vivienda a la estación en curso. Allá vamos... En el recibidorCobra protagonismo al cambiar de estación. Una mini-estancia que bien decorada invita a entrar y hace ...

ANTES Y DESPUÉS VIZCAYA

Hoy nos desplazamos sin el coche de Madrid a Vizcaya y entramos en el piso recién comprado por Maider y su pareja. En este piso, además de unos cuantos muebles en la cocina, no hay nada más. Es una cocina abierta al salón en la que no existe ningún tipo de separación con la zona del salón. Así se encontraba este piso cuando Maider contactó conmigo. Con estas fotos y un plano casero de las medidas ...

salones decoración mi casa

La semana pasada os contaba que últimamente me ha dado por terminar ¡por fin! de decorar el salón. Ya sabéis que esto es una tarea que nunca acaba ya que cuando terminas resulta que ves algo en las revistas o en otros blogs que te encanta...y vuelta a empezar! Yo últimamente también os comentaba que quería dar un toque amarillo al salón pero no me decidía... Pero por fin me he decidido a probar su ...

Decoración

A todos nos encantaría modernizar el salón de casa y darle un aire actual, pero por supuesto sin gastar una fortuna ni cambiar los muebles. Aunque pueda parecer imposible, en el post de hoy de decoración te vamos a dar varios trucos para actualizar un salón pasado de moda sin cambiar los muebles y con muy poquito dinero. Ideas para actualizar el salón Todo dependerá de hasta que punto quieras lleg ...

espacios salón apartamentos mini ...

No todos tienen la suerte de tener mucho espacio, y se las ven con un mini salón que quizá piensen lucirá mal. Pero en el entorno de la decoración de interiores, el espacio por pequeño que sea puede convertirse en el mejor del hogar. Sobre todo puedes aprovechar algunos trucos para tener el entorno más acogedor y lucidor. Lo comprobarás ahora, con estos consejos para tu saloncito. Un mini salón ...

espacios salón decoración de salones ...

Ya te hemos contado en otra entrada, sobre la tendencia 2023 “Cozy” que tanto ha gustado. Este 2024 precisamente por eso, por actual y atractiva, pero también cómoda, seguirá dentro de las grandes tendencias. Así que toma nota de algunos detalles esenciales que te ayudarán a tener un salón cozy este 2024. A que te encantaría tener esa agradable sensación en tu ambiente principal. El ...

Diseñadores de interiores blogger de moda Con Dos Tacones ...

Estefanía, autora del blog Con Dos Tacones (C2T), ha tenido la suerte de contar con el asesoramiento de Daniel García Calvete para la decoración de uno de los espacios más importantes de todo hogar. Te presentamos el salón decorado por Vintage Hunter y Kenay para esta it girl tan glamourosa que buscaba una combinación perfecta entre lujo y modernidad. Trasladar una personalidad tan definida al cor ...

decoracion sofas

Un chaise longue es un sofá de lujo para espacios frescos y modernos. El término es de origen francés y significa “silla larga”. Esto quiere decir que el diseño del sofá consta de un brazo más largo que otro, permitiendo así la extensión de las piernas como si se tratara de una silla playera. Su forma es en L y es el preferido de muchos por su elegancia. El dilema de estos sofás es ...