En este pequeño piso de Moscú, el equipo del estudio de INT2architecture se ha encargado de elegir los muebles a conciencia, evitando sobrecargarlo y consiguiendo que parezca mucho más grande de lo que en realidad es.
Un acierto es haber aprovechado para hacer una pequeña estantería cerrada en el tabique que separa la zona de descanso de la del salón. Además, al haber levantado la "habitación" han conseguido un extra de almacenaje, que en tan poquito espacio viene genial!
Otro plus, para mi súper importante, es aprovechar un hueco en la entrada como zona de lavandería para evitar poner la lavadora en la cocina, lo que nos robaría espacio y haría que fuera incómodo utilizarla de noche por la proximidad con la habitación.
Y no puedo terminar el post si no os comento que mi zona preferida es el pequeño balcón. Me encanta la nota de color que le han dado con el aluminio y las sillas en amarillo. Y nadie me puede negar que no estaría encantado de desayunar en una zona así, con esa luz, tooooodos los días!
Véis como es súper mono!!! Un desayuno de domingo como el de hoy, en un rinconcito así de chulo sabe mejor.
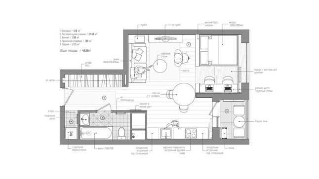
Aquí vemos lo que os comentaba, Han aprovechado tanto los tabiques que separan los ambientes como bajo el suelo como zonas de almacenaje. Y parece que no, pero se gana muchísimo espacio.
Vía
Yo creo que podría vivir en tan poquito espacio si está así de bien repartido y decorado.
Y vosotros??
 
 
 
 
 
 
 
 
 
 
 
 
 
 
