Habitación suitte de lujo

Proyecto de rehabilitación en una vivienda en la que anteriormente se había intervenido realizando proyecto de cocina y aseo.

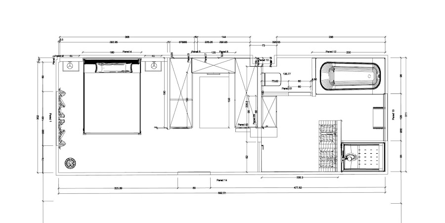
En esta ocasión desarrollamos un estudio de la habitación suitte y de una habitación adyacente que no estaba destinada a ningún uso específico.

Decidimos realizar un clóset con tres ambientes, diferenciando zona de noche, vestidor y baño con todo el equipamiento posible, para hacer de él una zona de relax de altas prestaciones.

También se interviene instalando parquet laminado, carpintería interior y falsos techos.

La zona de noche se mantiene aproximadamente en la misma situación, modificando algunas medidas para integrar una pared decorativa a modo de cabezal.

En cambio, la zona de baño se desplaza a la habitación adyacente, y el lugar que ocupaba el baño se destinará ahora para el vestidor.

En la planta podemos ver la distribución de todo el espacio.













































Espereamos que el resultado os guste tanto como a nosotros...:)

MEMORIA

Mobiliario

Serie Ithaca de Codis

Madera Roble tinte Limba D6

Espejo liso horizontal

Encimera Cristalplant blanco mate doble seno

Columna auxiliar a medida en DM pintable

Grifería

Monomando de lavabo Serie Futura de MB Complements
Sanitarios

WC Serie Conect de Ideal Standard

Cabina de ducha Oasis Star modelo Tabarca 120*80
Bañera hidromasaje Oasis Star modelo Duo 180*120

Revestimiento

Azulejo neutral beige 30*90 de Aparici

Azulejo neutral gris 30*90 de Aparici

Suelo Link Dark Shadow estructure 60*60 de Keope
Mecanismos Niessen Zenit

Armarios

Armario frontal corredero 240*200 con 4 cajones a medida, acabado exterior Lacobel Blanco

Armario combinado zapatero + puertas practicables 240*120*40, acabado exterior Laminado Gris-01

Armario frontal corredero 240*200*60 con 3 cajones, interior a medida, acabado exterior Lacobel Blanco

Interiores realizados en melamina 19mm de 100gr/m2









Fuente: este post proviene de Blog de deCuina, donde puedes consultar el contenido original.
¿Vulnera este post tus derechos? Pincha aquí.
Creado:
¿Qué te ha parecido esta idea?

Esta idea proviene de:

Y estas son sus últimas ideas publicadas:

Hola a tod@s!! Hace tiempo que no os informábamos de los proyectos que vamos finalizando, como aperitivo aquí tenéis... Proyecto de pequeña cocina abierta a comedor La necesidad de ganar amplitud y c ...

Rehabilitación integral de un apartamento en el centro de Barcelona. Supuso un auténtico reto proyectar esta cocina abierta al comedor, tratándose de unos espacios realmente reducidos. No podíamos des ...

Ya hace algún tiempo que no publicábamos ningún proyecto, muchos cambios en nuestra web, en la tienda online... etc no nos lo han permitido. Pero por fin aquí estamos!! Os presentamos este proyecto de ...

Etiquetas:

Recomendamos