El secreto: una buena distribución


Ya hace algún tiempo que no publicábamos ningún proyecto, muchos cambios en nuestra web, en la tienda online... etc no nos lo han permitido. Pero por fin aquí estamos!!

Os presentamos este proyecto de rehabilitación de cocina y baño con un diseño limpio y acogedor.
Nos encontramos una cocina dividida del lavadero, donde se encuentran secadora, lavadora y caldera. Todos de libre instalación. Colores oscuros e iluminación insuficiente nos crea una sensación de espacio reducido donde parece muy complicado poner orden.

La solución pasa por unificar ambos espacios, dotando de mobiliario suficiente para dar servicio a los elementos actuales.

Logramos integrar las máquinas de lavar y la caldera en la zona que antiguamente se encontraba el lavadero independiente. Además, aquí aprovechamos la superficie que tenemos sobre estos electrodomésticos para ganar una encimera de generosas dimensiones.




Tanto en la cocina como el baño se han aplicado tonos blancos combinados con tonos y acabados madera.


En la zona de la antigua cocina ocupamos ambos lados con dos lineales.
Uno de ellos corresponde a la zona de cocción y fregadera, integrando también el lavavajillas. La composición de los muebles se realizó con grandes cajones, donde también se integraron los cubos de reciclaje.




En el otro lineal nos encontramos con dos columnas de 230*40. Una de ellas una despensa con estanterías y la otra un escobero con disposición interior a medida. A continuación le sigue una semicolumna con cacerolero-horno y micro, integrada sobre un fondo de acabado Roble Eilin 1003, que le aporta calidez y diseño al conjunto. Este espacio también se aprovecha para colocar una barra HPL de Baido, resistente a altas temperaturas y fricción de materiales. En la parte alta finalizamos con un auxiliar abatible.




Para el mobiliario se utilizó el acabado Luxe Metaldeco blanco, con perfil gola. Con esta opción ganamos el espacio que ocupan los tiradores, muy importante en una cocina estrecha.
Los módulos bajos de 80 cm de altura con solamente 10 cms de zócalo, maximizando el espacio disponible para almacenamiento.


El material de la encimera y frontal en un tono tierra, modelo Rougui de Silestone, que coordina muy bien con el roble y blanco del mobiliario así como con el suelo moka y taburetes.


El pavimento de medida cuadrada 60*60 le aporta sencillez, sobriedad.
Únicamente se alicataron paredes en la zona de máquinas de lavar y tras la fregadera y lavavajillas por cuestiones de protección de muebles. El resto de paredes se enyesaron y pintaron en un tono arena que se integra perfectamente con el conjunto.

Así era antes...


y así quedó.... nos encanta!!




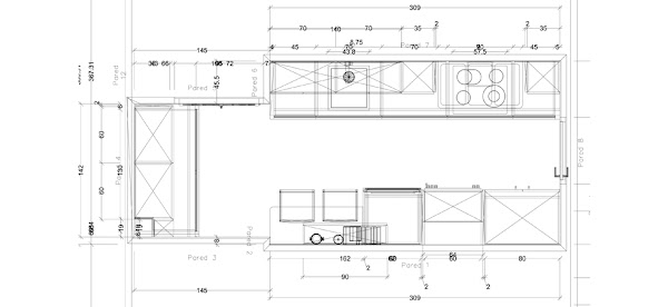
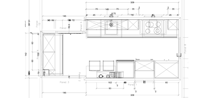
Planimetría






MEMORIA

Mobiliario: Laminado Luxe Metaldeco Blanco - Roble Eilin 1003 perfil gola

Barra: Mesa Baido HPL 102*40 acabado Blanco 136

Herrajes: TecnoInox

Encimera: Silestone Rougui 2 cms canto recto con frontal en paredes, zócalo 5*1

Electrodomésticos

Horno Neff B17CR22N0 circotherm-easyclean

Combi Neff K5885X4

Encimera Neff T41B11X2

Lavavajillas Neff S51D30X2EU

Microondas integrable Neff H11WE60N0

Campana Pando P823 V750 acero inox con iluminación led

Fregadera Blanco Andano 500U bajo encimera acero inox de Blanco

Grifería monomando Blanco Mila cromado de Blanco
Pavimento: Corus Moka 60*60 de HDC porcelánicos

Revestimiento: Azulejo blanco mate 30*60 (zona caldera)

Mecanismos: Simón 82 Select Blanco-Aluminio frío

Accesorios: Taburetes Ondarreta modelo Moka Epoxi blanco-polipiel visón

Fuente: este post proviene de Blog de deCuina, donde puedes consultar el contenido original.
¿Vulnera este post tus derechos? Pincha aquí.
Creado:
¿Qué te ha parecido esta idea?

Esta idea proviene de:

Y estas son sus últimas ideas publicadas:

Hola a tod@s!! Hace tiempo que no os informábamos de los proyectos que vamos finalizando, como aperitivo aquí tenéis... Proyecto de pequeña cocina abierta a comedor La necesidad de ganar amplitud y c ...

Rehabilitación integral de un apartamento en el centro de Barcelona. Supuso un auténtico reto proyectar esta cocina abierta al comedor, tratándose de unos espacios realmente reducidos. No podíamos des ...

Ya hace algún tiempo que no publicábamos ningún proyecto, muchos cambios en nuestra web, en la tienda online... etc no nos lo han permitido. Pero por fin aquí estamos!! Os presentamos este proyecto de ...

Etiquetas:

Recomendamos

Relacionado

¡¡¡Hola a tod@s!!!Hace unos días os adelantábamos a través de la redes sociales fotos de uno de nuestros últimos proyectos. Se trata de una cocina que hemos abierto a salón-comedor. También hemos reducido el tabique que encontrábamos al entrar desde el recibidor, instalando un vidrio separador que nos ofrece mayor sensación de amplitud y luminosidad . Hemos planteado una serie de imágenes donde ve ...

Hola a tod@s!! Hace tiempo que no os informábamos de los proyectos que vamos finalizando, como aperitivo aquí tenéis... Proyecto de pequeña cocina abierta a comedor La necesidad de ganar amplitud y capacidad nos llevó a contemplar la posibilidad de tener un espacio único cocina-comedor, cada vez más presente en los hogares.Se realizó una distribución en U, con zona de columnas y el resto módulos ...

Cocinas Interiores

Son 2 metros de ancho y listo tenemos una cocina!!… y con todas sus necesidades cubiertas, su gran altura al techo ha permitido mayor almacenaje…una MiniCocina..si!!pero más que suficiente para un piso de 56m2….y cono tan solo, una sola pieza de mobiliario, iluminación o un accesorio, puedes dar ese toque distinto. Un apartamento que está decorado en un blanco absoluto con un par ...

interioristas cocinas decoración ...

El cambio de la cocina de hoy es, sencillamente, impresionante. De verdad que cuando vi las imágenes la primera vez se me escapó un "ay, dios mío"... Jajaja! Y es que la luz, las sensaciones, el espacio útil, la habitabilidad de la cocina... TODO, ha cambiado completamente! Cada detalle cuenta! Os digo las cosas que especialmente me han gustado: por supuesto, empezamos por el blanco. B ...

Proyectos

Esta familia se mudaba de casa, y esta sería la casa de sus sueños. De primera necesidad querían una cocina para vivirla, y después un baño donde poder relajarse el matrimonio al final del día y otro para los peques que fuera divertido. Había una cocina muy recogida con una distribución común pero pequeña para esta familia. Entonces nos decantamos por hacer una ampliación hacia el exterior, cogien ...

cocinas pequeñas como decorar la cocina decoración de cocinas ...

Cansado y claustrofóbico son dos de las razones por las cual sufrimos constantemente todas aquellas víctimas de los espacios reducidos. Y si tú eres de esas personas, probablemente te puedas relacionar bastante con estas alegaciones. Sabemos que tener una cocina pequeña es una desventaja que ya conocemos, pero ¿realmente hemos hecho algo para cambiar este hecho? La verdad es que le podemos sacar l ...

general almacenaje cocinas

¡Empezamos la semana con mi enseñando mi cocina! Con ella inicio un nuevo reto, en esta ocasión de la mano de facilisimo, que busca cocinas reales de diferentes blogers para encontrar la casa del año. Además de mostraros mi cocina, en este post también os daré consejos y trucos para conseguir que esta estancia se convierta en un espacio, cómodo, práctico, funcional, higiénico y estético. Mi casa ...

apartamentos cocinas estilo industrial ...
SORPRENDENTE DISTRIBUCIÓN UNA COCINA EN EL PASILLO

Hay distribuciones de viviendas que no dejan de sorprenderme!! Los que me seguís y leéis mis post ya sabréis de la importancia que le doy a la distribución de una casa, para mi es el pilar de la decoración. Creo que es la primera vez que me encuentro una cocina alojada en el pasillo, y aunque a priori pudiera parecer una locura en la practica no es una idea tan descabellada. Hagamos un tour por es ...

COCINAS DECORACIÓN NÓRDICA decoracion chic ...

Esto es algo que nos suele pasar de un año para otro, miramos nuestra cocina y vemos que poco a poco se nos va quedando pequeña, que vamos añadiendo utensilios nuevos de cocina y que no tenemos apenas espacio para poder ubicarlos. Pero si realmente te pasaras a analizar tu cocina, te darás cuenta de que podrás aprovechar muchísimo mejor su espacio, que con una pequeña reforma ganarás amplitud, esp ...

general antes y después casa m y a ...

Antes y después de #casamya Empieza un nuevo mes, para mi especial ya que el sábado es mi cumple y toca cambio de década…no es que me haga mucha ilusión pero habrá que celebrarlo jejeje. Y también tenemos una nueva edición de DiarioDeco con el tema “antes y después”, ya vamos por la 12ª edición y cada mes con más ganas e ilusión. La ganadora de #diariodeco11 fue Mónica de Decorac ...