Rehabilitación integral de apartamento en la Costa Brava


Proyecto fresco y modernista el que os presentamos a continuación.
Se trata de un apartamento de tan solo 38M2, donde se realiza una intervención total.
Nos encontramos con una vivienda de 1 habitación, cocina cerrada, salón independiente, baño completo y aseo. También tenemos un balcón que ya ha sido añadido al salón, y que se puede acceder por la habitación.
Es evidente que tener un aseo y un baño en una vivienda de tan reducido tamaño, es algo que hay que evitar, exprimiendo al máximo el espacio disponible y equipando un solo baño para destinar más espacio al resto de equipamiento del apartamento.

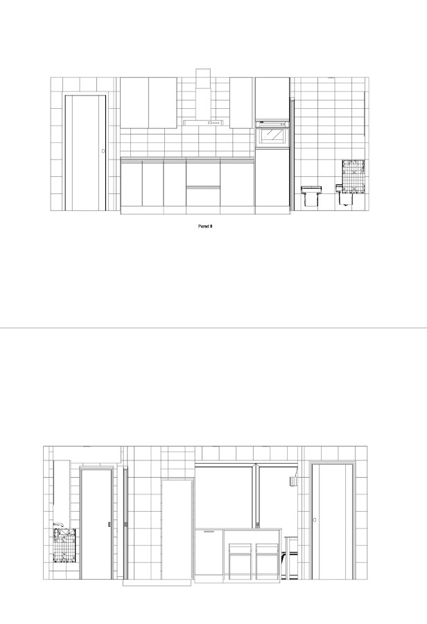
La cocina se realizará abierta al comedor, con una pequeña península que servirá de base de trabajo auxiliar y para tomar el desayuno, hacer un café o invitar a una copa a nuestros invitados.
Esta península sale desde el lateral de la nevera, que hemos situado en un espacio de obra que hemos generado al modificar el espacio del baño. También tenemos un mueble bajo la barra, con una torreta de enchufes que se ocultan cuando no los necesitamos.

El lineal contiene fregadera de una cubeta, lavavajillas y lavadora integrada, y una columna con un horno-micro de Neff, además del calentador eléctrico en la zona alta de la misma. Bajo la placa de cocción tenemos dos caceroleros que contienen un cajón interior para la cubertería.
Disponemos de dos muebles altos, uno para platos y otro más pequeño de servicio. Todo el mobiliario se ha realizado en acabado Luxe metaldeco blanco, con interior de M.D.F y tecnología láser. El módulo bajo tiene una altura de 80cms (90 con el zócalo) sin tirador y con perfil gola integrado.


En el baño situamos el inodoro y el bidé de instalación suspendida.
El mueble de baño también, y así aportamos mayor ligereza al espacio. Instalamos un plato de ducha suficientemente amplio, con mampara de vidrio transparente para seguir aportando mayor sensación de amplitud.



Un detalle particular de este baño es que dispone de dos accesos. La distribución del apartamento, si solamente tuviésemos una puerta, haría que para poder acceder desde la habitación necesitaríamos rodear todo el salón.
De igual modo, si algún invitado desea acceder al baño hubiese tenido que pasar por la habitación de matrimonio. Así que desde la cocina tenemos una primera puerta, en roble decapado blanco con poro abierto, y desde la habitación una puerta en vidrio mate templado.








Ambas están integradas en la pared para no ocupar espacio, y sobre la puerta de vidrio también hemos realizado un fijo de vidrio para aportar mayor entrada de luz natural.
El baño dispone de un sensor de presencia que enciende una cortina de luz led indirecta en el interior del baño, y conecta un pequeño testigo luminoso rojo en la entrada desde la cocina, para avisar que el baño está ocupado.

Desde la habitación de matrimonio modificamos y ampliamos el paso hacia la zona de balcón (ya integrado en la vivienda) e instalamos una gran cristalera con una hoja fija y otra hoja corredera. Aportamos así gran luminosidad a la habitación y al baño.



Los muebles de hogar, mesa y sillas son en acabados de maderas naturales y tonos claros. En la habitación de matrimonio de aplicó un papel decorado en la pared del cabezal de la cama


También podéis ver imágenes del antes y después. Esperamos que os guste y hasta la próxima!ANTES Y DESPUÉS




PLANIMETRIA



MEMORIA

COCINA
Mobiliario: Laminado Luxe Metaldeco tecnologóa láser C/perfil gola
Herrajes: Blum
Electrodomésticos:
·Horno-Micro Neff C57M70N3
·Placa de Flex-inducción Neff T52D51X2
·Campana Pando P-823
·Fregadera Shock Soho N-100 s cristadur bronze 87
·Griferia Blancolinus-S Extraíble
Encimera: Compac Carrara Nature
Frontal: Revestimento Mainzu Bissel
Pavimento: Rafter Ice de Aparici
BAÑO
Sanitarios: Roca Meridian suspendidos
Grifería: Galindo
Mampara: Serie Arcoiris Plus Profiltek
Azulejos:
·Revestimento Neutral blanco mate de Aparici
·Ducha y tabique sanitarios, Jungle white bosco de Aparici
·Pavimento Vanguard Mix natural de Aparici
MOBILIARIO DE HOGAR Y TABURETES
Ondarreta serie Bob
Treku seria Aura
CARPINTERIA
Puerta de interior encastrada DKP roble decapado blanco
Puerta de interior encastrada vidrio templado mate y armazón Essential de Scrigno
Cerramiento acristalado corredero con guía Roll-Glass Expert de Klein (1fija+1hoja)
ILUMINACION Y PAPEL DECORADO
Vibia
Trestintas Barcelona
Fuente: este post proviene de Blog de deCuina, donde puedes consultar el contenido original.
¿Vulnera este post tus derechos? Pincha aquí.
Creado:
¿Qué te ha parecido esta idea?

Esta idea proviene de:

Y estas son sus últimas ideas publicadas:

Hola a tod@s!! Hace tiempo que no os informábamos de los proyectos que vamos finalizando, como aperitivo aquí tenéis... Proyecto de pequeña cocina abierta a comedor La necesidad de ganar amplitud y c ...

Rehabilitación integral de un apartamento en el centro de Barcelona. Supuso un auténtico reto proyectar esta cocina abierta al comedor, tratándose de unos espacios realmente reducidos. No podíamos des ...

Ya hace algún tiempo que no publicábamos ningún proyecto, muchos cambios en nuestra web, en la tienda online... etc no nos lo han permitido. Pero por fin aquí estamos!! Os presentamos este proyecto de ...

Etiquetas:

Recomendamos

Relacionado

IDEAS ESPACIOS featured ...

Vuelve Septiembre, el Enero de los rezagados, y nosotros no lo hacemos más que inspirándonos en lugares bien decorados donde buscar ideas para nuestro futuro "agujerito en la pared". Siempre digo que me conformo con cualquier sitio para independizarme porque creo que en cualquier lugar se puede hacer un verdadero hogar si nosotros le ponemos nuestro empeño y el apartamento de hoy lo cump ...

general casas inspiración ...
30m2 de estilo y detalles.

Hola a tod@s, rematamos la semana con una preciosa vivienda que aunque solo cuenta con 30m2 rebosa estilo por todos sus ricones. Este apartamento cuenta con tres zonas, la entrada/cocina, el baño y la zona principal en la que comparten espacio el salón, el comedor y el dormitorio. Como si de un pequeño lienzo en blanco se trata elpiso se va llenando de calidez con tonalidades tierra: la madera, lo ...

general

Dicen que los lunes, las pilas empiezan recargadas...pero yo no...yo me recargo el Viernes!! Yupi yupi yeah!! Sera lo mejor, las ganas de descansar y de colgar un poco el tiempo ajustado y de disfrutar del tiempo libre. Como no podía ser de otra forma, hoy despedimos la primera semana de Julio con un nuevo #Hometourdeco lleno de color, en el que por extraño y sorprendente que parezca...son solo 40 ...

general arquitectura casa ...

Esta semana para el reto Small&Low Cost de decoración.facilismo.com os traigo un diseño de apartamento de tan solo 32 metros cuadrados! Los creadores son Curly Studio, diseñadores y arquitectos de Kishinev, Moldavia, especializados en aprovechar al máximo los espacios reducidos, diseñando incluso sus propios muebles modulares. Podéis ver su perfil completo en behance. Un diseñador con talento es a ...

general apartamentos
UN APARTAMENTO DE 58 METROS / Apartament of 58 meters

Cuando paseas por este apartamento situado en Rumanía cuesta creer que sólo tenga 58 metros. Se decoró con mobiliario moderno en madera clara con destacados toques en amarillo que consiguen que parezca mucho más grande y le aportan mucha luminosidad. Resalto la elegancia que le aportan las cubrecortinas en gris oscuro, color elegido para darle continuidad a la tapicería del sofá. En la cocina, ...

cocinas deco decoracion de interiores ...

Comenzamos nueva temporada de "Reforma Integral" y nos estrenamos con una vivienda que os va a cautivar. Se trata de un piso situado en la calle Príncipe de Vergara con una superficie de aproximadamente 75 m2 construidos. Sus dueños, una joven pareja madrileña, tuvieron muy claro desde el principio que el día que llegase "su momento", contarían con nuestro equipo para llevar a ...

Decoración House Tour Inspiración decoración ...

Si me sigues desde hace tiempo sabrás que antes vivíamos en un mini apartamento de 29m2 y me pasaba horas y horas buscando en Instagram ideas que me ayudaran a aprovechar todos los rincones. Así descubrí la casa de Becky y hoy te la quiero enseñar con detalle. 36 m² DE APARTAMENTO EN ALEMANIA Hoy seré breve porque una imagen dice más que mil palabras y las fotos de la casa de Becky, @villa.snowwhi ...

apartamentos diseño nórdico ideas para la casa ...
UN MINI APARTAMENTO DE 35 M2 CON TODO LO NECESARIO PARA VIVIR

Esta vivienda es un claro ejemplo de cómo sacar el máximo partido al espacio, cuenta con tan sólo 35 m2, pero no le falta ni un detalle, recibidor, sala de estar, comedor con una gran mesa, cocina, un pequeño dormitorio e incluso dispone de zona de trabajo. En él destaca su estilo nórdico con toques vintage, en el que las paredes cobran protagonismo gracias a los acabados, muro de ladrillo visto e ...

ideas diy decoración

En la sección deco de hoy traemos una casa espectacular, a pesar de su pequeño tamaño este apartamento me tiene enamorada, me iría a vivir ahí con los ojos cerrados. Me encanta el ladrillo visto, incluso estoy pensando en ponerlo en mi salón, es que le da mucha personalidad y encanto a la casa. Imagenes via Feliz jueves a todos...

DECO-Inspiración

Decorar un apartamento: Ideas para ganar luz y espacio. Después de un comienzo de semana de locura con las obras y los proyectos de decoración, he tenido un rato para escribir un nuevo post en el Blog sobre una vivienda que es pura inspiración!! Un pequeño apartamento en Estocolmo muy sencillo, práctico y funcional. En esta vivienda todas las piezas se encuentran en un mismo espacio; Hall de entra ...