[Home] Un apartamento con la estructura como protagonista

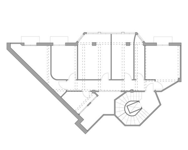
La vivienda que hoy vemos dentro de la sección [Home], podría pasar por estar sita en cualquier país escandinavo. Descubrir esta vivienda situada en el barrio de Gros, en San Sebastian, a tan solo unos pocos metros de la playa de Zurriola, es todo un ejemplo de diseño y arquitectura bien pensada. La reforma de la misma se llevó a cabo por el estudio Pauzarq, que ha recuperado un mirador que estaba oculto tras un tabique y que albergaba en un principio tres habitaciones. Tras ser derribado el muro, todo el mirador pasa ser la pieza principal de la vivienda y se recupera su visión global. Los arquitectos Felipe Pérez Aurtenetxe, Elena Usabiaga y Gerardo Zarrabeitia crean un módulo con una doble función, la de pared y la de estantería, con dos entradas y una ventana a media altura, que separa a su vez la sala de estar del pasillo y la cocina. Como protagonistas: los pilares recuperados en hormigón y el suelo original de la vivienda.





El mirador dividido en tres habitaciones y el largo pasillo distribuidor que comunicaba las tres estancias, y el resto de la casa, hacían que se quedara sin apenas luz (siempre tan escasa, en Euskadi), excepto la que recibía a través de las puertas de las habitaciones,  por lo que perdía su máximo potencial.



Al derribar los tabiques y convertir las tres estancias en una sala de estar/comedor, se recupera la visión global del mirador, y de paso se maximiza el espacio de este piso de 95 m². La transición en los colores neutros de la decoración contribuye a la separación de los espacios. El color blanco de las ventanas y el mobiliario se va oscureciendo en tonos grises claros en las paredes y pilares de hormigón hasta llegar a los grises más intensos. Las hamacas azuladas, los pufs de mimbre y las bombillas colgando contrarrestan con el señorío de los ventanales y del edificio, logrando a su vez un ambiente cálidoy de relax.





La cocina resultante es mucho más abierta y ha ganado en luminosidad. El hueco de la pared/estantería conecta el mirador visualmente con la ventana de la cocina, lo que le proporciona una doble iluminación y ventilación cruzada. Con la reforma, la distribución de esta vivienda familiar se queda con tres dormitorios ubicados en los extremos de la casa, los tres con balcón a la calle y comunicados por el pasillo distribuidor. Los suelos de madera, son los originales en contraste con la nueva tabiquería ligera. Se ha diseñado un zócalo rehundido que recorre la vivienda, adaptándose como marco para las puertas.







El estudio de diseño ha querido potenciar la estructura del edificio, dejando al descubierto las vigas y pilares de hormigón dando un aire industrial a modo de loft.



Una vivienda que recupera un antiguo mirador ganando el luz y en espacio, con una distribución de corte minimalista donde la estructura del edificio es la protagonista del conjunto en una base de color suave y neutra. Una preciosa reforma! ¡Feliz día!

Más información y Fotografías [] Pauzarq

Sígueme TWITTER*FACEBOOK*BLOGLOVIN*PINTEREST
Virlova
¿Vulnera este post tus derechos? Pincha aquí.
Modificado:
¿Qué te ha parecido esta idea?

Recomendamos

Relacionado

Apartamento Decoración Decoración contemporanea ...

La reforma de la vivienda que os traigo hoy, es tan sencilla como espectacular. La vivienda, parece otra completamente distinta antes que después de la reforma. De planta completamente rectangular, ha ganado visualmente en metros con una reforma básica. Se retiran las clásicas molduras, rematando la escayola en L, mucho más liviano y sencillo, del mismo modo que se retira la pintura y el papel de ...

Arquitectura Casas Estilo Industrial ...

Atreverse con materiales no convencionales es difícil, sin embargo, ver resultados como éste que os traigo hoy aquí, seguro que animará a más de uno. En el "Home tour" que he encontrado en Fantastic Franck, se ha empleado el hormigón fratasado en toda la vivienda, y no solo en los suelos, sino también en paredes y techos. Normalmente el hormigón fratasado se ha utilizado para suelo indus ...

'home tour' DECO

Sí, hoy recorremos una nueva vivienda en la que la clave para optimizar el espacio ha sido crear un altillo. Claro está que es una reforma sólo apta para casas con techos de más altura, generalmente pisos de casas antiguas o lofts; pero sin duda es una idea que nos puede servir para aprovechar, por ejemplo... ¿el desván de una casa de campo? ¡ Ah ! podéis ver los otros dos apartamentos con altillo ...

general deco-inspiración

El hierro como protagonista: Una vivienda moderna con detalles en hierro en cada esquina. Hoy en el Blog de decoración de interiores Boho Chic Style realizamos nuestro #Tour de Decoración por esta sorprendente  vivienda, donde los detalles en hierro están presentes a lo largo de toda ella. El hierro es un material que según como lo combinemos podemos tener espacios con estilos que van desde lo ind ...

Mis proyectos Asesoraminto Online Decoración ...

Cómo  interiorista puedo ayudar en el asesoramiento de una decoración hasta realizar una reforma integral de una vivienda. Hoy quiero enseñarte el pre-proyecto de diseño online, que he realizado para la reforma integral de un apartamento para alquilar. Cada uno de los proyectos es diferente (ello es algo que me fascina de mi trabajo) y esta reforma fue un gran reto con el que disfruté muchísimo tr ...

La luz es siempre una fuente de discordia a la hora de escoger una vivienda, por lo que siempre se buscan soluciones para acabar con espacios con poca iluminación, cómo dar luz natural a un pasillo oscuro. Cómo dar luz natural a un pasillo oscuro Muchos de los residentes de una vivienda tienen el problema de un pasillo con poca iluminación, por lo que se intenta encontrar las mejores soluciones pa ...

Espacios: reformas e interiorismo

Proseguimos con la decoración de nuestro apartamento del mes. Una vez que se ha decidido la distribución pasamos a la decoración. El estiloLos propietarios deseaban el suelo y los acabados en madera. Por otra parte observamos predominio de negro en la decoración original y propusimos dos opciones generales de revestimientos: A con madera, B alternativa en gris. A. Con suelos porcelánicos o viníl ...

general

Nunca pensé que una base en color negro pudiera dar tan buen resultado. Esta vivienda se encuentra en la costa australiana, de estilo contemporáneo, con grandes espacios, los propietarios han escogido un color un tanto especial como base para su interiorismo, el color negro. Los suelos de hormigón pulido y la pared de bloques de hormigón consiguen esa base oscura, a la que tenemos que añadir ...

muebles proyectos de interiorismo antes y despues de un piso ...

A la hora de enfrentarse a la reforma de un piso, hay que tener en cuenta varios pasos, y que mejor que verlo con un ejemplo práctico. En este caso voy a asesorar en el diseño y distribución de la reforma de un piso de 84 m2, ubicado en Coslada, Madrid. El piso necesita una reforma completa, consta de tres habitaciones, dos terrazas ya cerradas, cocina, baño y salón. Hay que tirarlo entero y hacer ...

decoracion interiores decoradores ...

En este post te mostraremos la decoración de un apartamento donde observarás fotografías del resultado final. Hoy en la sección Interiores, quiero mostraros la decoración de un apartamento del Eixample de Barcelona donde el estudio de interiorísmo Atmósfera, dirigido por Cristina y Eduardo Mateus, rediseñó esta vivienda manteniendo su esencia. La decoración de un apartamento tiene diversos objetiv ...