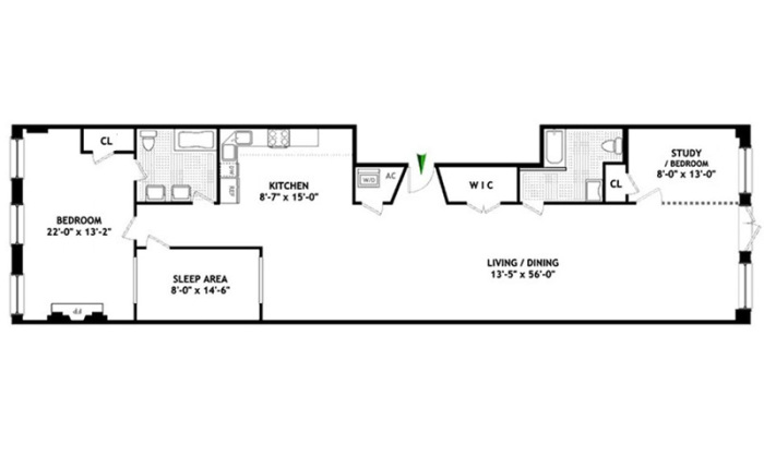
Un estupendo "pisito" de soltero en pleno SoHo newyorkino a modo de apartamento loft de planta abierta con dos dormitorios y dos cuartos de baño en mármol blanco. El espacio en forma rectangular se distribuye a lo largo de las paredes para no crear divisiones ni estancias que eviten la entrada y propagación de la luz de los ventanales situados en ambos extremos de la planta. Una de las habitaciones interiores, marcada "lugar para dormir" en el plano de planta, no tiene una ventana al exterior o un armario así que no es un dormitorio en sí, sino una espacie de oficina estudio abierto en la parte delantera de la vivienda. El apartamento se encuentra en un edificio de 1915 que sigue manteniendo su encanto original a través de los solados de madera y una gran chimenea en el dormitorio. La decoración es una mezcla de estilo masculino urbano y con detalles clásicos y vintage.
El loft se sitúa en el segundo piso del edificio de hierro fundido con vistas a Crosby Street. El interior cuenta con techos de 4 metros de altura, suelos de madera originales, ladrillo visto en paredes y chimenea antigua recuperada, aunque ha sido renovado para incluir accesorios y servicios modernos, manteniendo su carácter. Destacan las pintorescas y sorprendentes vistas despejadas a través de sus enormes ventanales. La línea de cocina destaca por ser moderna y llena de estilo con herrajes de bronce. La propiedad está configurada como una enorme suite de lujo de un dormitorio y segundo espacio interior.
Cuando corresponde decorar los espacios donde cohabitamos, la selección del mobiliario es muy importante y, prácticamente es lo que determinará la comodidad, practicidad y estilo de todo el lugar. Es ...
Los espacios exteriores del hogar hacen una gran contribución a la calidad de vida doméstica, pudiendo ser lugares ideales desde para desayunar relajadamente los fines de semana hasta para disfrutar d ...
En los últimos años la sostenibilidad o consumo responsable de los recursos ha ido ganando adeptos. Entre otras, el calentamiento global y la escasez cada mayor de ciertos materiales ha hecho que los ...
La oficina es un espacio de trabajo donde todos los usuarios deben sentirse cómodos para desempeñar sus labores de la mejor manera posible. Para que esto sea posible, entre otras cosas, es necesario c ...
Este impresionante ático dúplex está situado en SoHo , Nueva York , EE.UU. . El apartamento cuenta con 6 dormitorios, 6.5 baños, y tiene una superficie de 7.452 metros cuadrados. Esta actualmente a la venta Ático Duplex en el centro: "El más excepcional Ático Duplex en el centro: Nada se compara con este extraordinario penthouse condominio que se cierne sobre todo Soho y o ...
A pesar de que el otoño está a la vuelta de la esquina, me resisto a entrar de lleno en él. Será por eso que he encontrado un loft que todavía me inspira aires veraniegos y primaverales. Es el color. O será la luz. Difícil decirlo. La cuestión es que es dulce y refrescante a la vez, como un puesto de helados en un día soleado. Está situado en el Soho londinense (¿donde si no?), en el mismo edifici ...
Este apartamento ideal de un sólo dormitorio a modo de loft de caracter industrial, se sitúa en el Soho londinense. Con un toque rústico moderno que se acentúa en los muebles de diseño de madera, el resultado nos descubre un espacio a modo de nave industrial, remodelada y con el ladrillo cara vista y la madera como materiales principales. El apartamento fue renovado y el objetivo era crear una cas ...
En este típico edificio del Soho de Nueva York se encuentra este loft, que ha respetado los acabados originales del edificio, ladrillo visto y yeso parcheado... una manera de rehabilitar que me parece además de lógica simplemente preciosa. Muebles de madera natural. La butaca de Capellini. El zócalo de tablas de madera es un elemento común en toda la zona común. La cocina ...
Hoy vamos a dar una vuelta por una de las estancias mas envidiadas de la serie “Castle”. Nos referimos al apartamento del protagonista, el escritor Richard Castle . El apartamento de Rick Castle, situado, teóricamente, en la última planta de el edificio que hay en la calle Broome St. 425 con la esquina de Crosby Street, en el Soho de Nueva York, es un espacioso loft moderno con un d ...
Hoy os traemos un "pequeño" apartamento newyorkino, que hemos encontrado en iDesingArch. De estilo contemporáneo y minimalista, este típico apartamento de soltero nos encanta por su cuidado diseño y porque resuelve sorprendente bien una planta muy, muy complicada. Comenzamos nuestra visita al interior del apartamento: una ligera repisa de madera de corte asimétrico, un espejo y un jarró ...
Pendiente desde hace tiempo, hoy comparto el proyecto que hice el pasado verano en tiempo record. Se trataba de una mudanza espress para un chico que cambiaba de trabajo y ciudad. La casa debía de estar montada en más o menos un mes, toda una maratón. Al final llegamos y pudimos inaugurar a finales de agosto.Todo listo para empezar nueva vida en septiembre. Ayudó mucho que el cliente quisiera alg ...
Después de varios años viviendo y trabajando en Londres, el arquitecto Dimitar Karanikolov y la diseñadora de interiores Veneta Nikolova regresaron a Sofía, donde encontraron un pequeño pero interesante ático lleno de posibilidades. La reforma del ático dió como resultado un espacio a modo de loft donde el estilo industrial, el diseño de muebles y la experimentación con detalles y acabados, son l ...
Hoy en Minipisos y espacios pequeños descubrimos un pequeño piso de planta abierta y grandes ventanales que lo convierte en un amplio estudio tipo loft de estilo nórdico. Consta de una superficie de 56 m² divididos en tres espacios. La cocina, el comedor y el salón están unidos, mientras que el dormitorio está separado por una división acristalada con dos salidas: una al hall, donde está el cuar ...
EDecora tu apartamento de soltero. Tendencias single man. El espacio new single refleja el modo de vida de una persona que convive en él. Estilo masculino para un espacio exclusivamente masculino. El apartamento de soltero. Aunque la decoración suele asociarse con el universo femenino, no hay motivo alguno por el que los hombres quedan fuera a la hora de ambientar su casa, es más el estilo de la ...