Paula y Fran

El proyecto consiste en la remodelación de la zona de día de una vivienda de 4 dormitorios.
Las peticiones de los propietarios:
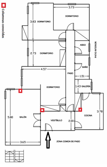
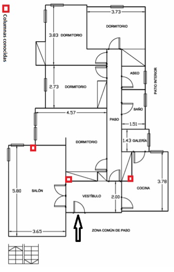
- Mejorar hall de entrada excesivamente amplio y un largo pasillo
- Necesidad de almacenaje en la zona de entrada
- Prescindir de uno de los dormitorios para crear una amplia zona de salón/comedor
- Nueva distribución de instalaciones y mobiliario y ampliación de la cocina


Propuesta de distribución





Entrada



Salón





Comedor



Cocina



Distribución previa



Fuente: este post proviene de Patricia Alberca Diseño, donde puedes consultar el contenido original.
¿Vulnera este post tus derechos? Pincha aquí.
Creado:
¿Qué te ha parecido esta idea?

Esta idea proviene de:

Y estas son sus últimas ideas publicadas:

La edificación sobre la que se llevará a cabo la rehabilitación es una propiedad particular que lleva varios años deshabitada. Su construcción data de la primera mitad del siglo XX. La vivienda se enc ...

Recomendamos