Proyecto vivienda rural.

La edificación sobre la que se llevará a cabo la rehabilitación es una propiedad particular que lleva varios años deshabitada. Su construcción data de la primera mitad del siglo XX.

La vivienda se encuentra rodeada de huertos y zonas de cultivo y a pocos kilómetros del mar.

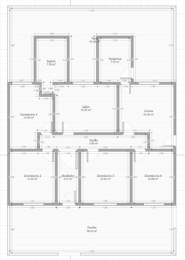
Dispone de 4 dormitorios, 1 baño, un pequeño salón, una gran cocina y una despensa que antiguamente se utilizaba para almacenaje y curado de alimentos. Un porche, una cochera y un patio posterior completan el espacio desde el que parte el proyecto.







La actuación consiste en la sustitución o reparación de todos aquellos elementos constructivos que se encuentran deteriorados para dotarla de unas buenas condiciones de seguridad, habitabilidad y conservación del inmueble respetando, en todo lo que se pueda, las características de la vivienda, mediante el empleo de materiales y técnicas constructivas acordes a este tipo de edificación.






















La finalidad de la rehabilitación es mejorar la vivienda, se va a respetar la distribución de los dormitorios, añadiendo el baño existente al dormitorio principal. La distribución se va a modificar en la zona de día, uniendo el salón, la gran despensa y la cocina, en el espacio resultante se crea un espacio abierto de cocina/salón/comedor, añadiendo un nuevo baño y un lavadero desde el que se accede a la cochera y al patio.




Fuente: este post proviene de Patricia Alberca Diseño, donde puedes consultar el contenido original.
¿Vulnera este post tus derechos? Pincha aquí.
Creado:
¿Qué te ha parecido esta idea?

Esta idea proviene de:

Y estas son sus últimas ideas publicadas:

La edificación sobre la que se llevará a cabo la rehabilitación es una propiedad particular que lleva varios años deshabitada. Su construcción data de la primera mitad del siglo XX. La vivienda se enc ...

Etiquetas:

Recomendamos

Relacionado

El motivo de la reforma parte de la necesidad de los propietarios, una pareja con dos hijos, de optimizar el espacio de la vivienda de 105 m2. Adaptar los dormitorios a las nuevas necesidades, trasladar la cocina (que se encontraba al fondo de un largo pasillo de más de 12m.) y aumentar la zona de almacenaje que en estos momentos no es suficiente. El crear una gran zona de día separada de los do ...

Tras la realización del proyecto para la rehabilitación de una vivienda centenaria en el pueblo La casa del abuelo previo al inicio de las obras, se solicitó por parte de los propietarios, proyecto para la reforma de la primera planta, en ella se ubicarían, dos dormitorios, un baño, una gran zona de estar/tv y el despacho. Se mantiene la distribución y se ubica uno de los dormitorios y el baño ...

decoración arquitectura deco ...

Un antiguo establo en el pueblo de Guijo de Santa Bárbara, en la provincia de Cáceres, es el enclave perfecto para una reconversión de esta edificación de piedra de más de 320 m² proyectado y realizado por el equipo de Ábaton Arquitectura. Espíritu moderno con toques de "campagne" donde se transforma un establo antiguo abandonado en una vivienda familiar con una rehabilitación basad ...

Sencillas casa de dos niveles casa de segundo piso ...

En este artículo vamos a ver diferentes modelos de planos de casas de dos pisos en los cuales adjuntaremos también su fachada para tomar como referencia para nuestras ideas. Estos planos son ideales para utilizarlos para la reforma de nuestra vivienda o para construir una nueva. Veamos los mejores planos de casas bonitas de dos pisos que han elegido nuestros arquitectos para este gran artículo: 1. ...

Mis proyectos Casas Decoración ...

Cómo interirorista no sólo realizo proyectos de asesoramiento de decoración, sino también hago reformas para el hogar. Hoy quiero enseñarte un proyecto que he realizado para una vivienda unifamiliar. La vivienda, es para una pareja joven y sus dos hijos pequeños, era primordial crear una distribución práctica a la vez que funcional, para adaptarse al estilo de vida de la pareja y sus pequeños. Es ...

Blog casa unifamiliar casas chicas pero bonitas ...

Este artículo lo comenzamos con planos de casas 2 pisos, son un tipo de plano muy demandado ya que maximiza el espacio para poder construir encimad de la primera planta. Dos pisos suele ser la opción más popup¡lar, porque cumple con las leyes de urbanismo, así como la relación espacio-precio es más asequible para el usuario. Planos de Casas 2 Pisos 1. Plano de Casa de Dos Pisos con cochera 2. Pl ...

deco decoración vintage ...

Esta maravillosa casa fue construída en los años 20, en pleno siglo XIX. Muy deteriorada por el paso del tiempo se tuvo que realizar una rehabilitación completa de esta arquitectura tradicional, propiedad rural de ladrillo y paja, en su inicio. Una acometida perfecta que adaptó la viviendad a los tiempos que corren pero sin perder el encanto y el sabor del Vintage más sofisticado. Los interiores h ...

de Madera Tres Habitaciones Un Piso ...

El diseño de esta casa de madera llama mucho la atención de nuestros clientes ya que un elemento que gusta mucho es la piscina, que de entrada no todos los usuarios la construyen pero saben que pueden dejar el hueco para construirla en un futuro. La casa consta de 106 metros cuadrados habitables (útiles), que se reparten principalmente entre 3 dormitorios y el resto de espacios normales de una vi ...

DECO-Inspiración

Una vivienda para soñar: blanco, madera y mucha luz. Comenzamos esta semana realizando un tour por una preciosa vivienda donde se puede respirar el estilo nórdico en cada rincón! Se trata de una vivienda distribuida en 2 plantas, con un total te 3 dormitorios, además de cocina con comedor, salón, terraza y 2 cuartos de baño. ¡No me digas que no tienes curiosidad por saber como es y sus detalles! S ...

cuatro dormitorios cuatro habitaciones de madera ...

Esta magnifica casa a sido construida en una parcela de 700 m2, la superficie útil de la vivienda son de 176 metros cuadrados que se encuentra dividida en 4 dormitorios. La casa tiene aspecto de cabaña moderna, ya que se ha conservado la parte superior de la casa en maderas vista, y la parte inferior ha sido levantada sobre bloques. El techo de la vivienda es a dos aguas, con un ángulo de 30º ...