[Projects] 32 m² de original distribución donde cabe TODO

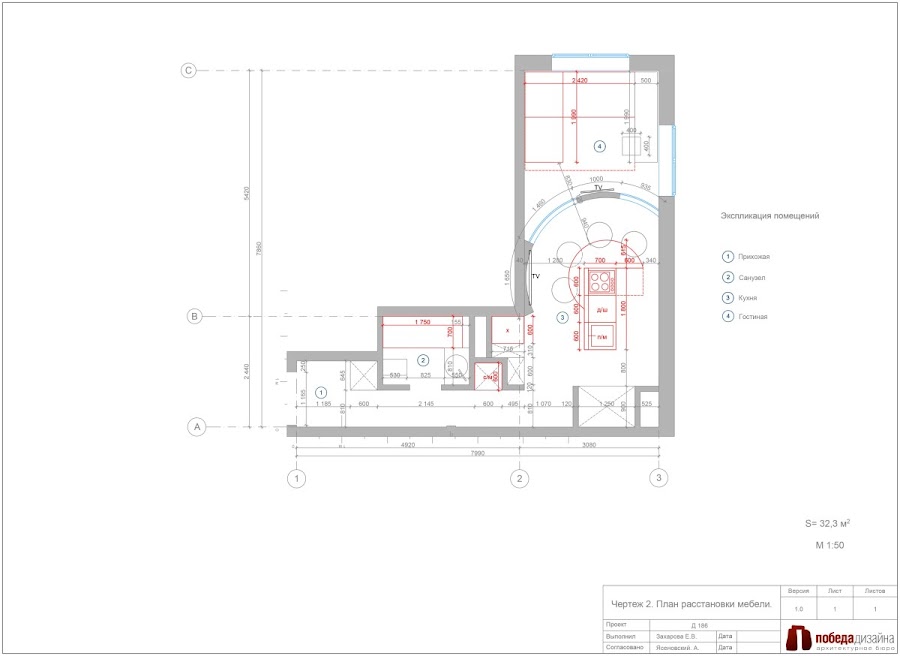
En un área pequeña como es el caso del proyecto de interiorismo de hoy, es muy difícil identificar las áreas funcionales tales como el dormitorio, cocina, vestidor y cuarto de baño. En apenas 32 m² los diseñadores de este pequeño apartamento en estilo Art Deco parten de una zonificación no estándar y un poco atrevida. Se parte de un programa de necesidades para una persona soltera o pareja joven y creativa donde se buscan soluciones innovadoras aplicadas a cada espacio de zonificación. Teniendo en cuenta el ritmo de vida actual, el propietario de la vivienda tenía algunas peticiones para la planificación: distribuir el cuarto de baño en la zona de la entrada y un sistema de almacenamiento importante que también se ubicara en la zona de paso de la entrada. El interior de la vivienda tiene que resultar acogedor y funcional. En la decoración destaca una paleta de colores brillantes y con colores contrastantes que rompan la homogeneidad pero que ayuden a que el interior sea más amplio de lo que es.







La vivienda resulta ser una especie de codo en L en su geometría, lo que complica los espacios y su distribución. En el interior hay vidrio, cromo brillo. El suelo tiene una textura brillante así como la puertas correderas de vidrio (vidrio esmerilado, posiblemente, con un patrón). Al colocar la zona de cocina en la parte central de la planta, se crea una barra a modo de office circular con sillas Tulip, para crear una circulación suave y continua en el tránsito de las distintas estancias abiertas y comunicadas entre sí. Se busca maximizar el espacio en el plano visual. La cocina completa y el comedor se identificó por los suelos en un diseño de tablero de ajedrez y con mayor altura del techo. En la composición general de los dispositivos de iluminación son muy importantes.




En la sala de estar de poco de espacio, prima la funcionalidad. El sofá hace las veces de cama con preciosas vistas y cuenta con una zona de trabaja confortable iluminada por la luz natural. Un acento llamativo son las lámparas de diseño con interior dorado y la de araña de la cocina. El conjunto resulta elegante y pensado al detalle ¿qué os parece este mini espacio? ¿Y la solución de la cocina circular?

¡Feliz día a todos!



Fotografías [] Roomble
VirlovaStyle
TWITTER / FACEBOOK / BLOGLOVIN / PINTEREST / INSTAGRAM

Fuente: este post proviene de Blog de VirlovaStyle, donde puedes consultar el contenido original.
¿Vulnera este post tus derechos? Pincha aquí.
Creado:
¿Qué te ha parecido esta idea?

Esta idea proviene de:

Y estas son sus últimas ideas publicadas:

Recomendamos

Relacionado

decoración buhardilla mini loft ...

Saludos queridos amigos decoradores! En una bonita casa de piedra ubicada en un callejón, a 100 metros del mar y a 20 metros del puerto de Port-en-Bessin Huppain, un pequeño puerto pesquero en Normandía, Calvados, en el corazón de las playas del desembarco, descubrimos una buhardilla a modo de pequeño apartamento lleno de encanto y personalidad para alquilar los fines de semana. Mucho más que una ...

Diseño Industrial Diseño de Loft Estudio ...

Este estupendo mini loft de apenas ¡24 m²! que he descubierto pertenece a una vivienda, que se ha subdividido en estancias tipo estudio para alquilar en Rusia. Estos pequeños apartamentos tienen mucho estilo industrial chic con un toque masculino y elegante, aunque el proyecto interior parte de ser un espacio diseñado para una mujer joven. El proyecto lo ha realizado la interiorista TatianaShishki ...

general arquitectura casa ...

Esta semana para el reto Small&Low Cost de decoración.facilismo.com os traigo un diseño de apartamento de tan solo 32 metros cuadrados! Los creadores son Curly Studio, diseñadores y arquitectos de Kishinev, Moldavia, especializados en aprovechar al máximo los espacios reducidos, diseñando incluso sus propios muebles modulares. Podéis ver su perfil completo en behance. Un diseñador con talento es a ...

estilo nórdico inspiración deco inspiración espacios pequeños

Hoy compartimos con vosotros un apartamento escandinavo de 32 metros cuadrados que es todo un ejemplo de aprovechamiento de los espacio pequeño y una lección de estilo. Para los que nos dedicamos a esto, sin duda es un auténtico reto enfrentarse a estos espacios tan reducidos, teniendo en cuenta que hay que sacar: cocina, salón, comedor, dormitorio, terracita y hasta un pequeño rimcón de trabajo. ...

estilo nórdico inspiración deco inspiración espacios pequeños

En el título del post nos ha faltado decir: la distribución perfecta para 90m2, con el toque de rosa justo y necesario. Era demasiado largo, (y algo cursi =), pero nos parece un detalle para tener en cuenta. Muchas veces nos preguntáis cómo actualizar un espacio con la mínima inversión posible y sin cambiar radicalmente todo. Consejo: invierte en cambios sutiles de la gama cromática que fijen la a ...

Hoy en Minipisos y espacios pequeños nos adentramos en un pequeño hogar en Suecia, con tan solo 32m2 muy bien aprovechados y a los que han sabido sacarle partido en la distribución e iluminación. Este mini piso está iluminado por dos grandes ventanales y cuenta con gran altura de techo, lo que permite tener la zona de la cama elevada y disfrutar de mayor amplitud de planta. Cuenta con todo lo n ...

general casas inspiración ...

Hola a tod@s, esta semana os traigo una vivienda para todos aquellos que vivimos independizados, es pequeñita pero con un diseño ideal. Se trata de un estudio de tan solo 32m. Personalmente me encantaría vivir en este pequeño piso, tiene una buena distribución y está muy bien aprovechado. Con el color blanco como base, la decoración sencilla crea un precioso ambiente de estilo nordico con detalles ...

Apartamentos

Por fin legamos al final de la semana laboral,y además con este viernes despedimos el difícil mes de Enero. Para celebrarlo vamos a hacer un Tour home por un mini apartamento de tan solo 35m2 cuya distribución me parece sencilamente ideal. No tenéis mas que observar su diseño y estudio del espacio de concepción abierta u open plan....(de estos conceptos ya os hable en ese post) Sin tabiques que di ...

Interiorismo Dibujo Apartamento ...

La diseñadora e interiorista Natalia Akimov realiza el diseño de este interior compacto y lleno de estilo elegante y chic donde se hace hincapié en el fuerte contraste entre los tonos oscuros de color y la luz. Con un programa sencillo y sin muchas pretensiones este modesto espacio ha conseguido brillar con luz propia en su decoración. Cada elemento, pieza de mobiliario y complemento elegido tien ...

Ampliar Mini Interiorismo ...

Cada vez más vemos cómo los espacios se hacen más compactos y reducen sus dimensiones por falta de espacio o por economía. Y cada vez más vemos como los diseñadores e interioristas buscan las fórmulas para que los mini espacios ganen en confort y funcionalidad. Hoy quiero mostraros el proyecto de un interior de apenas 15 m² al que no le falta de nada y que consigue ser un ambiente versátil y práct ...