Apartamento chic lleno de contrastes

La diseñadora e interiorista Natalia Akimov realiza el diseño de este interior compacto y lleno de estilo elegante y chic donde se hace hincapié en el fuerte contraste entre los tonos oscuros de color y la luz. Con un programa sencillo y sin muchas pretensiones este modesto espacio ha conseguido brillar con luz propia en su decoración. Cada elemento, pieza de mobiliario y complemento elegido tiene como objetivo añadir personalidad a la vivienda.









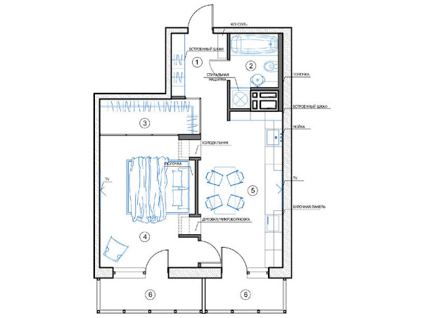
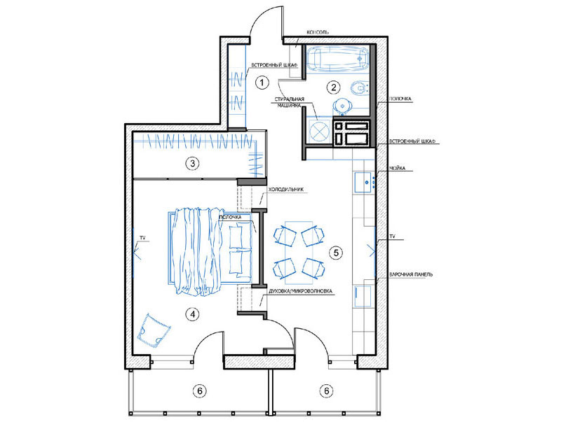
El programa de necesidades desarrolla un mini espacio en el que se accede por un hall de entrada a una cocina que hace las veces de estar y comedor; un dormitorio con vestidor y un baño con bañera completo, en tonos blanco, negro y madera. Las paredes con motivos florales de la zona de vestidor, rompen el esquema de color monocromo y se comunica, de forma brillante, con una carpintería en vidrio y metal, con el dormitorio. Textiles neutros, linos ligeros y la madera, ayudan a crear un ambiente de calidez frente al blanco más frío. La simplicidad y la armonía se dan la mano en un proyecto lleno de sentido práctico desde un punto de vista escandinavo.

















Me encanta el toque masculino de los colores con la feminidad de los materiales y el estilo. La miscelánea es equilibrada y perfecta ¿no os parece?

¡Feliz día a todos!

Fotografías [ ] freshomes


VirlovaStyle

TWITTER / FACEBOOK / BLOGLOVIN / PINTEREST / INSTAGRAM

Fuente: este post proviene de Blog de VirlovaStyle, donde puedes consultar el contenido original.
¿Vulnera este post tus derechos? Pincha aquí.
Creado:
¿Qué te ha parecido esta idea?

Esta idea proviene de:

Y estas son sus últimas ideas publicadas:

Recomendamos

Relacionado

Paleta neutra Apartamento Minimalismo ...

En el proyecto decorativo de hoy os muestro un apartamento lleno de luz en tonos de la gama pastel y empolvados en un interior minimalista. El uso de formas geométricas simples, un número minimo de piezas de mobiliario y decorativos y la paleta en color brillante basada en el juego de los semitonos, son los protagonistas de la ambientación. El propietario del proyecto quería llenar el espacio de l ...

decoración casa señorial vintage ...

Descubrir un interior como este es trasladar toda mi pasión por la decoración a un sólo ambiente. Lleno de encanto y con el sabor y distinción de los edificios de mediados del siglo XX, esta vivienda se sitúa en la parte alta de Barcelona y enamora al primer vistazo. Su máximo exponente es la elegancia y el glamour que desprende su distribución, con una sofisticación propia del siglo pasado. Muy f ...

Decolook Interior Industrial ...

Tiene un estilo 100% industrial y funciona. Todos y cada uno de los elementos tiene textura, historia y mucho look. - See more at: http://www.specadoc.com/2013/12/la-casa-de-look-industrial.html#sthash.8e3SSVs6.dpuf Este increíble interior es de estilo 100% industrial y ¡funciona!. Todos y cada uno de los elementos tienen textura, historia y mucho look y personalidad y suponen un espacio ideal ...

Dormitorios Estancias

Los dormitorios de adultos deben ser espacios de relax y de desconexión, donde podemos reservar un pequeño espacio para algunos de nuestros hobbies más relajantes. Debemos evitar acumular objetos, trastos y elementos que nos recuerden las tareas pendientes y todo en él debe invitar al descanso. Yo, que trabajo gran parte de mi tiempo en casa, no me puedo ni imaginar la sensación de asfixia que sen ...

Mini Aprovechar el espacio Design ...

En un área pequeña como es el caso del proyecto de interiorismo de hoy, es muy difícil identificar las áreas funcionales tales como el dormitorio, cocina, vestidor y cuarto de baño. En apenas 32 m² los diseñadores de este pequeño apartamento en estilo Art Deco parten de una zonificación no estándar y un poco atrevida. Se parte de un programa de necesidades para una persona soltera o pareja joven y ...

Decoración Home Tour Apartamento ...

Este coqueto apartamento lleno de luz de sólo 33m2, tiene todo su espacio y distribución planificada hasta el último detalle, para que todo encaje y que el resultado final sea un ambiente lleno de luz y armonía. En el momento de decorar este mini apartamento, se ha utilizado una paleta sencilla y minimalista, donde destaca el color blanco de base para paredes, muebles y gran parte de los complemen ...

Cocinas Pequeñas Diseño Industrial Decoración de Cocinas ...

El proyecto que os muestro hoy parte de un espacio muy pequeño para desarrollar una cocina llena de personalidad en un estilo industrial revisado y ciertos toques de decoración natural y minimalista. La miscelánea que se consigue es perfecta en la que el mobiliario y los revestimientos, quedan integrados, creando un espacio lleno de calidez y amplitud visual. La elegancia de todo el conjunto se co ...

Vintage Decoración en Blanco Deco ...

Un estilo orgánico y de tipo "cottage" en una vivienda de Tampa ( Florida ) donde la miscelánea de contrastes es la clave de la decoración. Sus propietarios Shona y Shaun Carcary esperaron 17 años - hasta que sus dos hijas fueron a la universidad - para finalmente comprar este casa de campo en Bayshore, Tampa ( Florida ), a pocos pasos de la bahía. Nativos de Sudáfrica, los Carcarys f ...

decoración decor vintage ...

Hoy quiero detenerme en este pequeño apartamento de apenas 57 m², lleno de contrastes donde se puede ver lo bien aprovechado que está el espacio, y cómo una decoracion de corte industrial-vintage ayuda a dar la sensación de amplitud tanto en colores como el formas. Este singular mini-loft parisino contiene toques chic que le confieren mucho estilo y personalidad. Marcado por el eclecticismo ...

casa pequeña decoración francesa decoración casa pequeña ...

Cerramos semana con un apartamento pequeño, de un solo dormitorio, pero con un encanto... Reconozco que el flechazo surgió con la nevera y la cocina. Una mezcla perfecta de estilo clásico, nórdico y elegancia francesa. Luego comencé a ver las fotos con más detalle y se produjo la magia... Me quiero mudar mañana mismo a este espacio. Aunque todos los muebles son bonitos y están perfectamente elegi ...