Un piso con mucho color!



Int2Architecture se trata de un equipo joven formado por arquitectos, diseñadores, artistas, fotógrafos y filósofos. 
Disfruto mucho viendo los proyectos de este estudio,trabajan muy bien. La mezcla de tan 
explosiva que hacen.  
Unos diseños que se basan en la madera, el blanco y los toques de color
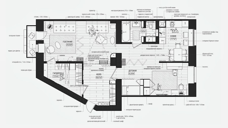
Este es el diseño de una vivienda de 83 m2 en Moscú, se trata de un espacio muy luminoso, con el objetivo que fuera una espacio abierto, ayudando a la funcionalidad de este espacio, transformando el espacio a través de los muros y los biombos. 













No os podéis perder su página web, disfrutareis con ella! El inconveniente que le veo es que está en ruso...

via: http://int2architecture.ru/

Más adelante os iré poniendo más proyectos de este estudio, sus interiores no dejan indiferente a nadie!

Un abrazo,

paula

espaizero

Fuente: este post proviene de Blog de espaizero, donde puedes consultar el contenido original.
¿Vulnera este post tus derechos? Pincha aquí.
Modificado:
¿Qué te ha parecido esta idea?

Esta idea proviene de:

Y estas son sus últimas ideas publicadas:

Lo sé, lo sé...llevo mucho tiempo sin dar señales de vida, he estado trabajando mucho estos últimos meses y no tenia tiempo para nada casi, pero ahora intentaré poco a poco ir poniéndome al día con el ...

Situado en Sanlitun, Beijing, y con un diseño (un tanto peculiar) de DarielStudio , nos encontramos con este impresionante àtico de 1500metros cuadrados que cuenta con una extraordinaria decoración, ...

Holaaa!! Después de tanto tiempo sin poder trabajar en el blog, por fín lo he conseguido, lo echaba de menos ya!! Ha sido un largo mes trabajando muchísimo en varios proyectos, largas horas sentada en ...

Buenas tardes :)!! Villa Solaire es el resultado de la interacción entre la arquitectura tradicional y contemporánea. La villa está marcada de manera uniforme por una atención al detalle que se manif ...

Recomendamos

Relacionado

general 45m2 45metros cuadrados ...

"El pot petit hi ha la bona confitura" es un refrán que se dice en Catalunya, en castellano su equivalente podría ser "perfume bueno viene en frasco pequeño". Por eso en estas próximas entradas os voy a traer una selección de grandes pisos en pocos metros cuadrados, pero que tienen un gran encanto! Hoy os traigo dos pisos 45 metros cuadrados en Moscú del estudio INT2Architectur ...

general apartamentos diseño ...

Parece mentira que en tan sólo 40 m2 se pueda alberga todo lo necesario para vivir, cocina, comedor, zona de trabajo para dos personas, sala de estar, baño y hasta una zona de lavado y una coqueta terraza! Las claves para conseguirlo sin que el espacio parezca sobrecargado han sido un excelente diseño basado en muebles a medida, con cajones y trampillas ocultas que con gran capacidad de almacenaje ...

general estilo nordico home tour ...

Esa sensación de escuchar el despertador sabiendo que es lunes (a no... que ya es viernes) es casi tan placentera, como descubrir en un intento de gula, que aun quedan onzas de chocolate en la nevera, en un momento de gusa dominguera. Pues si, y es que esta semana, le hemos dado la bienvenida al mes de Abril, ha habido mucho trabajo sobre la mesa, nuevos proyectos y colaboraciones. Termine el curs ...

general

Estos mini espacios me apasionan, el salón de este piso lo publiqué hace tiempo en uno de los especiales "salones" así que, al verlo me he propuesto publicarlo entero. Me he encontrado con un piso pequeño, pero con una estupenda distribución, lleno de colores y mezclas de estilos y sobre todo muy acogedor, por lo menos para mi gusto. Mesa de centro de metraquilato (queda mucho ...

general ebomdeco ebomtravel ...

Aquí vengo con otra de las casitas que fotografié en Gran Canaria. Como ya os dije con el piso anterior, las casas pertenecen al catálogo de pisos de alquiler de la empresa Lovely Weeks. En este caso, un piso de tres dormitorios, con una cocina fantástica y una terracita alargada en la zona de los dormitorios. Esta casa ya estaba amueblada, pero necesitaba un lavado de cara importante. Teníamos q ...

casas con vida casas que inspiran colores en decoracion

¡Este piso minimalista ha sido decorado por el estudio studiovo.! ¡Estéticamente me gusta como base ...........aunque me faltan detalles ...! algún cuadro ..........o algún objeto decorativo más.............pero la combinación de colores en las paredes me han gustado mucho............ya que es diferente de las casas blancas a las que suelo estar acostumbrada a ver de este estilo........... el ...

general interiores miniespacios

Un apartamento pensado a la manera de las famosas muñecas rusas..40 m2 situado en Moscú y diseñado por el estudio de arquitectura INT2architecture, creado por Alexander Malinin y Anastasia Shereleva, tiene las necesidades de la vida de una joven pareja con características ocultas en cada superficie. Incluye un dormitorio, un espacio de trabajo, una sala de estar, una cocina, un bar en la terraza, ...

general

Dicen que los lunes, las pilas empiezan recargadas...pero yo no...yo me recargo el Viernes!! Yupi yupi yeah!! Sera lo mejor, las ganas de descansar y de colgar un poco el tiempo ajustado y de disfrutar del tiempo libre. Como no podía ser de otra forma, hoy despedimos la primera semana de Julio con un nuevo #Hometourdeco lleno de color, en el que por extraño y sorprendente que parezca...son solo 40 ...

Casas EBOMDECO Estudios y lofts

Michelle Vasconcelos es arquitecto, diseñadora, estilista y artista. Una mujer super creativa y con una capacidad asombrosa para el diseño y la vanguardia. Su casa es una combinación de elementos en el que se recoge todo su trabajo y que funciona como piso, estudio, galería y taller. Se trata de un piso diáfano en el que vive con su pareja. Un gran espacio abierto que Michelle va disponiendo según ...