Alegre e inteligente piso de 45m2

Si te ofreciera vivir en un piso de 45 m2 seguro que te lo pensarías mucho o simplemente me dirías, "uy eso es muy pequeño para mí". Pero estoy segura que después de ver estas fotos seguro que muchos me vais a responder "a este piso me mudo yo con los ojos cerrados".

Y es que aunque es de esos pisos que digo yo, que son pequeños pero matones. Con una perfecta distribución, una decoración súper alegre y con teniendo sitio para almacenaje hasta por el suelo todos vamos a caer rendidos antes sus encantos.




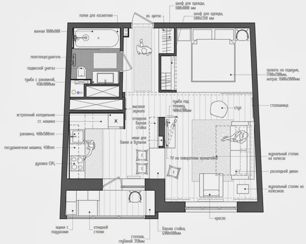
Este pequeño apartamento diseñado por int2 architecture está situado en Rusia. Con un espacio abierto en donde podemos encontrar salón, cocina y dormitorio, todo ello con unido con unos colores alegres en tonos pastel.

El problema del almacenaje que suelen tener los pisos pequeños, lo han resuelto con gran ingenio: La cama del dormitorio se eleva para así tener todo un "suelo-armario", podemos encontrar también mobiliario que tiene también la función de almacenar o la partición entre salón y cocina, creada por un pilar existente,  han conseguido hacer una pequeña barra útil y funcional para guardar cosas. 

piso 45m2 decoración homepersonalshopper


piso 45m2 decoración homepersonalshopper

piso 45m2 decoración homepersonalshopper


piso 45m2 decoración homepersonalshopper

 
piso 45m2 decoración homepersonalshopper

piso 45m2 decoración homepersonalshopper

piso 45m2 decoración homepersonalshopper


piso 45m2 decoración homepersonalshopper

piso 45m2 decoración homepersonalshopper

piso 45m2 decoración homepersonalshopper


Vía Behastudionce

¿Qué os ha parecido? 

¿Te mudarías?

Muchos besos a todos, y a por el resto de la semana que ya no queda nada!



Comenta, comparte, dale a "me gusta" y me harás muy feliz! 




Fuente: este post proviene de Home Personal Shopper, donde puedes consultar el contenido original.
¿Vulnera este post tus derechos? Pincha aquí.
Modificado:
¿Qué te ha parecido esta idea?

Esta idea proviene de:

Y estas son sus últimas ideas publicadas:

Reutilizando CINTURONES Hola amigos :) Me encanta estos post en los que damos otro uso a los objetos del día a día, me asombra muchísimo la cantidad de utilidades que tienen las cosas. Hoy he investi ...

Hola amigos :) ¿Os apetece restaurar algunos objetos de tu hogar pero no sabes cómo? Pues hoy os traigo la solución...¡Pintarlos con Spray! En navidades lo probé, y no puede ser más sencillo su uso. ...

Recomendamos

Relacionado

general inicio interiorismo ...

Última entrada en Virginia Esber: Nos ha parecido muy interesante el apartamento que te mostramos a continuación publicado en http://decoarq.com/ , con múltiples soluciones para el aprovechamiento del espacio,  y con un estilo fresco y luminoso. pequeño apartamento decorad0 y funcional Cuando nos referimos a arquitectura y decoración, el tamaño no siempre está reñido con la funcionalidad. Puedes ...

general espacios que nos inspiran inspiración ...

Ya sabéis que de vez en cuando nos gusta enseñaros las casas que encontramos por ahí y que por algún motivo nos resultan inspiradoras o bonitas. Hoy tenemos un piso de claro estilo nórdico pero con una paleta cromática muy sobria y, por tanto, masculina. Los tonos negros y grises y los materiales con la madera acaban de dar el toque al conjunto. Esta casa se encuentra en Varsovia; vamos a ver todo ...

general black white blanco ...

El gris puede ser el color mas camaleónico que existe, su capacidad de adaptación a todos los estilos y su flexibilidad a la hora de conseguir desde el espacio mas minimalista al mas cálido lo convierten en un color indispensable a la hora de decorar. El piso de hoy es un claro ejemplo de ello, entre piezas de diseño, papeles florales, texturas como la lana y mobiliario de línea mas clásica, el gr ...

decoración casas pequeñas salones pequeños ...
UN APARTAMENTO DE 45M2 MUY BIEN PLANIFICADO

Navegando encontré esta joyita, piso para solter@ o pareja y rodeado de luz natural. En las fotos parece mucho mas grande pero este apartamento cuenta con tan solo 45 metros cuadrados y creerme que sé perfectamente lo complicado que es amueblar un piso así. Sin embargo aquí tenemos varías claves: El sofá como podéis ver es un 3 plazas y, para tener mas sitio han recurrido a un sencillo sillón. Las ...

Decoración decoración Ideas para decorar tu casa ...

Ideas para decorar un piso de 34m2. Ya sabes que estoy en búsqueda constante de house tour que nos puedan inspirar de alguna manera. Cuando encuentro alguno de un piso pequeño donde han conseguido que parezca más espacioso, luminoso y encima decorado con buen gusto, tengo que compartirlo por aquí. Este piso sueco con decoración nórdica tiene 34m2 y no le falta de nada. Al ser un piso tan pequeño n ...

mini apartamento 3d virtual ...

La vivienda de hoy es un mini apartamento, adorable, luminosa y llena de acentos de color. En 45 m², este apartamento diseñado por INT2 la arquitectura resulta una verdadera joya. No siempre es fácil de utilizar un espacio de un mini apartamento y crear zonas funcionales dentro de un marco de estilo particular, y que sea a la vez práctico y muy visual. Me encantan los tonos pastel en piezas d ...

un piso alegre y colorido Jueves, 3 Noviembre, 2016 - 21:48 Categoria: Happy weekend Con un día de retraso ( la mudanza a la nueva casa y organización del nuevo taller no dan tregua) aquí estoy con la casa bonita de la semana un piso alegre y colorido en Madrid que levanta el ánimo a cualquiera en este día gris y lluvioso cien por cien otoñal. Este piso construido en los años veinte ...

Espacios que nos inspiran casas decoración ...

Los que nos seguís hace tiempo ya sabéis nuestra predilección por el estilo nórdico en decoración. Hoy os enseñamos el piso que hemos encontrado en Suecia y los motivos por los que nos parece ideal. Si tuviera que pensar en cómo sería mi casa perfecta ahora mismo, la haría con las mínimas puertas posibles. Por eso, el tipo de distribución que tiene esta vivienda me parece la mejor: espacios abier ...

general blanco dormitorio ...

Buenos días, Empezamos la semana con un piso lleno de inspiración deco que, a parte de tener un estilo nórdico que nos encanta, es un claro ejemplo de cómo combinar la ya más que socorrida pareja cromática BLANCO Y NEGRO, integrando también el mobiliario de madera natural (como es el caso del comedor-salón), y otros elementos decorativos en colores diversos. Además está lleno de ideas de almacenaj ...

Apartamentos Casas espacios pequeños ...

Tengo debilidad por los espacios pequeños, por esos rincones acogedores y llenos de encanto en los que podríamos pasarnos la vida entera. Por ese motivo me encantan los mini pisos decorados hasta el más mínimo detalle, con ideas resolutivas, con tanto mimo y esmero que la escasez de metros es lo de menos. Porque hacer que todo encaje en pocos metros es todo un arte y, sin duda, tiene mucho mérito. ...