ARQ...ISLAND HOUSE



 
Esta casa frente al mar está situada en una isla en el archipiélago de Estocolmo en Suecia. Fue diseñada por  WRB Arquitectos. Arkitektstudio Widjedal Racki Bergerhoff fue fundada por Hakan Widjedal, Racki Natasha y Berghoff Philip en 2004, el mismo año en que el proyecto fue terminado.







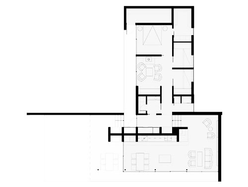
Es una casa de vacaciones, a modo de cabaña rústica pero de diseño con un cerramiento de vidrio.
Ha sido diseñado para una familia joven con hijos y construido en un área de 150 metros cuadrados, con una exuberante vegetación que incluye un árbol de roble de 500 años, pinos y afloramientos rocosos y rodeado por las aguas del océano en calma.







La casa invita a la naturaleza a través de la amplia utilización de la madera natural en suelos, paredes y techos que da conexión entre el interior y exterior, separados sólo por paredes de cristal correderas.



El módulo que está separado de la vivienda junto al muelle alberga una sauna, típica en los países nórdicos.






Fuente: este post proviene de Blog de GOGO, donde puedes consultar el contenido original.
¿Vulnera este post tus derechos? Pincha aquí.
Creado:
¿Qué te ha parecido esta idea?

Esta idea proviene de:

Y estas son sus últimas ideas publicadas:

Impresionante ejemplo de arquitectura moderna la que he encontrado en el nº 15 de la Revista Formas de Proyectar: lo firma Fran Silvestre Arquitectos. El lugar es de quitar el hipo... Y esta foto (por ...

Etiquetas: general

Recomendamos

Relacionado

Casas Casas de verano Exotico ...

Te presento a "Villa Mandarina", este es el nombre que escogieron sus propietarios para esta preciosa villa muy cerquita de la playa, y esa cercanía es la que han reflejado en el interior de esta villa. ¿Te acuerdas de esta casa de estilo marroquí que también predominaba el blanco junto con el negro? Si no la recuerdas échale un vistazo te gustará muchísimo. En villa mandarina predomina ...

decoración decor design ...

Hoy me resisto a dejar escapar el verano, y no por el sol ni el calor agobiante, sino por estas bellas casas estivales que me llenan de inspiración. Frescas, llenas de encanto y con mucha energía, nos trasladamos a esta bella construcción situada al borde del mar, donde el interior y el exterior se confunden y entremezclan, creando una proyección de la naturaleza llena de contrastes. Una especie d ...

Interiores Casas Decoración ...

Hoy quiero inspirarte visitando una vivienda de 75m2 distribuida en tres alturas. La vivienda, es una segunda residencia ubicada cerca del mar. Sus propietarios decidieron reformarla para crear unos interiores más prácticos y funcionales. En el momento de reformarla, decidieron quitar la mayoría de las paredes para así crear unos espacios más diáfanos; y fue, cuando viendo el potencial que la vivi ...

Deco bañera bañera hamaca ...

Para diseñar un baño tipo spa, primero tenemos que tener en cuenta si es de caracter privativo, las necesidades del usuario y las zonas que debe incluir. Por ejemplo: 1. Zona de cabina de inodoro, cerrada, con bidet (opcional). 2. Plato de ducha, amplio y con acceso a la luz natural. 3. Zona de secado. 4. Zona de almacenamiento de ropa de baño. 5. Zona de lavabos (dos lavabos o lavamanos), o un la ...

Colores Estilo ecléctico Estilo mediterraneo ...

Quizás la mayoría de nosotros cuando pensamos en un loft la imagen recurrente que nos viene a la cabeza es una vivienda neoyorquina con paredes de ladrillo visto, ventanas industriales y mobiliario con cierto aire industrial. Pero para quitarnos estereotipos traigo este loft situado en la isla Balear de Palma de Mallorca con un estilo dulce y romántico, colores alegres que van desde el rosa cuarzo ...

Clásico Decoración Diseño ...

Hoy para nuestra sección de iconos del diseño de Septiembre, os traigo la original Hill House Chair, también conocida popularmente como la silla Mackintosh. Actualmente distribuida por firma de diseño Cassina, quienes la fabrican y distribuyen desde 1973. La silla Hill House fue diseñada en 1902 por el arquitecto Charles Rennie Mackintosh para el dormitorio de la Hill House de Helenburgh, cerca de ...

Damero Interior Colores Oscuros ...

El uso audaz del color gris en las paredes, en contraste con las cálidas alfombras decorativas y el tono natural de las plantas, todo ello unido a la adición por los muebles y elementos de diseño vintage, hacen de estos 74 m² de apartamento en Estocolmo, pequeños reductos de confort y calidez. No es sólo la mirada y el toque escandinavo relajado en los elementos de decoración, es el ambiente propi ...

general lugares rústico ...

Cuando pensamos en destinos para las vacaciones de verano es raro que no se nos pasen por la cabeza por lo menos por un momento las islas griegas. Sólo de pensar en Grecia se viene a la cabeza ese mar azul turquesa de aguas cristalinas. Esas casas con paredes de formas sugerentes encaladas hasta deslumbrar y es que está claro que es un destino más que apetecible en esta época. La casa que vamos a ...

Casas Cocinas Comedores ...

¡Buenos días! Hoy os muestro un house tour de una casa de pueblo rehabilitada. A esta casa han sabido aportarle la modernidad del siglo XXI y conservar el sabor de antaño. Fue un antiguo granero construido en el año 1900. Tras su rehabilitación conservando la fachada de la casa, paredes y vigas para así conservar el estilo rustico original , todo congenia con ese aire moderno que le dan a la hora ...