[Decotips] Claves para un vestidor práctico y asequible a cada estilo de vida

El vestidor de una vivienda debe ser reflejo de tu estilo y forma de vida y no tiene por qué ser complicado diseñarlo. Y esté situado en el dormitorio, a la entrada de un baño, en una estancia independiente o incluso en una zona de paso, estos rincones de almacenamiento de ropa resultan muy prácticos si están bien planificados. Es cierto que la mayoría de las casas hoy en día, no cuentan con un gran espacio de vestidor, pero si consigues reducir el número de puertas y usas más barras que cajones, puedes tener el vestidor de tus sueños por un precio muy asequible. Por eso el espacio importa y mucho, con lo cual lo primero de todo es buscar la mejor distribución dependiendo del que tengamos disponible. Piensa en materiales económicos y bonitos, y no recurras a elementos de excesivo "diseño". Aunque no te lo creas, el espacio que necesitas para realizar un vestidor que funcione puede ser de tan sólo ¡3 ó 4 m²!. 








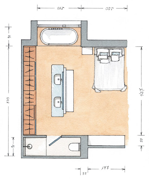
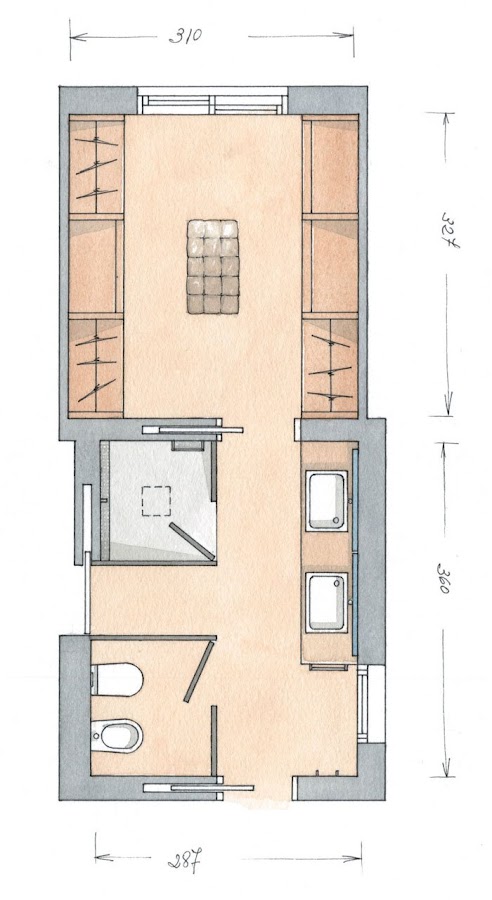
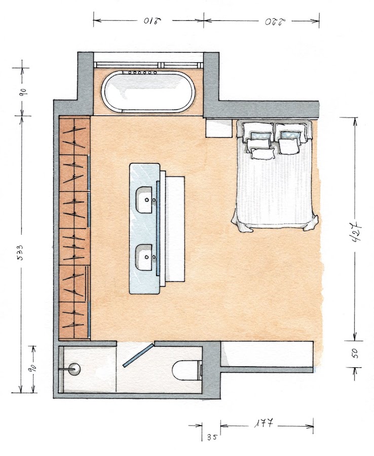
Si buscas que refleje tu estilo e imagen es básico que se adapte a la ropa que dispones. ¿Cómo distribuir el interior de un vestidor dependiendo de los metros de los que disponemos?. En espacios con una distribución rectangular o cuadrada, lo mejor es organizarlo en paralelo o en forma de -L- para aprovechar el ángulo de la pared. Si el espacio es excesivamente pequeño, distribuye los armarios en línea; si es muy grande realiza una distribución en forma de -U- para aprovechar todo el perímetro de la estancia. Los vestidores diáfanos, sin apenas costados, ni divisiones, tienen una gran capacidad de almacenaje. Las puertas correderas permiten instalar un armario en lugares con menos espacio libre, aunque el acceso al interior se limita un poco. Las abatibles tienen la ventaja de que puedes acceder a toda la ropa fácilmente, aunque necesitas disponer de al menos un metro de espacio libre frente al armario para que sea cómodo.
















Revisa la distribución del dormitorio para ver si puedes ganar espacio para el vestidor. A veces, basta con desplazar un poco la cama para ganar centímetros. Conviene revisar la ropa y los complementos y todo aquello que lleves varias temporadas sin usar, regálalo o dónalo. Mide el largo de la ropa que tienes y el espacio actual que ocupan las prendas para saber a qué tienes que dar preferencia, si a barras para colgar la ropa en perchas o a estantes y cajones. Los armarios suelen tener una profundidad estándar de 55 a 70 cm, aunque lo más cómodo es que tengan al menos 60 cm de espacio interior, para que las piezas más grandes puedan colgar de las perchas sin problema. 








Si quieres reducir el presupuesto prescinde de las puertas de tu vestidor, pues ya sean en melamina o DM el precio se dispara del 20 hasta el 50%. Además, no poner puertas facilita la circulación y genera sensación de amplitud, aunque es IMPRESCINDIBLE mantener el interior ordenado. Pero si tienes puertas, para integrarlo y crear sensación de amplitud visual y ligereza, píntalas del mismo tono que la pared. Lo ideal es contar con una luz lo más parecida a la natural para apreciar bien los colores y lámparas de luz cálida para iluminar bien los estantes y vestirte de noche.












¿Cómo distribuirías tu espacio de vestidor?

¡Feliz día a todos!

 

Fotografïas []  ElMueble, Micasa, Pinterest
 
VirlovaStyle

TWITTER / FACEBOOK / BLOGLOVIN / PINTEREST / INSTAGRAM

Fuente: este post proviene de Blog de VirlovaStyle, donde puedes consultar el contenido original.
¿Vulnera este post tus derechos? Pincha aquí.
Creado:
¿Qué te ha parecido esta idea?

Esta idea proviene de:

Y estas son sus últimas ideas publicadas:

Recomendamos

Relacionado

general vestidor trucos decorativos ...

Distribuir el cuarto de baño en el dormitorio es casi siempre un acierto, y si el vestidor lo incorporamos al mismo, el resultado es práctico y versátil. La zona de descanso, el vestidor y baño comparten cada vez más en los diseños y decoraciones de viviendas un único espacio, mediante soluciones decorativas y estructurales con las que se busca funcionalidad. Integrar el baño con el vestidor es ...

DIY interiorismo low cost ...

Uno de los sueños de muchos es tener un vestidor amplio, ordenado y atractivo. Si es tu caso, hoy te contamos cómo puedes crear tu propio vestidor totalmente DIY con un presupuesto muy reducido. Es frecuente en muchas casas la inexistencia de los armarios empotrados, de ahí muchas veces surge la necesidad de destinar una pequeña habitación de la vivienda a vestidor. Otras veces, simplemente, quer ...

Decotips Armario Diseño ...

¿Qué chica no ha soñado con tener el vestidor de sus sueños donde poder organizar toda la ropa y zapatos?. A veces no contamos con los metros adecuados, pero si eres de las que lo desean, toma buena nota de estos tips. Es importante tener siempre todo ordenado y encontrar lo que buscas a la primera. Estudiar bien la superficie de que disponemos y optimizar la superficie de la estancia, es la mejor ...

armario vestidor decoración dormitorio ...
Tener un vestidor y no morir en el intento

Cuando analicé que el nuevo piso no tenía ningún armario y, me di cuenta todo lo que necesitaba, por pocas me da un "patatús".... mi chico dijo... NO TE PREOCUPES TENDRÁS UN VESTIDOR y en ese momento, te imaginas ese gran cuarto lleno de zapatos... pero no, te despiertas del sueño y te das cuenta que ni el espacio, ni el presupuesto te permite hacer gritar tal protagonista del anuncio de ...

Uncategorized design disak ...

¿Quién no ha soñado con tener un vestidor en su dormitorio? Este suele ser un deseo habitual entre el sector femenino y en esta entrada del blog de Disak Studio te damos las claves para conseguirlo. Es muy sencillo, ¡quédate con nosotros en las próximas líneas y sal de dudas! Es cierto que, quizá, no todo el mundo disponga de los metros cuadrados suficientes para habilitarlos como vestidor. Pero, ...

general [decotips] consejos ...

Tener pocos metros en el dormitorio a veces es un problema. Pero con ingenio y buenas ideas decorativas hoy descubrirás cómo aprovechar el espacio y ganar confort y calidez. Toma buena nota de estos tips decorativos donde descubrirás las claves para saber usar el color y hacer que el espacio crezca ópticamente, o qué muebles serán los más ligeros y decorativos, o simplemente qué puedo hacer si ...

consejos ideas para la casa ikea ...

Cuando nos vinimos a vivir al piso mi marido y yo teníamos muy claro que queríamos tener un vestidor, ya que además el dormitorio principal no era demasiado grande, así que destinamos una de las habitaciones a vestidor. Lo compramos en Ikea, con módulos color abedul, un espejo de pie, un puf en beige, alfombra negra y una pequeña cómoda. Queda muy bonito aunque al no tener puertas hay que ser muy ...

general diy hazlo tu mismo ...

Mucha gente me pregunta porque siempre me gusta el LOW COST, a parte de el ahorro que evidentemente es un punto muy a favor, me gusta la creatividad que se pone en cada proyecto, porque las cosas que son bonitas son bonitas sean del estilo que sean pero si además conseguimos un resultado estupendo con una inversión mínima no hay nadie aquí que se resista. ¿o no? Hoy os traigo una forma sencilla, b ...

consejos decorar vestidor

Todos soñamos con tener un gran vestidor en casa como el de Carrie Bradshaw (Sexo en Nueva York), hoy vamos a analizarlos detalladamente. Distribuciones más comunes: Forma de pasillo Forma de L Forma de U En todos los casos la fórmula es la misma, si en el vestidor hay dos puertas ( una de entrada y otra de salida) lo mejor es colocar puertas frontales en el armario, de esta manera queda un e ...

Deco escuela de decoración

¿Has soñado alguna vez con un vestidor de película? Yo sí, lo reconozco. Toda la ropa perfectamente ordenada, todos tus complementos en su sitio… Porque todos los sueños pueden hacerse realidad, he decidido hablaros de cómo crear un vestidor. ¿Os imagináis? Toda tu ropa organizada en un montón de estantes y perchas en un vestidor situado entre tu dormitorio y tu baño… ¿A ti también te ...