Idea de Plano para Descargar Gratis 4 Dormitorios 194m2

El diseño de esta casa es muy moderno para lo que se esta acostumbrado a ver, también es que las calidades que ofrece este hogar superan la mayoría de materiales utilizados en otros. Esta casa tiene 194 metros cuadrados habitables. La imagen mostrada a continuación es la fachada trasera, es decir, la enorme cristalera ofrece vistas al exterior sin que nadie pueda observar a los inquilinos.

fachada con ventanal para vistas


La fachada que ofrece esta construcción es realmente elegante, utilizando una pared básica imitando a piedra, y por los lateras pintado de un blanco liso. La casa consta de 4 dormitorios divididos entre dos plantas.

Distribución del espacio, croquis

El acceso a la vivienda frontal se encuentra junto al garaje, lo mostrado en la imagen de portada es la parte trasera del hogar. El garaje tiene espacio para dos vehículos (32,9 m2), y este consta de una pequeña habitación para poder tener instalado aparato mecánico, ya sea para placas solares o cualquier otro tipo de herramienta.

Justo al entrar a la casa nos encontramos en el vestíbulo con un pequeño armario para depositar el paraguas, mochilas, abrigos… Y justo enfrente del vestíbulo se encuentra las escaleras de acceso al segundo piso. En esta planta nos encontramos la cocina abierta pero separada del comedor por una gran barra americana.

El dormitorio de esta planta es un dormitorio de matrimonio, con su propio cuarto de baño y vestidor.

plano de la primera planta


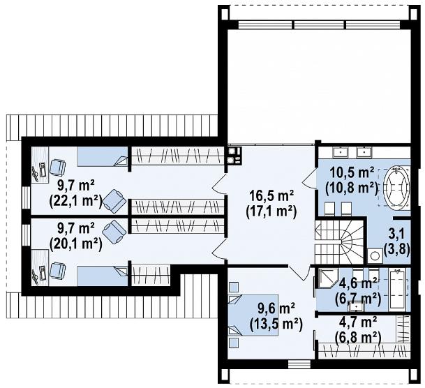
Subiendo a la siguiente planta, llegamos a un espacio compartido para acceder al resto de dormitorios y al cuarto de baño de esta planta/ lavandería. En esta planta los dos dormitorios individuales son prácticamente igual, solo que uno de ellos tiene unos metros cuadrados de menos.

Si quieres ver más ideas de casas de dos plantas con buenas vistas te recomendamos que visites el plano de la casa del campo en el lago.

plano de la segunda planta


El dormitorio principal de esta planta, se puede considerar mejor distribuido ya que para acceder al vestidor no es necesario pasar por el cuarto de baño, como en el dormitorio de la planta baja. También este dormitorio es más grande.
Algunas familias con dos plantas, deciden tener 2 dormitorios principal o de matrimonio, uno en cada planta. Al principio el de la planta baja es de invitados, y con los años la pareja del hogar se traslada al de la planta baja para evitar tener que estar subiendo y bajando escaleras con la edad.

Descargar Planos de la Casa gratis en PDF

Puedes descargar nuestro plano de forma gratuita desde el enlace de abajo. Tendrás el plano de las dos plantas en formato PDF, la descarga es gratuita.



Fuente: este post proviene de Planos de casas gratis, donde puedes consultar el contenido original.
¿Vulnera este post tus derechos? Pincha aquí.
Creado:
¿Qué te ha parecido esta idea?

Esta idea proviene de:

Y estas son sus últimas ideas publicadas:

Recomendamos

Relacionado

Dos Plantas Modernas Tres Habitaciones ...

La casa es una impresionante estructura de dos plantas, con un diseño moderno y minimalista que destaca por su elegancia y originalidad. El techo, de un llamativo color gris oscuro, está inclinado a un agua, creando un efecto visual interesante y atractivo. Este tipo de techo no solo aporta una estética contemporánea, sino que también permite un mejor drenaje de agua en días lluviosos. Las parede ...

Cuatro Habitaciones dos Plantas Dos Plantas ...

En esta ocasión vemos una casa de tres plantas reales, pero dos disponible para la vida y la tercera y opcional es para ser utilizada como terraza. El espacio habitable de la vivienda es de 161 metros cuadrados. El estilo de la fachada es novedoso y además le da un aire muy fresco por la utilización de plantas y pequeños arbustos, totalmente compatible para ser utilizados en la ciudad. Plano con ...

Sencillas 148m2 4 dormitorios ...

Este diseño de casa permite aparcar dos coches bajo una cubierta creada por la propia casa sin estropear el diseño de la fachada. La casa consta de dos plantas y su diseño exterior es moderno. La superficie útil total es de 147 metros cuadrados, construidos en un terreno 8×10. Plano con todas las medidas En la planta baja de esta casa se encuentra la zona de vida, ya que esta la cocina, come ...

de Campo de Madera Tres Habitaciones ...

Esta preciosa casa de madera cuenta con 193 metros cuadrados habitables tanto su fachada como estructura interna es de madera. La inclinación de su techo es de 35º y sus dimensiones son 10,3 m x 12,6 m. Su construcción se puede realizar con atornillamiento en cimentación. Para la construcción de esta casa de madera se ha utilizado leños de doble capa de aislamiento fabricados con aislantes natura ...

Esta hermosa vivienda se trata de una casa tradicional típica de zonas rurales, pero que deja atrás a muchas casas modernas, gracias a su segunda planta con el balcón que da a la fachada principal hace que esta casa sea vistosa y llamativa. Esta casa consta de 2 plantas, con un total de 95 metros cuadrados habitables. La casa al completo esta construida en madera, sobre una base de hormigón para ...

Dos Habitaciones Pequeña Sencillas ...

El exterior de esta vivienda es muy llamativo por su convencional de piedra gris, con madera tratada y de color blanco, junto a los grandes ventanales que ofrece. Esta casa consta de 100m2 habitables, tiene dos dormitorios, y además con opción a tener un sótano (no incluido en los planos). Resumen del hogar: Dormitorios: 2 Baños: 1 Plazas de Garaje: 0 Plantas: 1 Si te interesa este tipo de planos ...

Cuatro Dormitorios Cuatro Habitaciones dos Plantas ...

En esta ocasión hemos traído un plano de casa que ya ha sido llevado a la realidad y construido. Este plano consta de 176 metros cuadrados, repartidos en 4 dormitorios, 2 cuartos de baños completo y un wc, cocina, comedor, salón y garaje. La planta primera tiene 128 metros cuadrados y la segunda planta tiene 48 metros cuadrados. Resumen del hogar: Dormitorios: 4 Baños: 3 Plazas de Garaje: 2 Plant ...

cuatro dormitorios cuatro habitaciones de madera ...

Esta magnifica casa a sido construida en una parcela de 700 m2, la superficie útil de la vivienda son de 176 metros cuadrados que se encuentra dividida en 4 dormitorios. La casa tiene aspecto de cabaña moderna, ya que se ha conservado la parte superior de la casa en maderas vista, y la parte inferior ha sido levantada sobre bloques. El techo de la vivienda es a dos aguas, con un ángulo de 30º ...

de Campo dos plantas Dos Plantas ...

Esta magnifica casa ha sido un proyecto elaborado para una familia que se va a ir a vivir a una zona rural, por lo que el diseño de esta casa de campo tiene todo lo necesario para vivir en el campo. La casa a pesar de ser una casa de campo ha guardado en la fachada toques de una casa moderna como las barandillas del balcon en aluminio. Datos de la casa Área utilizable:198,95 m² Habitaciones (sin ...

de Madera Dos Plantas Sencillas ...

Los planos de casas de 2 pisos y de 3 dormitorios suelen ser de los más populares y más aun si son económicas, y por eso en este caso hemos decidido publicar una casa de esas características y con todas sus medidas. Fachada de casa de Madera/ Arquitectos: Casasdemaderadaype Resumen del hogar: Dormitorios: 3 Baños: 2 Plazas de Garaje: 0 Plantas: 2 Este hogar de madera tiene un porche o terraza bast ...