La reforma de 95m2 en Londres.

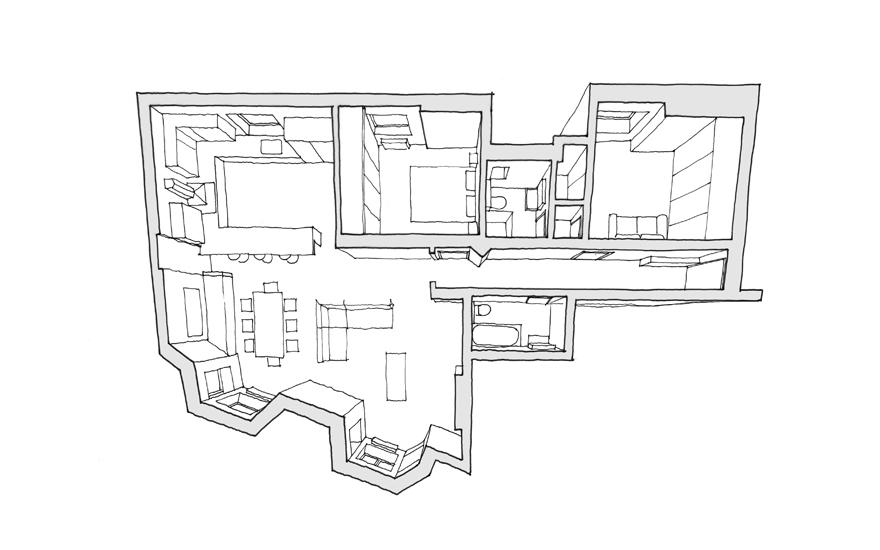
Un piso de 95m2 reformado por el gabinete de arquitectura Rise Design Studio. Este amplio piso está situado en West Hampstead…era triste y oscuro, el objetivo ha sido transformarlo en un espacio lleno de luz.

Varias paredes se eliminaron dando paso aun salón-comedor espacioso. El suelo se unificó poniendo un parqué de roble envejecido. Lo que más llama la atención,es su cocina… una de las zonas más importantes de nuestra casa, un estilo… Intemporal, en el que el blanco nunca pasa de moda, no cansa…

01


Está distribuida en forma de U, han usado una encimera de mármol del mismo color, un material con mucha tendencia este año. Los armarios bajos llevan tiradores integrados en las mismas puertas, lo que aumenta la sensación de ligereza en este espacio y confiere una estética más uniforme. Lo único que destaca de este conjunto global es el suelo con baldosas hidráulicas y las lámparas de vidrio de estilo vintage.

02


03


04


05


06


07


08


10


11


12


13


17


18


19


Fuente: este post proviene de InterioresChic, donde puedes consultar el contenido original.
¿Vulnera este post tus derechos? Pincha aquí.
Creado:
¿Qué te ha parecido esta idea?

Esta idea proviene de:

Y estas son sus últimas ideas publicadas:

Etiquetas: Interiores

Recomendamos

Relacionado

Decoración contemporanea Loft Hogar ...

Hoy nos vamos hasta West Hampstead, en la zona noreste de Londres para visitar un maravilloso piso de 95m2, reformado por el gabinete de arquitectura Rise Design Studio. Un amplio piso, que en origen era triste y oscuro, así que el objetivo principal era transformarlo para convertirlo en un espacio lleno de luz. Para ello derribaron varios tabiques creando un salón-comedor muy espacioso, en el que ...

Ambientes e Interiorismo casas Estilos ...

Ayer estuve en la visita de una obra que estamos realizando en el Barrio de Salamanca. Para los que conocéis Madrid sabéis cómo son muchas de las casas de este privilegiado barrio, techos de más de tres metros, buenas carpinterías de madera, suelos de parqué en espiga,… un sin fin de bondades que pocas viviendas ofrecen en otros barrios de la capital. Siempre soñé con tener un piso de estas ...

Interior Recycling Vintage ...

 Con ideas, proyectos y nuevas expectativas que espero vean la luz. Hoy quiero mostraros un espacio que cuenta con unas vistas espectaculares a la ciudad de Barcelona. Este ático reformado y decorado con materiales recuperados, se convierte en un refugio cosmopolita para sus dueños. La casa está situada en el centro de la ciudad con vistas a los tejados del Barrio Gótico, su centro histórico. El á ...

Deco Decoración Rústica Diseño de Loft ...

Este espectacular loft reformado de 100 m² se ubica en el primer piso sin ascensor de un lujoso condominio en la ciudad de Lyon, donde los diseñador de interiores transformaron su estado inicial en un lugar que combina perfectamente el encanto y la comodidad. En un precioso estilo rústico moderno con acentos industriales, la decoración es su punto fuerte: todo su diseño se realiza bajo un maravill ...

Decoración Vivienda económico ...

Tips para una reforma integral con la finalidad de vender tu piso Uno de los principales tips para una reforma integral, podemos encontrarlo en el término inglés home staging. Hace referencia a una estrategia muy utilizada por agentes inmobiliarios y público en general cuando intentan poner a la venta un piso o una casa. Se trata de hacer una reforma integral para preparar un inmueble para su vent ...

Blanco CASAS CON ENCANTO Decoracion chic ...

Hoy, en casas con encanto, reforma fuera tabiques de un piso en Barcelona para una familia italiana que te va a asombrar, seguro… Viendo los planos de este piso en el ensanche barcelonés nunca hubiera pensado que pudiera tener tantas posibilidades. Pero los dos arquitectos italianos instalados en Barcelona que forman parte del estudio CaSA lo tuvieron muy claro: el máximo de tabiques fuera ...

Deco Inspiración Baños ...

Una de las estancias de la vivienda que más suele reformarse es el cuarto de baño. Además de ser una de las zonas que más acusa el paso del tiempo, puede restar o añadir sensación de antiguedad a la vivienda, lo cual es importante si estamos pensando en destinar nuestra vivienda al alquiler o, incluso, si buscamos un piso para alquilar. Hoy queremos dar un repaso por las principales tendencias en ...

inspiración cocina inspiración comedor inspiración salón ...

Hoy os traemos la estancia estrella del piso que os hemos estado enseñando en los últimos post de trabajos nuestros. Para el que acabe de aterrizar en nuestro blog, se trata de la reforma de un piso antiguo, en el centro de Valencia, en la que hemos llevado a cabo el diseño, amueblamiento y decoración hasta el más mínimo detalle (podéis ver el resto de la casa AQUÍ). REFORMA, DISEÑO INTERIOR Y ...

INTERIORISMO/DECORACIÓN arquitectura clásica damasco ...

Una gran reforma en este piso barcelonés, perteneciente a un edificio burgués de los años cuarenta, ha dado lugar a un escenario de enorme carga estética y atrevimiento en la mezcla de estilos. El salón acoge el sofá –en madera lacada y con colchonetas de terciopelo blanco–, la mesa de centro y la auxiliar de espejo son diseños de María Lladó. En la pared, entelada con damascos de Gancedo, se col ...

Cocinas Interiores

Un apartamento en Praga que se convirtió en un proyecto de bricolaje muy interesante … un piso de madera original debajo de la alfombra, pero sin poder ser rescatable… una pared de ladrillo visto…que necesitaba una fuerte dosis de renovación…y el resultado final, de todo ello… una sensación de amplitud y de concepto abierto y acogedor, con elementos industriales… ...