Paso a paso









  




Fotos vía Miss Interiors

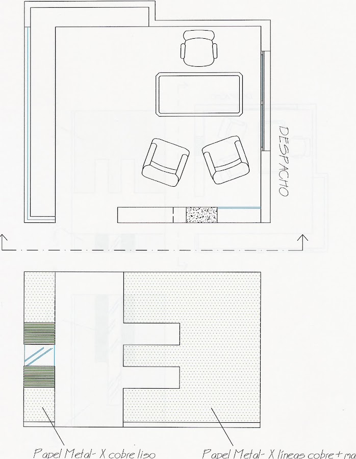
Este piso, aunque no lo parezca, tenía una distribución y unos acabados normales, es decir, el pasillo era ciego, sólo tenía una puerta que daba a un dormitorio (que el dueño utilizaba como despacho) y no tenía comunicación alguna directa con el salón-comedor. Tras la reforma el acceso al despacho es a través del salón-comedor al que le he suprimido la puerta y ampliado el hueco de entrada . Como podéis ver en los dibujos, al lado de la columna (penúltima fotografía) oculta por el papel de bandas, amplié el tabique con unos dientes de pladur que privatizan un poco más la zona del despacho y al mismo tiempo no le restan la continuidad que quería lograr.

Por último, ahora el pasillo cuenta con luz natural gracias al vídrio horizontal que se colocó abriendo el tabique y asegurando la parte superior del mismo al forjado de la vivienda.



Fuente: este post proviene de MisInterior, donde puedes consultar el contenido original.
¿Vulnera este post tus derechos? Pincha aquí.
Creado:
¿Qué te ha parecido esta idea?

Esta idea proviene de:

Y estas son sus últimas ideas publicadas:

¿Te gusta este tipo de casas? Aunque te lo pueda parecer, no es madera. Se llama Vinyl Siding y se trata de un revestimiento de PVC. Los hay disponibles en varios colores ideales e incluso en textura ...

He disfrutado mucho preparando esta entrada, pero para ser sincera, no ha sido nada fácil decantarme por una de las casas que el equipo de Westwing me propuso para esta colaboración. De todas las vivi ...

Este antiguo y amplio piso de más de 180 m/2 está situado en Östermalm, uno de los barrios más poblados de Estocolmo. Construido a finales de 1800, tras la reforma se ha convertido en un precioso apar ...

Recomendamos

Relacionado

general diseño interior mis trabajos ...

Fotos vía Miss Interiors Este piso, aunque no lo parezca, tenía una distribución y unos acabados normales, es decir, el pasillo era ciego, sólo tenía una puerta que daba a un dormitorio (que el dueño utilizaba como despacho) y no tenía comunicación alguna directa con el salón-comedor. Tras la reforma el acceso al despacho es a través del salón-comedor al que le he suprimido la puerta y ampliado el ...

DISEÑO DE INTERIORES

El proyecto consiste en reformar una vivienda ático, modificando la zona de día y el dormitorio y baño principal. La propuesta: Cerrar el paso hacia dormitorios en la zona de salón, aprovechando el espacio de pasillo para aumentar el baño en suite actualizándolo y ajustándolo a las nuevas necesidades. Modificar la zona de salón que en estos momentos es incomoda y poco útil para el día a día. Abri ...

DECORACIÓN NÓRDICA INTERIORES SEPARAR ESTANCIAS

Reformar una habitación italiana puede ser el comienzo de una habitación de matrimonio moderna y elegante, la creación de un espacioso vestidor, de un despacho o de un espacio de almacenamiento. Aquí te damos ideas para qué hacer con esa habitación italiana que te trae de cabeza. Bienvenida a Interiores Chic. En nuestro estudio de reformas, interiorismo y decoración online realizamos muy frecuente ...

DECORACIÓN antes y después interiorismo ...

¡Hola! dado el éxito que tuvo la foto que subí a los stories de Instagram y por petición popular, te voy  contar cómo fue la reforma del Noveno Ce. Es un post que llevaba tiempo queriendo hacer pero que nunca me ponía a ello. Así que qué mejor oportunidad que estos días de confinamiento para explicarte cómo fue mi gran proyecto personal y profesional. ANTECEDENTES Como interiorista, mi gran sueño ...

general deco-inspiración

Una vivienda con muchos detalles; Paredes de ladrillo visto, suelo con baldosas hidráulicas, láminas de Andy Warhol… Comenzamos la semana con un apartamento de esos que hacen que te mueras de envidia! Hoy en el Blog de decoración Boho Chic Style un apartamento con una decoración y una distribución perfectas y con un estilo contemporáneo lleno de detalles. Una vivienda con una distribución do ...

DECO-Inspiración

Combinar blanco y madera. Si quieres calidez en tu casa… ¡Ni lo dudes! Las semanas pasan demasiado deprisa y yo no me doy ni cuenta!!! Ya estamos a martes y soy consciente que en un abrir y cerrar de ojos estamos de vacaciones y de verdad os digo que este año son mas que merecidas!! ;) Hoy en mi Blog de decoración Boho Chic Style, os traigo un precioso apartamento donde estoy segura que os e ...

general deco-asesoría

Como distribuir un salón de paso: El nuevo Salón-Comedor de Marisol. Hace unas semanas Marisol se puso en contacto con Boho Chic Style para ver si podíamos darle ideas para distribuir su Salón-Comedor. (Si necesitáis asesoramiento, no dudéis en ver todas nuestras opciones, pincha AQUÍ) Se trata de un salón-comedor de paso, las escaleras que nos llevan a la planta superior donde están los dormitori ...

general cajas de madera despacho ...

Ya ha pasado más de un mes desde que os explicara las ideas que tenía para transformar mi buhardilla en un taller creativo. En este tiempo le he dado mil vueltas a la cabeza y, sobre todo, a las manos para conseguir un espacio que me inspirara con muy poco presupuesto. Lo primero que hice fue organizar el espacio en cuatro zonas principales: despacho, rincón junto a la ventana para hacer fotos ...

cristina pineda decoración estilo nórdico ...

Aunque normalmente los pisos que os enseño en este blog, muestras espacios diáfanos y amplios, hoy quiero enseñaros un piso más fraccionado pero donde los espacios se comunican perfectamente. No perdáis de vista el plano para poder situar cada pieza y ver su conexión con las otras. Espacio común. En el centro del piso tenemos el salón, dividido en dos zonas, la zona de estar co ...

decoración decoración cocinas hogar ...

Hace tiempo que vislumbro la posibilidad de unir mi cocina con el comedor y siempre me echo para atrás con el tema de las obras, la verdad es que lo veo un follón, pero cada vez que veo en revistas, salón, comedor y cocina en el mismo espacio, me da una envidia sana que no te puedo contar. Y es que aunque muchas personas me digan que si el olor de la cocina, que si después te resta intimidad, etc. ...