Piso de dos dormitorios con grandes ideas.



Este es el piso del arquitecto Nicholas Potts en Washington, D.C, conocido por sus proyectos elegantes, majestuosos e incluso opulentos. Sin embargo, para su propia vivienda de algo menos de 90 metros cuadrados, aunque sí podemos hablar de cierto lujo y elegancia, a mí lo que me ha conquistado es el partido que ha sabido sacar a cada uno de los espacios, dejando despejadas visualmente las zonas que quería resaltar (como la chimenea, que ha convertido en punto focal) y aprovechando aquellas otras a las que quería sacar funcionalidad, como las de paso para montar librerías.

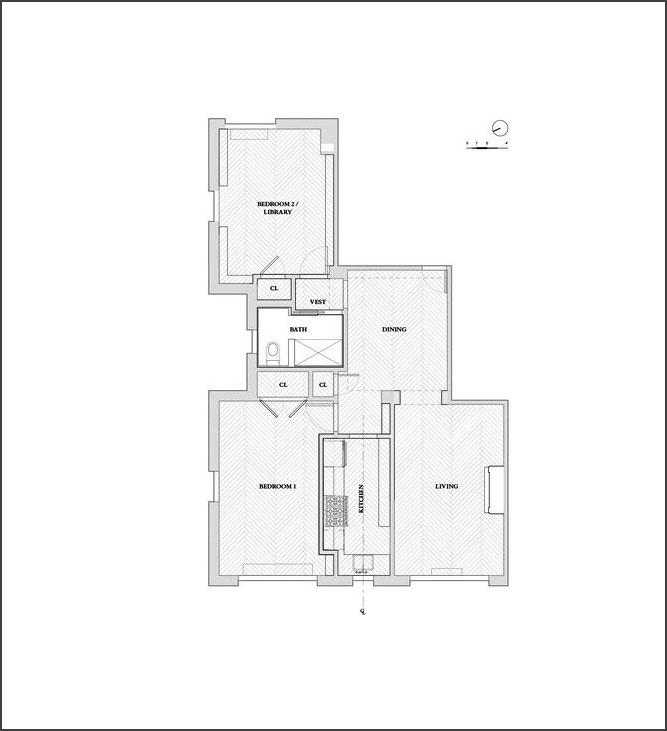
El piso es de 1920 y tenía una reforma previa que hubo que deshacer. Se habían abierto los espacios, pero con una distribución errónea que hacía parecer todo más pequeño, así que decidieron volver a retomar los orígenes devolviendo así, el carácter original de la vivienda. Pocas habitaciones y bien proporcionadas. Para acentuar ese carácter pusieron suelo de madera en forma de espiga por toda la casa, en los techos no hay recortes sino que terminan redondeados de tal forma que la vista se pierde haciendo parecer que son más altos, igualmente muchas de las puertas se remplazaron por arcos.

La cocina como veis es una estancia más, no está abierta. Al no ser muy grande y tener una sola ventana, la intención era no abigarrarla, así que se amuebló sólo la parte inferior. La superior se cubrió a media altura con un salpicadero de la marca ABC Stone, dejando el resto sencillamente pintado, lo que hace que parezca más amplia y desaparezca el ruido visual. En el centro se colocó una alfombra antigua de Frances Loom.

El cuarto de estar tiene todo lo necesario a pesar de no ser de grandes dimensiones. La chimenea se colocó como punto focal y esconde un secreto, oculta la televisión que se encuentra dentro de la repisa y sale gracias a un ascensor motorizado. De ahí que sea sólo una chimenea decorativa, si os fijáis bien en la foto, los azulejos blancos colocados en espiga que forman parte de la trasera de la chimenea están adelantados con respecto a la pared, eso es porque detrás de los mismos se encuentra el hueco que da cabida a la televisión. Si tenéis el ojo muy fino, también se aprecia en la parte superior, la rendija por donde sale el aparato electrónico. Sin duda una idea ingeniosa a la par que elegante. Para acompañar una chimenea tan especial, los clásicos del diseño hacen acto de presencia en el salón con piezas de Charlotte Perriand, Le Corbusier, o Serge Mouille, entre otros.

El segundo dormitorio se convirtió en despacho y biblioteca. La enorme cantidad de libros está inventariada como en las librerías, por temática (interiorismo, arte, historia, etc.) El reto era grande cuando llegaron a la casa, dar cabida a tal cantidad de libros no es tarea fácil así que construyeron un sistema de estanterías flotantes y redujeron el tamaño entre estantes logrando así, más espacio de almacenaje. Aunque este no es el único espacio dedicado a los libros en la casa, en la entrada se le destinó otro espacio, también en el dormitorio principal y en el pasillo.

El dormitorio principal, que es el que recibe mayor cantidad de luz natural, se permitieron pintarlo de un bonito azul grisáceo para compensar  la luminosidad del resto de la vivienda (el color es Inchyra Blue de Farrow and Ball). Al igual que las luminarias del comedor, las sutiles lámparas colgantes a los lados de la cama son de Michael Anastassiades.

El vestíbulo separa el comedor del baño, dos espacios que por lógica no deberían estar juntos. Para separarlos visualmente, al arquitecto se le ocurrió revestir la pared con un gran mural con motivos llamativos de tal manera que, al acercarte al comedor, la vista recae en él y no en el baño. El mural es de la firma Ananbo.

El baño es un resumen de la idea arquitectónica de este apartamento. No por pequeño siempre tenemos que ir al blanco, hay otros recursos que nos hacen agrandar los espacios visualmente, en este caso es el modelo Viola de mármol Calacatta en gran formato, cuyo dibujo se difumina en la pared haciendo que las esquinas se pierdan, los límites de la habitación se desdibujan y el espacio parezca mayor. Su brillo, así como los espejos, también ayudan a crear esta sensación. Aquí en el baño, es donde el arquitecto se ha quedado a gusto con la opulencia que le caracteriza :-)

¿Qué os parece el piso? Yo creo que es una maravilla llena de genialidades, el único espacio que no me va es el baño porque los revestimientos tan marcados ya sabéis que me cansan. Digo sí al Mármol Calacatta, pero con un diseño más sutil, por favor.





























Imágenes: Livingetc

Suscríbete al blog por correo electrónico

Introduce tu correo electrónico para suscribirte a este blog y recibir avisos de nuevas entradas.

Dirección de correo electrónico:

Suscribir

   

¿Vulnera este post tus derechos? Pincha aquí.
Modificado:
¿Qué te ha parecido esta idea?

Esta idea proviene de:

Y estas son sus últimas ideas publicadas:

Cómo integrar alarmas y sistemas de seguridad en el interior de una casa sin comprometer el diseño ni el estilo Hasta hace poco, instalar un sistema de seguridad en casa significaba llenar el espacio ...

El color es uno de los elementos más poderosos en la decoración del hogar. No solo define el estilo de un espacio, sino que también influye en nuestras emociones y en la percepción del ambiente. Pero, ...

Este es el piso de Álex Boisset, un viajero incansable, empresario y creador de contenido que ha recorrido el mundo en busca de olas, buen clima y experiencias únicas. Además de su pasión por el surf ...

Me ha costado volver al blog tras las Navidades lo cierto es que, a la locura de las fechas se ha sumado mucho trabajo, lo cual es bueno no me quejo. Como os dije antes de las fiestas, aunque ahora di ...

Recomendamos

Relacionado

Ambientes e Interiorismo casas Estilos ...

No importa el lugar donde vivas si consigues hacerlo tuyo, si pones tu alma ahí donde estés. Esta preciosa casa Londinense pertenece a Martina y Joe, ella, viene de un pueblo a las afueras de Venecia y aunque ambos son diseñadores gráficos, Martina consiguió desarrollar en esta ciudad su gran pasión, la cocina. Por ello esta estancia se ha convertido en el epicentro de la vivienda dotándola de tod ...

casas Firmas Inspiración ...

Parece mentira cómo sólo un elemento puede llegar a enamorar de tal manera que, lo demás, deja de tomar relevancia. Yo también hubiera sucumbido a estas puertas amarillas como le sucedió a Denise Portmans, copropietaria de la firma Merchant Modern, tanto, que decidió irse a vivir junto a su hija, al desierto de Santa Mónica. La idea de vivir en el desierto ya le rondaba la cabeza, aunque su búsque ...

Ambientes e Interiorismo Antigüedades Art-Deco ...

Dicen que cambiar el nombre a una casa da mala suerte. No sé si por eso, o porque me gustó el nombre cuando lo vi, no se lo cambié a la casa que compramos en el pueblo, que hacía referencia a la antigua propietaria, Villa Amelia. Ahora ninguno nos llamamos así, pero quise respetar sus raíces que, si bien no es una casa centenaria como la de hoy, va por el camino. Si no me equivoco tiene unos 60 añ ...

Ambientes e Interiorismo arquitectura casas ...

Nada más ver la fachada, ya sabréis qué es lo que ha llamado mi atención de esta casa, ese frente de azulejo azul que nada hace pensar que nos encontramos en Londres. El arquitecto Grant Straghan del estudio Dedraft, se inspiró en las obras del artista londinense David Hockney, para la rehabilitación de esta casa de 1930, utilizando tonos relajantes como los que aparecen en sus obras, de ahí el az ...

Espacios: reformas e interiorismo

En el proyecto de marzo te mostramos un piso de 70m² con una distribución bien aprovechada. En la zona común se ubican el recibidor que da paso al salón-comedor, y una cocina abierta en L. Y en la zona privada dos dormitorios, el principal con baño en suite, y otro baño más con acceso desde el pasillo distribuidor, donde situamos un armario que funciona como trastero y lavadero. ¿Quieres ver la pr ...

Ambientes e Interiorismo arquitectura casas ...

Esta semana dedicaba un post y varias stories a comedores que, en lugar de llevar sillas rodeando la mesa, en uno de los lados éstas se sustituían por un banco adosado a la pared. Una práctica muy útil cuando careces del espacio suficiente para circular cómodamente por detrás de las sillas. Para hacer el cálculo de lo que ocupan, hay que sumar unos 35 cm si las sillas están recogidas, o 50 cm si e ...

general decoración esta casa es de... ...

Hoy vemos un piso pequeño con grandes ideas que copiar que nos servirán para decorar espacios reducidos de nuestra casa. Para ser sinceros, un apartamento de 56 metros cuadrados no resulta tan pequeño en España, seguro que muchos de nosotros vivimos o hemos vivido en algún momento en lugares más reducidos, pero las soluciones de esta vivienda pueden amoldarse a la perfección a cualquiera de esos m ...

Ambientes e Interiorismo arquitectura casas ...

Sólo he estado una vez en Mallorca, una isla de la que guardo grandes recuerdos, quizás sea porque fui cuando terminé la universidad de viaje de fin de curso y ya se sabe cómo son esos viajes. Desde que escribo el blog, he conocido virtualmente a mucha gente que vive allí, con algunas de esas personas hablo casi a diario a través de redes, es como si hubieran estado ahí toda la vida y sin embargo, ...

Apartamento Baño Cocina ...

Madre mía!!! Si alguna vez has soñado con una casa donde cada esquina grita estilo y elegancia, entonces prepárate para conocer el piso de Marta Ortega en Madrid. Esta vivienda, ubicada en uno de los barrios más chic de la capital, es un ejemplo perfecto de cómo fusionar el lujo clásico con detalles modernos de una manera impecable. ¿Te pica la curiosidad? ¡Vamos a explorar juntos cada detalle! Un ...

general sin categoría

Buenos días! Parece que ya va saliendo el sol, poco a poco. Por eso el post de hoy va dedicado a un piso con  toques primaverales. Predomina el blanco sobre todos pero hay algunos detalles que deberíamos de tener en cuenta muchos de nosotros cuando llega la primavera. Es interesante llenar nuestro hogar de objetos decorativos, plantas, flores, que indiquen que el invierno ha pasado, que llega la l ...