Un encantador loft de estilo industrial en Taiwan

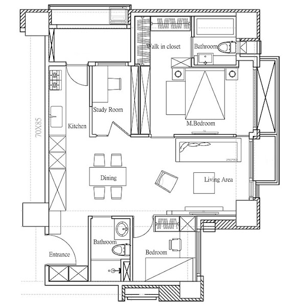
Hace mucho que no traemos por aquí una casita. Hoy queremos enseñaros un precioso loft industrial que hemos encontrado en IdesingArch y que nos ha enamorado. Ha sido diseñado por el estudio de arquitectura Sigar Studio y, aunque este estilo de vivienda no es la que esperaríamos encontrar allí, el loft se encuentra situado en New Taipei City, en Taiwan.




Os dejamos que disfrutéis de las imágenes, en especial de su maravillosa cocina.








































¿Os gusta este tipo de loft?

¡Feliz fin de semana!

Fuente: este post proviene de Mariposas Blancas, donde puedes consultar el contenido original.
¿Vulnera este post tus derechos? Pincha aquí.
Creado:
¿Qué te ha parecido esta idea?

Esta idea proviene de:

Y estas son sus últimas ideas publicadas:

Hoy nos inspiraremos para darle un toque diferente a nuestra casa al decorar con baúles, Los baúles o maletas es una excelente elección como elemento de decoración de interiores, además de poder guard ...

Saludos queridos amigos decoradores! Tal vez nunca se los conté pero, las puertas antiguas siempre me han fascinado, pienso en los tesoros que tras ella se encuentran o en las cosas que se habrán vivi ...

Buenos días!! Wasi Sabi, encuentra la belleza en las imperfecciones, tendencia donde toma protagonismo lo imperfecto y antiguo. Reciclar, restaurar y dar un segundo uso a ese mueble, me parece una bue ...

Buenos días a todos!! Os queremos enseñar un piso impresionante en Suecia, con bonitos detalles como las puertas de corredera, suelos victorianos, altos techos, molduras y estuco en los techos, chime ...

Etiquetas: casasdecoideas

Recomendamos

Relacionado

general casas todas

Estas imágenes pertenecen a un proyecto del estudio de arquitectura Sergey Makhno. Emerland Loft es un ejemplo perfecto de estilo industrial contemporáneo. Tiene todos los elementos que representan este estilo decorativo, techos altos,espacios abiertos, paredes de ladrillo combinadas con hormigón y madera, tuberías vistas y grandes ventanales. continue reading

general deco-inspiración interiores que inspiran

Loft estilo industrial, con vigas y pilares en madera vistos. ¿Puede haber algo en la decoración que imprima más personalidad a un espacio que las vigas y pilares de madera vistos? Los espacios adquieren un potencial y un carácter que los hacen únicos. Hoy os quiero enseñar un estupendo loft estilo industrial, que nada más verlo me ha enamorado. En él se combinan 2 estilos, que últimamente parecen ...

general decoración

Este loft esta construido en un antiguo edificio de industrial de los años 20 en la ciudad de Estocolmo. Se respetaron sus robustas vigas de acero, paredes de ladrillo rustico y ventanas de parteluz, creando un estilo loft de New Yok impactante. El juego de alturas y espacios, combinado con el mobiliario de piezas de diseño y recicladas pone el broche final a este fantástico loft. Un s ...

general interiores

Un Loft Love Vintage&Industrial en Bulgaria….es la reforma que durante dos años han estado haciendo Dimitar Karanikolov y Veneta Nikolova. Después de pasar varios años viviendo en Londres, deciden volver a Bulgaria para reconstruir este edificio y hacer el diseño y acabado de sus muebles hasta convertirlo en vivienda. Realmente es un trabajo sorprendente. Como hemos visto en otras ocasiones, ...

general

El proyecto de este loft, ubicado en el barrio de Poblenou de Barcelona, parte de un espacio existente semi-industrial de principios de siglo, un rectángulo con unas dimensiones aproximadas de 18×10 metros en planta y un poco más de cuatro metros de altura. La arquitectura del proyecto surge de la firme voluntad de no compartimentar ... leer más

general viviendas loft estilo industrial

Hoy visitamos un loft en Eindhoven, Holanda, de estilo industrial. En él vive la estilista Renee Arns, y propietaria de la tienda Out of the Blue. A destacar el contraste del blanco impoluto en paredes, con el techo en basto, con sus conductos y vigas vistos. En algunas de las paredes del acceso y en la zona de la cama, también se ha querido dejar una parte de ella sin cubrir, dejando ver el hormi ...

general viviendas loft estilo industrial

Hoy visitamos un loft en Eindhoven, Holanda, de estilo industrial. En él vive la estilista Renee Arns, y propietaria de la tienda Out of the Blue. A destacar el contraste del blanco impoluto en paredes, con el techo en basto, con sus conductos y vigas vistos. En algunas de las paredes del acceso y en la zona de la cama, también se ha querido dejar una parte de ella sin cubrir, dejando ver el hormi ...

general viviendas blanco ...

Loft industrial en Amsterdam La decoración industrial es una de mis favoritas, sobre todo me gusta mezclarlo con otros estilos, como por ejemplo, el nórdico. El loft que os enseño hoy está en Amsterdam, es del arquitecto Peggy Betke y como veréis tiene un look 100% industrial. Esta situado en la planta baja de un antiguo edificio que se usaba como almacenaje de madera por lo que tuvieron que poner ...

general interiores

El Loft en concreto no se asocia generalmente con un hogar cálido y acogedor…en el post de hoy, vamos a tratar de demostrar que con las habilidades de inspiración y de decoración adecuada, pueden producirse cosas increíbles… claro que con este espacio sería imposible no conseguirlo….este loft cuenta con techos abovedados de hormigón de aproximadamente 17 metros de altura, sin emb ...

general

Daniel Lowe, es el propietario de este loft situado en Hollywood, Los Angeles, donde recientemente se pusieron los toques finales de su renovación. Es un loft muy bien diseñado, de inspiración ecléctica, industrial y con mucha luz natural, con una muy buena combinación de colores, muebles y estilos arquitectónicos. Se han combinado muy bien el uso ... leer más