Un jardín de invierno

Hoy queremos compartir con vosotros un hogar lleno de luz y color, porque hoy nuestra inspiración son ellas, las plantas. En un hogar paradisíaco de estilo victoriano que se encuentra en Boston, Massachusetts, donde viven la diseñadora de interiores Melissa Miranda y su marido Ulises, constructor de profesión, los cuales, juntos has reformado y rediseñado su propio hogar. Un guiño al diseño moderno lleno de detalles como un precioso jardín de invierno, un invernadero interior o su llamativo mobiliario inspirado en sus viajes al extranjero.

Y es que este hogar de 220m² parece estar cargado de energía con un estilo ecléctico, moderno, bohemio con un toque clásico e incluso escandinavo, una fusión bien visible en cada aspecto y detalle de la casa. Pero si hay algo que queremos destacar por encima de todo son ellas, las plantas. Las protagonistas ocupan cada espacio de este precioso con un exclusivo invernadero en el interior ideal para conseguir un clima perfecto y unos techos altos ideales para albergar las grandes plantas que vemos. Además esta casa tiene la peculiaridad de que no solo dispone de grandes ventanales que dejan pasar una gran cantidad de luz natural, sino que sus propietarios han diseñado unas ventanas en los techos por los que las plantas obtienen un plus de luminosidad extra.

Sin duda un precioso jardín de invierno que a más de un enamorado de las plantas, nos gustaría tener en nuestro hogar.

01-salones-modernos

02-decoracion-recibidores

03-mesas-de-centro

04-decoracion-vintage

05-mesas-de-comedor-ideas

06-mesas-de-comedor-ideas

07-decoracion-vintage

08-baldosas-hidraulicas

10-decoracion-dormitorios

11-decoracion-baños


12-dormitorios-juveniles

13-cocinas-modernas

14-cocinas-modernas

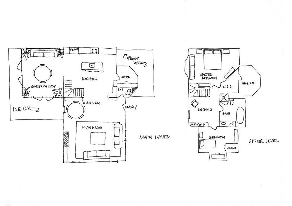
15-planos-de-casas


Fotos

Espero que os haya gustado, feliz jueves mentes creativas.
Y recuerda ¡Sé feliz y disfruta de tu casa!



y recibirás por e-mail el resumen de los post publicados cada semana

Fuente: este post proviene de Blog de ba2Proyectos, donde puedes consultar el contenido original.
¿Vulnera este post tus derechos? Pincha aquí.
Creado:
¿Qué te ha parecido esta idea?

Esta idea proviene de:

Y estas son sus últimas ideas publicadas:

Estrategias para alisar de paredes de tu hogar de forma rápida y sencilla. Este pasado mes de septiembre he podido disponer de unos días de descanso, es por ello que uno de ellos lo he dedicado al ali ...

Recomendamos

Relacionado

estilos casas de campo clasico y moderno ...

Con la llegada de la primavera tan calurosa que ha invadido Valencia este año hace que olvide los pequeños y acogedores apartamentos de estilo nórdico que tanto me gustan y me decante por casas de espacios amplios con techos de doble altura de grandes ventanales. Un viejo granero puede ser un buen lugar donde echar raíces y vivir, y si no mira lo que los propietarios de este precioso hogar han hec ...

estilos casa con jardín casas de campo ...

A los dos nos encanta el estilo escandinavo, prueba de ello son nuestros post, post que cada día con mucho ánimo y entusiasmo buscamos para vosotros, para que disfrutéis de los encantos del diseño y la decoración mediante los pisos, casas, estudios, apartamentos, o lugares encantadores que nos aportan curiosidad por lo bonitos que son. Es por ello que hoy hemos querido compartir un nuevo hogar, es ...

trucos y consejos #deco #plantas ...

La primavera es muy buena época para las plantas. A mi personalmente me encantan, en casa tengo tanto en el salón como en la terraza, y en la entrada y la cocina tengo alguna, aunque artificial. Me parece que decoran muchísimo y que le aportan al hogar un toque cálido y acogedor. Hoy os voy a enseñar algunas de las plantas que tengo por casa. Del invernadero Socker de Ikea ya os hablé en este post ...

Baños Dormitorios Deco ...

Helena, mi sobrina mayor y mi ahijada, ha reformado y decorado junto a Ángel, su pareja, su primer hogar que hoy os muestro al detalle. A ambos les encanta la decoración y se nota. De hecho yo diría que Ángel se ha implicado tanto o más que ella y eso me parece ideal. El piso es alargado lo que tiene una gran ventaja y un inconveniente. La gran ventaja es que todas las estancias tienen ventanas. ...

decoracion Diseño gallery ...

Amsterdam, un buque de pasajeros Alemán y una pareja atrevida. La combinación perfecta para crear un hogar diferente y con personalidad. Si no fuera por su ubicación y sus vistas, el interior no hace pensar que nos encontramos en una antiguo barco de pasajeros. Un diseño moderno y colorido en un espacio invadido por la luz son las características principales de este hogar. Sus dueños quisieron c ...

Clasico y moderno General Interiorismo ...

Hoy visitamos el hogar de Benedicthe Bjerke y Egor Filipenko un matrimonio que junto a su hijo de tres años, se trasladaron a este precioso hogar el cual transformaron con una gran reforma en la que eliminaron varios tabiques, consiguiendo grandes espacios interiores y donde quedan a la vista muros originales de la construcción. Sus propietarios, diseñadores de joyas y ropa, han buscado la sencill ...

Arquitectura Cristales Diferentes cerramientos ...

En esta ocasión en Ingeniería civil y arquitectura te vamos a compartir diferentes propuestas y diseños de techos que harán que tu terraza se vea sensacional. Ya que muchas personas si no es que todas las personas, nunca le tomamos la importancia que deberíamos a este detalle o elemento del diseño de nuestra casa en sí, así que es momento de que empieces a considerarlos. Veremos, por ejemplo: Flor ...

Casa de una blogger General Interiorismo ...

¡Creo que me he enamorado! Dicen que eso del amor a primera vista, no es cierto. Si sois de los que piensan lo mismo, bastará con ver este precioso hogar, para caer en un hechizo del que no podrás salir. Y es que nunca hasta el momento, había visto un hogar que despertase tanto deseo. Esta bonita y delicada casa de 120m² se encuentra en Dordrecht al sur de Holanda. Tanja ( @tanjavanhoogdalem ) jun ...

aire libre decoración ecológica decoración natural ...

Incluso a quienes les encanta vivir en la ciudad, disponer de un espacio verde y natural que traiga un poco de color a su vida es un elemento muy de agradecer. Por eso, incluir dentro del hogar un espacio dedicado a un pequeño jardín que nos ayude a encontrar un poco de relax, consiguiendo una decoración única y agradable, es la mejor manera de disfrutar de un poco de naturaleza. Los jardines urba ...

Otros estilos Estilos decorativos ideas para decorar ...

El interiorismo vegetal no es algo nuevo. Es una tendencia que durante mucho tiempo se ha utilizado en grandes espacios. Tales como oficinas o restaurantes para imprimir el toque de naturaleza que tanto nos gusta. En el hogar solíamos confinar las plantas al jardín y los jarrones eran donde lucían las flores. Pero hoy, el hogar también desborda vegetación. Y a todos nos encanta. ¿Te has sumado ya ...