Apartamento en París de 38m2

apartamento_paris_38m2_blog_ana_pla_interiorismo_decoracion_1


Los que me seguís sabéis que tengo especial predilección por el estilo industrial, el hierro, los grandes ventanales negros y el ladrillo son mi combinación preferida. Buceando en Pinterest encontré una foto de una cocina donde aparecía una de estas ventanas de hierro pero como elemento separador y me pareció una idea fantástica para separar ambientes de forma diferente y personal así que seguí el camino hasta que dí con este mini apartamento de 38m2 del diseñador de interiores Pierre Petit.

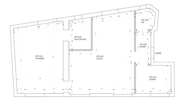
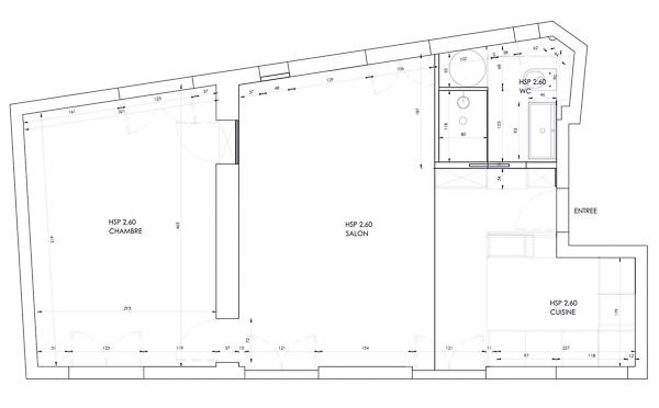
El trabajo consistía en una adecuación del espacio para aprovechar mejor los pocos metros que tiene este mini piso. Con toques nórdicos, este apartamento en Paris desprende elegancia en centímetro.

La cocina y la entrada están en el mismo espacio pero con la ventana han sabido delimitarlo y no privar a la entrada de luz natural y al mismo tiempo es un elemento decorativo con mucha fuerza. La idea de delimitar con la ventana y unificar al mismo tiempo estas dos zonas con el mismo mobiliario me parece la solución adecuada para ganar almacenamiento y ligereza visual.

El suelo espigado es precioso y el de la cocina me ha recordado mucho al que tenemos en el baño de nuestra casa. Y destacar también la chimenea de color negro, le aporta ese punto de elegancia parisina a este apartamento.

Me parece un gran trabajo de distribución y de acabados, ¡tomad nota de cada rincón!.

apartamento_paris_38m2_blog_ana_pla_interiorismo_decoracion_2


apartamento_paris_38m2_blog_ana_pla_interiorismo_decoracion_2


apartamento_paris_38m2_blog_ana_pla_interiorismo_decoracion_3


apartamento_paris_38m2_blog_ana_pla_interiorismo_decoracion_4


apartamento_paris_38m2_blog_ana_pla_interiorismo_decoracion_5


apartamento_paris_38m2_blog_ana_pla_interiorismo_decoracion_6


apartamento_paris_38m2_blog_ana_pla_interiorismo_decoracion_7


apartamento_paris_38m2_blog_ana_pla_interiorismo_decoracion_8


apartamento_paris_38m2_blog_ana_pla_interiorismo_decoracion_9


apartamento_paris_38m2_blog_ana_pla_interiorismo_decoracion_10


apartamento_paris_38m2_blog_ana_pla_interiorismo_decoracion_11


apartamento_paris_38m2_blog_ana_pla_interiorismo_decoracion_12


(Fotos vía)

La entrada Apartamento en París de 38m2 aparece primero en Ana Pla - interiorismo y decoración.

Fuente: este post proviene de APM interiorismo y diseño, donde puedes consultar el contenido original.
¿Vulnera este post tus derechos? Pincha aquí.
Creado:
¿Qué te ha parecido esta idea?

Esta idea proviene de:

Y estas son sus últimas ideas publicadas:

Recomendamos

Relacionado

general deco-inspiración

Distribuir un apartamento de 38m2: Cuando estamos frente a pequeños apartamentos, que no superan los 40m2, se abre un debate sobre si es mejor compartimentar el espacio o bien dejar que tanto dormitorio, como el salón y en ocasiones la cocina lo compartan. Básicamente, todo depende de nuestro estilo de vida, de nuestras costumbres y si es un apartamento para una única persona o bien si será un apa ...

Apartamentos Estilo ecléctico

Los apartamentos pequeños abren las puertas a las grandes ideas y distribuciones. Esta vivienda es el claro ejemplo de lo que hablo. La verdad es que viendo las imágenes de este minipiso situado en Kiev parece increíble que tan solo tenga 38M2. La verdad es que parece ciencia ficción que esta casa tenga tan solo 38M2. En ellos la interiorista Elena Fateeva ha sido capaz de distribuir con éxito la ...

IDEAS ESPACIOS featured ...

Vuelve Septiembre, el Enero de los rezagados, y nosotros no lo hacemos más que inspirándonos en lugares bien decorados donde buscar ideas para nuestro futuro "agujerito en la pared". Siempre digo que me conformo con cualquier sitio para independizarme porque creo que en cualquier lugar se puede hacer un verdadero hogar si nosotros le ponemos nuestro empeño y el apartamento de hoy lo cump ...

Decoración House Tour Inspiración decoración ...

Si me sigues desde hace tiempo sabrás que antes vivíamos en un mini apartamento de 29m2 y me pasaba horas y horas buscando en Instagram ideas que me ayudaran a aprovechar todos los rincones. Así descubrí la casa de Becky y hoy te la quiero enseñar con detalle. 36 m² DE APARTAMENTO EN ALEMANIA Hoy seré breve porque una imagen dice más que mil palabras y las fotos de la casa de Becky, @villa.snowwhi ...

general viviendas consejos ...

Mini apartamento de estilo industrial Este precioso mini apartamento de 47 m2 con una estética 100% industrial esta situado en Rusia. La combinación de materiales como el hormigón, madera, acero y ladrillo le dan el look industrial que tanto me gusta. Para la decoración se han decantado por piezas artísticas que combinan perfectamente con los materiales que han usado sin perder el look 100% indust ...

Hoy en Minipisos y Espacios Pequeños abrimos la puerta de un coqueto apartamento de 52m2 pequeñito pero muy bien resuelto. En este maravilloso espacio, se han respetado detalles originales de la vivienda como molduras, radiadores de fundición, etc. y se utilizan tonos neutros y elementos que dan un toque de color, que hacen destacar todo el conjunto. La cocina se muestra cerrada, una soluci ...

Proyecto fresco y modernista el que os presentamos a continuación. Se trata de un apartamento de tan solo 38M2, donde se realiza una intervención total. Nos encontramos con una vivienda de 1 habitación, cocina cerrada, salón independiente, baño completo y aseo. También tenemos un balcón que ya ha sido añadido al salón, y que se puede acceder por la habitación. Es evidente que tener un aseo y un ba ...

ideas prácticas decoración hogar

Sí, aunque os pueda parecer lo contrarío habéis leído bien el título. Este maravilloso apartamento que os traigo hoy tiene tan solo 47 m2. Eso sí, súper bien aprovechados, porque hay todo lo necesario para vivir mejor que bien. Cómo podéis ver por las imágenes, el color elegido como base para la decoración ha sido el blanco. Éste confiere mayor sensación de amplitud. El color negro ha sido el eleg ...

Home Tour Inspiración Nórdica

Tan pocos como 56 m con una estupenda clase sobre aprovechamiento del espacio y mucho buen gusto. Las claves de este apartamento son además, sin lugar a dudas, sus techos, su luz y ESE DORMITORIO.  ¿Qué tiene de especial? Apartamento con pocos metros Si la vista no me engaña, que todo pudiera ser, se ha colocado el dormitorio en lo que en otras manos sería un rincón oscuro y pequeño que gracias a ...

Cocina Interiores Sala/Comedor ...

Decorar un apartamento pequeño se vuelve un reto para el diseñador, quien tiene que transformarlo visualmente en un espacio más amplio y aprovechando cada rincón para cada una de las necesidades de quienes viven en ella. Pero si hablamos de decorar un apartamento pequeño de menos de 30m2 para dos personas, estamos hablando de una hazaña de diseño interior, y esto es lo que logró Ewa Czerny del est ...