Casa en Brasil con Diseño Minimalista y Presentación en Voladizo



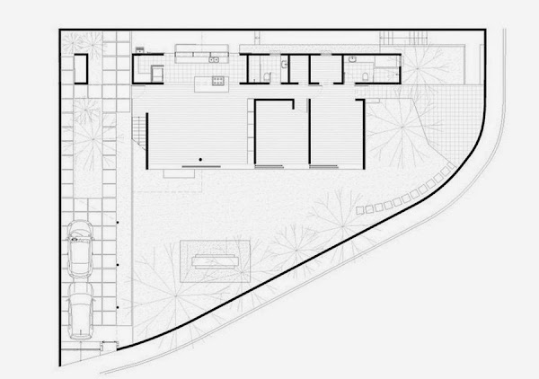
Esta casa minimalista fue concebida e implementada por Metro Arquitetos Associados, y se encuentra en São Paulo, Brasil. Está compuesta por dos volúmenes principales, el hormigón y el acero de esta villa exhibe un diseño funcional: "La planta baja comprende el programa arquitectónico de la casa y está organizada por un volumen de longilíneos que incorpora todas las zonas húmedas; dos baños, cocina y lavadero. Este volumen principal se extiende a lo largo de toda la extensión de la casa, paralela al borde lateral y que delimita el final y el punto inicial del terreno".




Los arquitectos explican además que el suelo se eleva 45 cm por encima de su nivel, permitiendo que el frente de la casa pueda ser utilizado como una cómoda zona de estar con vistas al jardín. Una escalera situada fuera de los principales interiores, permite un fácil acceso entre los pisos, sin la necesidad de ir dentro de la casa. Los muros de hormigón y suelos dan al lugar un ambiente sobrio y redirigen la atención hacia el paisaje fresco al aire libre. ¿Qué comentarios tienes sobre el diseño general de esta casa en Brasil? [Fotografía por Leonardo Finotti]

























Fuente: este post proviene de este blog, donde puedes consultar el contenido original.
¿Vulnera este post tus derechos? Pincha aquí.
Creado:
¿Qué te ha parecido esta idea?

Esta idea proviene de:

Y estas son sus últimas ideas publicadas:

Hogares Frescos Sumérjase en la encantadora atmósfera de varias Casitas pequeñas con encanto! Son exquisitas y románticas. Nos invitan a soñar. Imperceptiblemente, mientras las miramos a ellas, nos va ...

Casa I es una residencia privada ubicada en Las Rozas, uno de los municipios más grandes de la comunidad autónoma de Madrid, España . Fue terminada en 2013 por Bojaus Arquitectura. Casa I está situado ...

La ciudad sueca de Gotemburgo es única en su capacidad de ofrecer la vida urbana sin dejar de sentirse como una pequeña ciudad. Por un lado, no hay escasez de restaurantes y salas de cine para disfrut ...

Recomendamos

Relacionado

decoración arquitectura loft ...

En la ciudad de São Paulo, donde se producen los contrastes urbanos más extraordinarios se desarrolla la idea de una residencia primaria y en efecto "brutalista". La vivienda posee una geometría muy definida, opaca en su materia gris, clara en las superficies de vidrio y vibrante en el mural de acceso. Un diseño discordante en relación con las viviendas tradicionales del vecindario que e ...

general y de la casa... estilo rústico

Espero que esta noche acabe un cachito de pesadilla,… sí me refiero a nuestra selección española de fútbol. Apretemos fuerte el pensamiento enviándoles nuestras fuerzas de suerte a estos campeones que tantas alegrías nos han dado. Para transportarnos hoy a Brasil y acompañar así a nuestros campeones, os propongo relajarnos en esta casa. Después de vrla querrás decorar en blanco y madera todo ...

general arquitectura moderna casa contemporánea ...

El estudio brasileño Reinach Mendonça Arquictetos Associados, ha completado el proyecto Residencia FG comenzado en 2011 y terminado en 2012. Esta casa contemporánea tiene 11.830 pies cuadrados (1.099 metros cuadrados) se encuentra en Araraquara, ciudad en el estado de São Paulo en Brazil. Es una casa de campo en la ciudad. La residencia fue diseñada para una familia que pasa temporadas en su ciuda ...

decoracion casasespeciales casasconcolor ...

He estado varias veces en Brasil, y he de reconocer que tiene una luz especial. Pero cuando vimos esta casa, nos entraron muchas ganas de teletransportarnos allí aunque fuera por un instante. La luz, el color, el entorno…Será que es viernes y necesitamos alegría y vida en las casas. Hoy no apetece una casa con aires invernales, nórdicos, ni si quiera un apartamento chic en París…Hoy ...

general apartamento apartamento contemporáneo ...

Los Diseñadores Salvio Moraes Jr y Moacir Schmitt Jr de CASAdesign Interiores completaron el Loft 44, un impresionante apartamento contemporáneo de 220 ??metros cuadrados ubicado en Praia Brava, Brasil. El diseño fue planeado para una pareja casada, con una ajetreada vida que valora esos momentos del fin de semana de relax. El apartamento consta de espacio para vivir, cocina, comedor, dormitorio, ...

casas con vida viajes

Con las ganas que tengo de ir a Brasil y va y me encuentro con esta casa que se puede alquilar para pasar unos días en ella, me parece estupenda, abierta totalmente al exterior con una decoracion sencilla, suelos de cemento y vigas, puertas, ventanas y muchos muebles creados con madera de la zona. Nos vamos hoy lunes para allí? casa lola casalil.blogs.marieclairemaison. VER BLOG MUEBLEAND ...

Decoración retro MUEBLES Multicolor ...

Ikea: decoración cita en Brasil con la nueva colección limitada Tillfälle. Podemos llevar todo el encanto y el exotismo de Brasil a casa con las sorprendentes piezas de  la colección limitada de Ikea, Tillfälle, que llama poderosamente la atención por sus colores y estampados vibrantes. Está compuesta por diseños llamativos y estética minimalista de tipo nórdico con un acento brasileño de vanguard ...

diseño de interiores españa arte ...

Casa I es una residencia privada ubicada en Las Rozas, uno de los municipios más grandes de la comunidad autónoma de Madrid, España . Fue terminada en 2013 por Bojaus Arquitectura. Casa I está situado en una zona suburbana típica cerca de Madrid, donde las casas en pequeñas parcelas individuales son a menudo demasiado cerca una del otra. En esta situación, el desafío era combinar cierto grado de p ...

general decoración eventos ...

Casa Cor es uno de los eventos de decoración y paisajismo más importantes de Brasil. Este año tuve la oportunidad de visitar la que se organizó en el sur del país, en la ciudad de Porto Alegre. Para su 22º edición, Casa Cor RS, ha elegido cuatro casas de los años 40 ubicadas en un barrio privilegiado de la ciudad, con un área de 3.500 m2. El resultado es sorprendente, 45 espacios reinventados por ...

aniversario brasil deco ...

Casa Cogue Brasil cumple 40 años, y para celebrarlo crearon un espacio efímero diseñado por Rodrigo Martins, Gabriel Valdivieso, durante cinco días que estuvieron llenos de eventos y fiestas. Lo llenaron de diseños icónicos brasileños, de color y de una deco maravillosa que nos teletransporta en un día gris como hoy, al luminoso y colorista Brasil. Si han celebrado así los 40, no sé que harán en l ...