Decoración Crea Loft

Hola a todos!

Hoy os traigo un proyecto de decoración que realicé para un loft en Burjassot (Valencia). Se trata del edificio Crea, donde en un principio los locales estaban predestinados a ser oficinas y despachos, pero desde hace unos años también se alquilan y venden como viviendas.

Edificio Crea Loft en Burjassot
Edificio Crea Loft en Burjassot (via Google)

El proyecto surgió a raíz de que contactara conmigo un chico que estaba pensando en alquilar uno de los lofts. El suyo en particular estaba sin amueblar, y quería saber cómo sería el resultado final. Una vez hablado todo con él, sabiendo el presupuesto al que me tenía que ajustar, y haciéndome una idea del estilo que le gustaba, me puse manos a la obra.

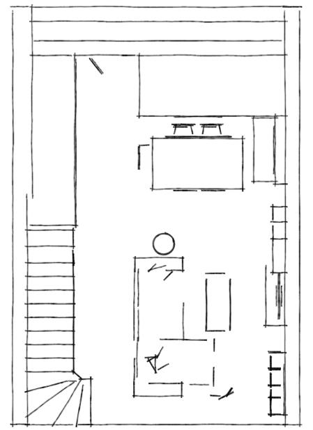
Conseguí unos planos y algunas fotos a través de diferentes páginas que anunciaban las viviendas en alquiler. En algunas imágenes se muestra la cocina en la parte derecha, en nuestro caso la cocina se situaba en la izquierda, como se muestra en el plano. Por lo demás era todo igual, pues son simétricos unos con otros.

Plano de plantas
Plano de plantas

11555-2427729-23934581
  
Oficina-Loft-en-Edificio-Crea-Burjassot2


Imágenes Lofts en alquiler (via Google)
Imágenes Lofts en alquiler (via Google)

Escalé los planos y realicé una vista en tres dimensiones, y con ello realicé unos esquemas de distribución para tener claras las medidas y lo que podíamos usar a la hora de amueblar:

ESQUEMA 1
     
ESQUEMA 3
      
ESQUEMA4


El siguiente paso era encontrar los muebles que más se adaptasen a su gusto, por ello fui realizando diferentes dossiers donde iba enseñándole las diferentes opciones, de entre las cuales él elegía la que más le gustaba. Cuando estaba todo decidido, le pasé las diferentes vistas del resultado final, que a continuación os muestro:

RENDER1


RENDER2


RENDER3


RENDER5


RENDER6


Os adjunto también los enlaces de algunos de los muebles que utilicé para la decoración, en su mayoría de Ikea y Maison du Monde :

01. 02. 03. 04. 05. 06. 07. 08. 09.
01. 02. 03. 04. 05. 06. 07. 08. 09.

01. 02. 03. 04. 05. 06. 07. 08. 09.
01. 02. 03. 04. 05. 06. 07. 08. 09.

¿Que os ha parecido el resultado? Espero que os haya gustado!! Feliz semana!

Si tu también quieres un proyecto de decoración para tu casa o negocio, escribe a addarqinfo@gmail.com

logo4-01


Follow my blog with Bloglovin

Fuente: este post proviene de Add Arquitectura-Diseño-Decoración, donde puedes consultar el contenido original.
¿Vulnera este post tus derechos? Pincha aquí.
Modificado:
¿Qué te ha parecido esta idea?

Esta idea proviene de:

Y estas son sus últimas ideas publicadas:

Muy buenas! Esta semana quiero hablaros de uno de los colores más importantes en el mundo de la decoración y el interiorismo: el blanco. ¿Eres de los que no te aclaras combinando colores? ¿No diferenc ...

Recomendamos

Relacionado

general casa decoración ...

Hola a todos! Hoy os traigo un proyecto de decoración que realicé para un loft en Burjassot (Valencia). Se trata del edificio Crea, donde en un principio los locales estaban predestinados a ser oficinas y despachos, pero desde hace unos años también se alquilan y venden como viviendas. Edificio Crea Loft en Burjassot (via Google) El proyecto surgió a raíz de que contactara conmigo un chico que est ...

general hogar decoración ...

Históricamente el formato de vivienda llamado “Loft” tiene origen en una iniciativa de estudiantes y artistas que por los años 70 en Nueva York necesitaban de espacios económicos para vivir y trabajar. El Soho, fue para los escultores, pintores y fotógrafos un lugar atrayente debido a la existencia de galpones y locales industriales desocupados que se rentaban a bajísimos precios. Con ...

decoracion de interiores decoracion loft decoración exótica ...

En este artículo te daremos ideas para crear un ambiente de loft, este tipo de decoración requiere de un lugar amplio, así que una buena opción es transformar tu espacio favorito lleno de cosas viejas sin usar, en un loft moderno y con estilo. El loft como concepto El loft en el concepto de vivienda se instaló en casi todo el mundo hace muchos años, y poco a poco se transformó en la vivienda ...

general estilo nueva york interiorismo

Lo bueno de flanear mucho por internet es que a veces te encuentras imágenes sorprendentes. Esto nos ha pasado con este loft en Copenhague, ha sido amor a primera vista, la autentica esencia de los primeros lofts americanos, mezcla de muebles reciclados con muebles de diseño, paredes desnudas y colores neutros. Fotos de Paulina Arcklin ¿Te gustaría vivir en un loft como este?Bss.

Loft boho chic cómo decorar un loft ...

Te invitamos a seguir Decoración 2.0 también en Facebook de la Decoración con más de 1 millón de amigas y amigos. Descubre algunas de las ideas más originales y sencillas para decorar un loft con estilo y las nuevas tendencias de decoración ¡de 2016! Ampliios ventanales, techos con altura y paredes de ladrillo son algunas de las características más populares de un loft. Un espacio único, decorado ...

decoracion interioristas
LOS LOFT ESTÁN DE MODA

Podrás ver más entradas interesantes en: http://www.virginia-esber.com Un loft, desván o galería, es un gran espacio con pocas divisiones. Grandes ventanas y muy luminoso. El auge de los lofts está siendo espectacular, y lo que en un principio no era muy aceptado por la gran mayoría, hoy en día es cada vez más demandado, especialmente gracias a las modas que exportan de Estados Unidos y a mucha ...

general viviendas loft estilo industrial

Hoy visitamos un loft en Eindhoven, Holanda, de estilo industrial. En él vive la estilista Renee Arns, y propietaria de la tienda Out of the Blue. A destacar el contraste del blanco impoluto en paredes, con el techo en basto, con sus conductos y vigas vistos. En algunas de las paredes del acceso y en la zona de la cama, también se ha querido dejar una parte de ella sin cubrir, dejando ver el hormi ...

general viviendas loft estilo industrial

Hoy visitamos un loft en Eindhoven, Holanda, de estilo industrial. En él vive la estilista Renee Arns, y propietaria de la tienda Out of the Blue. A destacar el contraste del blanco impoluto en paredes, con el techo en basto, con sus conductos y vigas vistos. En algunas de las paredes del acceso y en la zona de la cama, también se ha querido dejar una parte de ella sin cubrir, dejando ver el hormi ...

general interiores decoración ...

Un loft en Australia inspirado en New York Loft + New York son una de mis combinaciones preferidas. Seguro que a más de un@ también os gusta ;). Esta casita esta en Australia y sus propietarios querían que tuviese el encanto de los auténticos lofts. Combinación de materiales como el hierro, el ladrillo visto y pavimento de hormigón son las principales características y esta pareja lo ha sabido ref ...

Interiores color mostaza decoración

Y para dar la bienvenida al otoño, propongo poner un toque de color mostaza en la decoración de nuestras casas. El color mostaza está de moda esta temporada, un color muy otoñal que aporta calidez a las estancias. Ayuda a realzar y crear un punto de atracción en la decoración. Es un color que transmite dulzura, suavidad, creando ambientes confortables. Combina muy bien con diferentes tonalidades, ...