Ideas para decorar un estudio de 20 m²

 

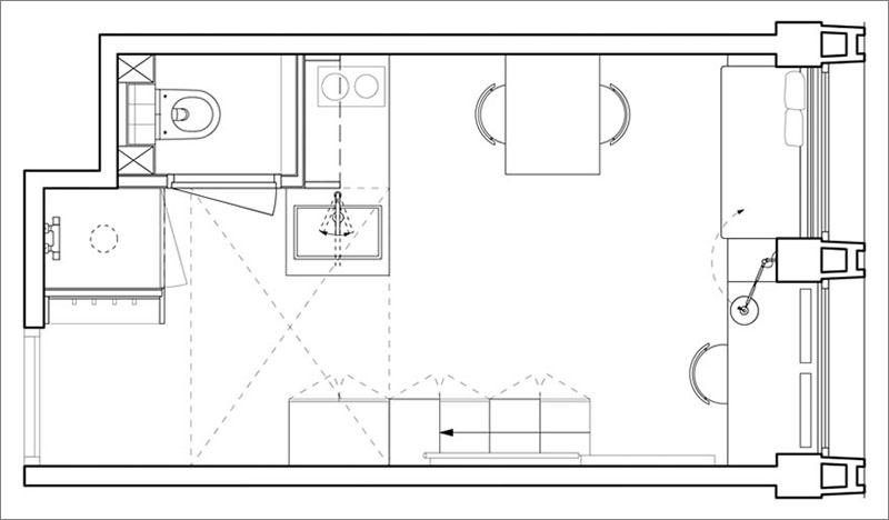
El problema del espacio es algo recurrente en las viviendas de hoy en día. Nos hemos acostumbrado a vivir en lugares tan pequeños como el estudio de 18 m² diseñado por Standard Studio que se encuentra en Rotterdam (Países Bajos) y que vemos hoy. Nos fijaremos en sus soluciones prácticas de aprovechamiento para poder decorar un estudio de dimensiones similares si tenemos que hacerlo.

 

Cómo decorar estudios pequeños (y no morir en el intento)

Las decoraciones de estudios pequeños como este deben ser estudiadas al milímetro, literalmente. Todo debe tener la medida adecuada, desde el perchero de la entrada hasta los utensilios de cocina, ya que si no es así, se desaprovechará un espacio que no se tiene. La imaginación y la planificación son cruciales en el proceso, pero también (por qué no) podemos copiar las ideas que ya existen si son buenas.
 

Decorar estudios pequeños
 

Muebles bajo las ventanas

Una de las grandes ideas para decorar un estudio de 20 metros cuadrados o similar es ganar el hueco que existe bajo las ventanas. Un espacio que muchas veces pasamos por alto, pero que en una vivienda de estas características es crucial. En el ejemplo de las imágenes queda claro, ya que gracias a este pequeño trozo de pared, se consigue tener una zona de sofá e incluso un escritorio. También se puede reorganizar este hueco o cualquier otro utilizando mobiliario plegable, ya que así podremos despejarlo cuando no lo utilicemos.
 

Decorar estudio 20 metros
 

Escalera con almacenaje

Quizá una de las formas más inteligentes y originales que se han usado para conseguir almacenaje en la decoración de este estudio es el diseño de la escalera. Y es que no solo cumple esa función, si no que además es el armario principal gracias a un sistema compuesto por estantes y cajoneras. Un todo en uno para no olvidar en las viviendas más minúsculas.
 

Ideas decoración estudio
 

 

Una cama en las alturas

Eso sí, para que una escalera con almacenaje nos sirva de algo, debemos tener un lugar al que necesitar subir. En este estudio de menos de 20 metros no hay dos pisos, pero sí unos techos de 3 metros de altura. Es así como se ha conseguido añadir una cama en un altillo que, aunque no sea apta para acrofóbicos, no roba un milímetro al suelo.
 

Decoración cocinas pequeñas
 

Mobiliario a medida

A parte de estos trucos ingeniosos, un tip clásico a utilizar a la hora de decorar un estudio pequeño es disponer de muebles a medida. Cuando cada centímetro cuenta, es importante que todo encaje a la perfección. Tampoco hay que olvidarse de medir muy bien el espacio disponible y de no intentar amueblar con piezas grandes, ya que restarán amplitud tanto física como visual.
 

Cómo decorar estudios pequeños
 

 

Estudio 20 metros

Vía Contemporist

Aunque vivir en un lugar reducido tenga sus inconvenientes, siempre se puede mejorar con algunas buenas ideas. ¿Con cuál de ellas te quedas para tu casa?  

 

Fuente: este post proviene de Decorar mi casa, blog de decoración, donde puedes consultar el contenido original.
¿Vulnera este post tus derechos? Pincha aquí.
Modificado:
¿Qué te ha parecido esta idea?

Esta idea proviene de:

Y estas son sus últimas ideas publicadas:

Recomendamos

Relacionado

general apartamento casas ...

Terminamos la semana con un estudio de sólo 40 metros cuadrados, pero que están taaaan bien repartidos que no le falta de nada. En este pequeño piso de Moscú, el equipo del estudio de INT2architecture se ha encargado de elegir los muebles a conciencia, evitando sobrecargarlo y consiguiendo que parezca mucho más grande de lo que en realidad es. Un acierto es haber aprovechado para hacer una pequeña ...

Decoración Esta casa es de... Copia el look ...

Nos colamos en un estudio de unos 55 metros cuadrados situado en Taiwán que ha sido renovado para intentar sacar todo el provecho posible a su reducido espacio. Viendo las imágenes del mismo no aparece sensación de claustrofobia alguna, así que podríamos decir que el reto ha sido conseguido. Los techos altos de forma abuhardillada y los tonos claros, combinando neutros y pasteles, han ayudado m ...

organizar soluciones almacenamiento general

A todos nos gustaría vivir en casas de más de 30 metros cuadrados pero ésto no siempre es posible. Bien es cierto que los espacios pequeños pueden ser mucho más acogedores que una vivienda de muchos metros cuadrados, pero has de prestar especial atención a los objetos y cachivaches que tienes a la vista, el orden y la organización son básicos en estos espacios pequeños. Los espacios minimalistas s ...

Apartamentos

Hoy tenemos Home Tour. Un pequeño estudio de tan solo 20 m2 con una terraza espectacular ¿Os apetece verlo? “ Desde luego, nunca mejor lo de quien tiene una terraza, tiene un tesoro. En estos días la vida de la calle se ha trasladado a los balcones y terrazas. Tan pequeño y con el mismo diseño que una habitación de un aparta-hotel. Este apartamento estudio de 20 m² en Suecia sorprende a través ...

general apartamentos estilo escandinavo ...

Un estudio decorado con la paleta de colores grises, blancos y toques negros con la madera natural con nexo de unión. Su espacio se distribuyó en una sola estancia central, donde se encuentra el living room, la cocina y el dormitorio, con una decoración y diseño cuidado y unos maravillosos detalles, crean una atmósfera que enamora. La escalera de mano para dejar las mantas, las sillas Victoria Gho ...

estancias ideas para decorar decoración ...

Para aprovechar el máximo los espacio o por cuestiones económicas, cada vez las construcciones son más pequeñas. Ello a veces puede llevar “problemas” a la hora de decorar y ambientar espacios tan reducidos y hacerlos funcionales. Hoy quiero mostrarte como decorar un piso de 20m2, te voy a contar algunos consejos y trucos para hacer que tu vivienda parezca más grande. Si estas pensando ...

DECORACIÓN INTERIORES espacios pequeños ...

Uno de los retos más difíciles pero a la vez más bonitos a los que me he enfrentado ha sido decorar un miniestudio. Cuando digo difícil, me refiero al hecho de distribuir el espacio al milímetro para sacarle el máximo partido. Actualmente existen muchas viviendas de este estilo, espacios de no más de 30-40m2 distribuidos en una sala de estar – dormitorio, cocina y baño. La mayoría de estos p ...

Decoración almacenaje en espacios pequeños aprovechar el espacio ...

Da igual los metros que tengas en casa, porque sean pocos o muchos todos necesitamos espacio de almacenaje para guardar ‘trastos’ y ropa. Pero siempre se pueden buscar soluciones para aprovechar el espacio con estilo y una muestra genial para coger ideas es este espectacular apartamento en Gotenburgh, Suecia, donde el estudio de interiorismo e inmobiliaria Alvhem ha hecho un trabajo ex ...

Arquitectura

¿Piensas a menudo como ganar espacio en casa? ¿Te gustaría tener un espacio de descanso para ti? ¿Un lugar dónde poner una biblioteca? Si tus techos son altos crear un altillo puede proporcionarte los metros extra que necesitas en casa. Fíjate en las ideas que hoy compartimos contigo para hacerlo. Si vives en piso antiguo de techos altos, crear un altillo es siempre una propuesta inteligente para ...