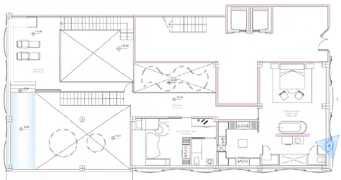
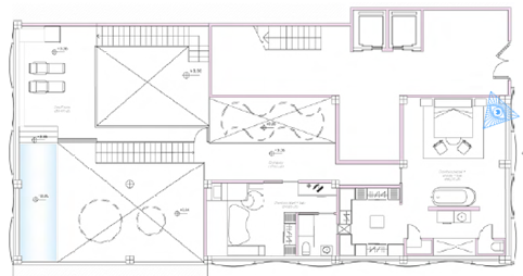
IRIDISCENTE: Dormitorio principal, Vestidor y Baño en suite

Me he dejado para el final la guinda del pastel

En el último post de la saga de mi Trabajo Final de Máster, he diseñado el dormitorio de mis sueños: con un vestidor enorme con isla para complementos y una bañera exenta con vistas, en la propia habitación.



El cabecero de la cama es un mural pintado por la propietaria de la vivienda y a los lados se ha colocado un aplacado de Orac.

En toda la planta primera, se ha colocado un pavimento de madera de abeto en lamas anchas.



La bañera exenta se verá desde la cama tipo tatami, además de una chimenea y la televisión de espejo.



El baño del dormitorio principal será abierto y tendrá un lavabo y un tocador.



(Sillón PK25 de Fritz Hansen)




En pavimento de la zona del baño con forma irregular, es el liquid sky Dekton de Cosentino y se ha reproducido en el techo.





Desde el vestidor del dormitorio principal, hay acceso a un conducto para depositar la ropa sucia y que llegue a la planta inferior, donde se encuentra el cuarto de la colada.

(Mueble de baño MAM de Salgar)


La ducha será doble y el inodoro estará cerrado, además de disponer de un armario para las toallas.



(Apliques baño en suite: Globe Cherry Boom Fringe Flush Mount, de Lindsey Adelman)


Y hasta aquí mi Trabajo Final de Máster de Decoración e interiorismo con la Escuela Madrileña de Decoración. Espero que te haya gustado


Si quieres consejos para tener un dormitorio con buen Feng Shui, visita el post Dulces sueños.

Fuente: este post proviene de El mirador de Laura, donde puedes consultar el contenido original.
¿Vulnera este post tus derechos? Pincha aquí.
Creado:
¿Qué te ha parecido esta idea?

Esta idea proviene de:

Y estas son sus últimas ideas publicadas:

En este post vamos a ver los principales materiales a utilizar en el diseño de interiores, lo que transmiten y cómo usarlos en los proyectos. Estos son: madera, mármol, cerámica, cemento, terrazos y ...

Allá por 2015 os contaba en que cosiste esta técnica de marketing para vender o alquilar una vivienda, a mayor precio y más rápidamente. Aunque hoy en día todavía hay gente que no sabe lo que es, el H ...

Recomendamos

Relacionado

Espacios: reformas e interiorismo

Proyectamos la nueva distribución de un dormitorio con vestidor y baño. Ambas estancias se abrían al pasillo en su diseño original. Cerrar esos accesos y abrir los nuevos desde el dormitorio, desplazando puertas y situando mecanismos eléctricos fueron las claves del proyecto. Entre el vestidor y el baño. En la habitación pequeña una ventana condicionaba la ubicación de módulos altos. Una puerta c ...

Decoración Proyectos de interiorismo decoración dormitorio ...

Ya hacía algo de tiempo que no os mostraba algún nuevo proyecto de interiorismo, el último fue un dormitorio infantil monísimo, y es que tengo unos cuantos proyectos en marcha, se nota que es la época perfecta para reformar o que es una buena época para comprar y reformar, al menos esta es siempre la opción que más me gusta. Hoy nos adentramos en el dormitorio principal de una casa de la cual os i ...

general antes y después inspiración dormitorio ...

Buenos días, Hoy venimos con la tercera parte de la reforma que hicimos en el sótano de un chalet en Valencia para transformarlo en mini-piso (si os habéis perdido los antes y después del salón, podéis hacer clic aquí para verlos) y esta vez le toca el turno al dormitorio principal en el que pudimos incluir un pequeño vestidor con mobiliario low cost para no irnos de presupuesto. Aquí tenéis el ...

general vestidor trucos decorativos ...

Distribuir el cuarto de baño en el dormitorio es casi siempre un acierto, y si el vestidor lo incorporamos al mismo, el resultado es práctico y versátil. La zona de descanso, el vestidor y baño comparten cada vez más en los diseños y decoraciones de viviendas un único espacio, mediante soluciones decorativas y estructurales con las que se busca funcionalidad. Integrar el baño con el vestidor es ...

feng shui consejos feng ideasfeng ...

Si tuviese que elegir diría que no, sin embargo, si tuviese la opción (y la suerte) de ubicarlo dentro de un dormitorio siguiendo la técnica del Feng Shui sabría cuál sería su sitio. Todo se basa según la colocación de nuestra cama ya que existen diversas maneras de que un cuarto de baño perjudique la energía de nuestro dormitorio. Hoy te voy a enseñar varios modos en los que un baño puede caus ...

Espacios: reformas e interiorismo

Renderizado desde la puerta (con iluminación aplicada) Como ya adelantamos por Instagram te mostramos el proyecto de un baño bajo una escalera. Ganando el pasillo libre ampliamos el dormitorio con una zona para el armario-vestidor del dormitorio actual, que se usará como cuarto de invitados ocasional, gimnasio y zona de juegos/estar. Plantas: original y reformada Teniendo en cuenta que el baño ...

tips y consejos baño consejos ...

Los baños integrados completamente al dormitorio como una prolongación del mismo crean un espacio diáfano, se han convertido en una tendencia a la hora de distribuir viviendas de obra nueva. Este tipo de distribución te permite crear unos ambientes originales, con personalidad y que transmiten sensación de relax. Esta solución es perfecta si vives sola; ya que ello conlleva ciertos problemas de ru ...

Deco conducto cuarto de la colada dormitorio infantil ...

El dormitorio infantil de mi trabajo final de máster, corresponde a una niña de cuatro años que de mayor quiere ser astronauta. Su dibujo animado favorito es la sirenita y su imprescindible es una habitación donde se pueda quedar a dormir su mejor amiga. (Moodboard o tablero de inspiración) Lámpara de techo del dormitorio infantil: Gross pendant light multi By Ridens Dentro de la estructura de la ...

general deco-ideas

Ideas para convertir un dormitorio en vestidor. La verdad es que al ver estos espacios no puedo más que suspirar y soñar con uno de estos impresionantes vestidores! Lo que daría por tener uno de ellos… Hoy en el Blog Boho Chic Style, ideas para tener un vestidor de ensueño. Ya iremos analizando las imágenes, pero la verdad es que los muebles que necesitaríamos para conseguir este tipo de ves ...

El proyecto consistía en la transformación de una vivienda duplex, adaptándola a las necesidades del propietario, modernizando y optimizando los espacios excesivamente compartimentados, sobre todo en la planta baja, y en la primera planta incorporando un espacio exterior que comunica con el dormitorio principal, creando un gran baño y un necesario vestidor. El gusto del propietario por los acabado ...