Proyecto de baño debajo de una escalera.




Renderizado desde la puerta (con iluminación aplicada)
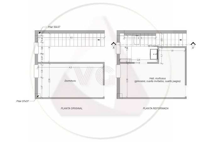
Como ya adelantamos por Instagram te mostramos el proyecto de un baño bajo una escalera. Ganando el pasillo libre ampliamos el dormitorio con una zona para el armario-vestidor del dormitorio actual, que se usará como cuarto de invitados ocasional, gimnasio y zona de juegos/estar.


Plantas: original y reformada

Teniendo en cuenta que el baño lo usarán personas de distintas edades y de estatura más baja de lo habitual escogimos una columna de hidromasaje con chorros orientables para los padres. De esta forma salvamos la altura del murete (más bajo también), sin perder la eficacia del hidromasaje. Y para la peque de la casa y el abuelo -convive algunos fines de semana y vacaciones-, instalamos un grifo de ducha accesible y un asiento plegable.


Sección con alturas.

En el estilo del baño se entremezclan los acabados clásicos y rústicos adecuados a la estética de la vivienda y su enclave semi-rústico. Las texturas y los efectos son la base fundamental en una habitación con escasa luz natural y poca ventilación. Son claves la resistencia a la humedad y la condensación, los acabados reflectantes que potencien la luz, su facilidad de mantenimiento/limpieza y los pavimentos antideslizantes.
Te dejamos el tablero inspirador para nuestro baño del mes: rústico y clásico a la vez.


De arriba-abajo, de izqd. a dcha.: papel tranquil-scenery beige. Azulejos Prestige Onyx blanco mosaico. Revestimiento Ardesie beige mosaico trapecio. Pavimento porcelánico antideslizante Bella Pietra.

Clásico por la presencia del acabado “mármol” (pintura con efectos de las paredes y suelo porcelánico antideslizante con juntas rectificadas). Y también por el dorado de los triángulos en los azulejos -divertidos y con movimiento-, o de algunos accesorios: espejo, tirador del mueble, portavelas. El cristal de los apliques o del dispensador de jabón aporta ligereza a la decoración final.


Planta 3D (sin iluminación)

Rústico por los toques en piedra: revestimientos del pilar o la estantería de obra de la ducha (fácil mantenimiento y almacenamiento de productos de aseo accesibles a distintos niveles); y rústico también por la madera del mueble, del banco y del estante bajo la rampa, o la cesta de fibras para la ropa.


Vista desde la puerta en 3D (sin iluminación)

Continuamos pero haciendo un paréntesis para mostrarte el resultado final en renderizado a foto. Y es que si hay un lugar donde es recomendable usar este tipo de renders es en los baños, espacios donde es importante visualizar los reflejos en el espejo y los revestimientos.


Renderizado de la planta (con iluminación aplicada)

El negro de los accesorios, grifería y mecanismos eléctricos le otorga elegancia a la vez que potencia los elementos rústicos. Por otro lado el papel con aves en tonos melocotón-gris y los triángulos dorados del revestimiento dan luz y vivacidad a un espacio con poca luz natural.


Renderizado desde la puerta (con iluminación aplicada)

En cuanto a los elementos constructivos destacar el nuevo fijo de cristal translúcido que sustituye a la antigua balaustrada de la escalera, el murete para la cisterna empotrada, la estantería de obra al final de la ducha (más fácil de limpiar cuando instalamos columnas de hidromasaje con chorros), o la puerta corredera que libera espacio. Para el techo optamos por placas PPM, recomendadas para baños por su excelente resistencia a la humedad.

Y si quieres descubrir más ideas para renovar tu baño te invitamos a pasarte por nuestra categoría decor-compras. Encontrarás modernos platos de ducha en materiales diversos, novedosas griferías con diseños y acabados increíbles, muebles de lavabos a todo color y más soluciones para tu baño. Inspírate, cuídate y siéntete bien en tu spa particular.

Si tienes dudas con la renovación/decoración de tu baño o cualquier estancia de tu vivienda contáctanos a través de nuestro correo o rellenando cualquiera nuestor formulario "solicita tu proyecto". Para completar en nuestro Instagram tienes el mismo baño con otra opción decorativa, pásate y cuéntanos cual es tu opción favorita, mil gracias.

Abrazos y felices proyectos.

anterior, siguiente

Fuente: este post proviene de Vivogar, donde puedes consultar el contenido original.
¿Vulnera este post tus derechos? Pincha aquí.
Creado:
¿Qué te ha parecido esta idea?

Esta idea proviene de:

Y estas son sus últimas ideas publicadas:

Recomendamos

Relacionado

Él, minimalista; ella, clásica atemporal. Estoy segura que muchos entenderéis de lo que hablo. Cuando me reúno con mis clientes y charlamos de cómo les gusta imaginarse el espacio las ideas divergen entre ambos. He aquí cuando tengo que hacer de terapeuta y encontrar un "camino" entre los dos, una idea que entusiasme a ambos. Partíamos de un baño compartido de correctas dimensiones y v ...

general decoración baño de ambiente rústico ...

Ya os conté en otro post que me he mudado hace poco a una casa en un pueblo de 5.000 habitantes y hemos estado haciendo una pequeña reforma. Hoy aprovechando la participación en #Diariodeco12 os quería enseñar uno de los cambios que hemos hecho, con el antes y el después… ¡A ver qué os parece!   La casa tenía dos cocinas, una en cada planta. Una de ellas era poco funcional y estaba den ...

general baños ideas de decoración

Si tienes una escalera vieja en casa que no sabes que hacer con ella, o simplemente te apetece incorporarla a la decoración de tu baño, descubrirás el universo de posibilidades que se abren con un elemento tan simple, desde un accesorio para poner jarrones con flores u objetos decorativos hasta un completo organizador de toallas y enseres de baño. Dependiendo del estilo del baño, puedes dejarl ...

Muebles de baño Decoracion baños

Uno de los elementos que más encanto le da a un cuarto de baño es el mueble. Gracias al amplio abanico de acabados y de formas posibles, los muebles de baño son, además de un lugar de almacenaje, un objeto decorativo. Muebles clásicos para tu baño Con un mueble de madera de pino macizo, este baño cuenta con el equilibrio perfecto. Por un lado, cuenta con un espacio de ducha moderno con una columna ...

baños cuarto de baño decoración baño ...
COMO DISTRIBUIR UN PEQUEÑO BAÑO

A raíz de publicar un post sobre baños pequeño bien distribuidos, muchos de vosotros me habéis preguntado como distribuir vuestros baños, que en la mayoría de los casos son de dimensiones tan reducidas que pensamos que es imposible incluso colocar un mueble. Os quiero mostrar el baño de mis hijos, que tan solo tiene 1,20cms. de ancho y 2,45 cms . de largo, en definitiva una caja de cerillas, pero ...

baños cuarto de baño reforma baño ...

Al investigar las tendencias que se llevarán en interiores los próximos años, he descubierto que el cuarto de baño no se escapa a estas influencias. Bien es cierto, que el diseño de un cuarto de baño dura como media unos quince años, por ello, debemos tener especial cuando elegimos las tendencias del momento. Cuando nos embarcamos en una reforma en un cuarto de baño, son de las estancias que sufre ...

Baño Decoración Truco ...

Solemos darle mucha importancia a la decoración de las estancias de la casa que más tránsito de visitas tienen. Sin embargo, a veces, se nos olvida que el cuarto de baño es una estancia más íntima, pero no menos merecedora de nuestra atención a la hora de decorarla. Tanto si es el cuarto de baños de invitados como el nuestro propio, aquí van las mejores ideas para decorar un baño, que queremos ace ...

Deco bañera bañera hamaca ...

Para diseñar un baño tipo spa, primero tenemos que tener en cuenta si es de caracter privativo, las necesidades del usuario y las zonas que debe incluir. Por ejemplo: 1. Zona de cabina de inodoro, cerrada, con bidet (opcional). 2. Plato de ducha, amplio y con acceso a la luz natural. 3. Zona de secado. 4. Zona de almacenamiento de ropa de baño. 5. Zona de lavabos (dos lavabos o lavamanos), o un la ...

general

El punto de partida para el cambio de look en este baño, ha sido la cabina de hidromasaje que adquirió mi cliente. Un cambio de look totalmente imprevisto, así que tenía que ser sin mucha obra, pero con grandes soluciones.Entre la ducha de hidromasaje moderna, el mueble de lavabo de líneas rectas y el alicatado existente, he tenido que buscar un equilibrio entre todas las piezas existentes y las q ...

Deco bañera exenta baño ...

Me he dejado para el final la guinda del pastel En el último post de la saga de mi Trabajo Final de Máster, he diseñado el dormitorio de mis sueños: con un vestidor enorme con isla para complementos y una bañera exenta con vistas, en la propia habitación. El cabecero de la cama es un mural pintado por la propietaria de la vivienda y a los lados se ha colocado un aplacado de Orac. En toda la plan ...